Contemporary family home with driveway, EV charging and sunny garden.
Four bedrooms across three floors, including top-floor principal suite
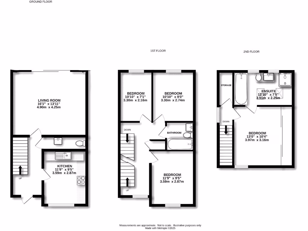
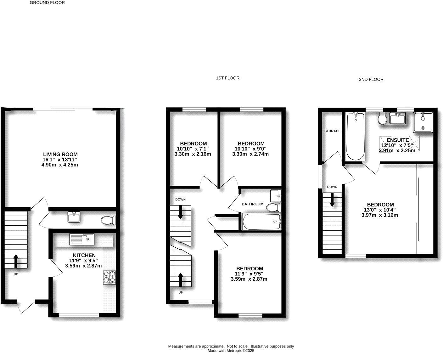
A modern four-bedroom semi-detached townhouse built in 2019, presented with contemporary finishes and efficient use of space. The ground floor provides a well-equipped kitchen and an open-plan living/dining area that opens via French doors to a sunny, landscaped rear garden with paved patio. Driveway parking for multiple cars and an EV charging point add practical everyday convenience.
Arranged over three floors, the house offers versatile accommodation: two bathrooms (including an en suite to the top-floor principal bedroom), a flexible room ideal for a home office or nursery, and compact but well-proportioned living spaces throughout. The property benefits from mains gas heating, a current EPC grade B (85) and freehold tenure.
Location suits families and professionals seeking good transport links and access to local schools; nearby choices include rated Good and Outstanding primary and secondary options. The neighbourhood reads as comfortable suburban living within a very affluent area with fast broadband and average local crime statistics.
Notable considerations: the overall property and plot are compact (approximately 849 sq ft on a small plot), so rooms and garden are proportionate rather than generous. Council Tax Band D applies. No flooding risk is recorded.
4 bedroom semi-detached house for sale in Hammersley Drive, Ash, Surrey, GU12 — £500,000 • 4 bed • 2 bath • 982 ft²
3 bedroom semi-detached house for sale in Jubilee Road, Aldershot, Hampshire, GU11 — £450,000 • 3 bed • 2 bath • 802 ft²
3 bedroom semi-detached house for sale in Colyer Way, Ash, Aldershot, Surrey, GU12 — £535,000 • 3 bed • 2 bath • 1606 ft²
3 bedroom end of terrace house for sale in Woodroffe Close, Ash, Surrey, GU12 — £550,000 • 3 bed • 4 bath • 1252 ft²
3 bedroom semi-detached house for sale in Alden Copse, Tongham, Farnham, Surrey, GU10 — £500,000 • 3 bed • 2 bath • 1372 ft²
4 bedroom terraced house for sale in Allington Close, Farnham, Surrey, GU9 — £500,000 • 4 bed • 2 bath • 1000 ft²


























































































