Spacious family layout with modern fittings and garden views.
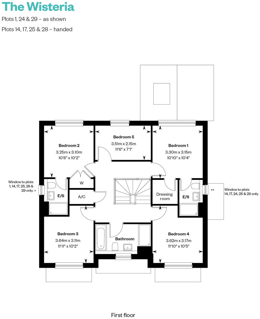
Five bedrooms with primary en-suite and separate dressing room
This five-bedroom detached Wisteria is a new-build, traditional-style family home set on Oakley Lane overlooking open green space. The house combines period-inspired exterior detailing with a contemporary interior specification including Amtico flooring, a fully integrated Bosch kitchen and Silestone worktops. Ground-floor living centres on a generous open kitchen/family room with bi-fold doors to the garden and a separate sitting room, dining room and study for flexible family use.
Sleeping accommodation spans five well-proportioned bedrooms; the primary bedroom benefits from an en-suite and separate dressing room, and a second bedroom also has an en-suite and fitted wardrobe. Practical features include a utility room, double car barn with additional parking, PV panels and an EV charging point, supporting lower running costs and modern living needs.
This is a freehold new build on Plot 29 in an affluent, low-crime area with fast broadband and excellent mobile signal. The plot enjoys a decent garden and pleasant views across green space, making it well suited to families seeking spacious rooms and outdoor amenity close to good local schools.
Buyers should note this property forms part of a development and is subject to an estate charge of £340.84. The overall internal size is described as small relative to some five-bedroom homes, so prospective viewers should check room dimensions and storage when considering layout and furniture planning.
4 bedroom detached house for sale in Oakley Lane,
Wimborne,
BH21 3AB, BH21 — £710,000 • 4 bed • 1 bath • 1025 ft²
4 bedroom detached house for sale in Oakley Lane,
Wimborne,
BH21 3AB, BH21 — £725,000 • 4 bed • 1 bath • 532 ft²
5 bedroom detached house for sale in Oakwood Park, Oakley Lane, Wimborne, BH21 1UD, BH21 — £875,000 • 5 bed • 3 bath • 1918 ft²
3 bedroom semi-detached house for sale in Oakley Lane,
Wimborne,
BH21 3AB, BH21 — £520,000 • 3 bed • 1 bath • 732 ft²
2 bedroom semi-detached house for sale in Oakley Lane,
Wimborne,
BH21 3AB, BH21 — £390,000 • 2 bed • 1 bath • 479 ft²
4 bedroom detached house for sale in Oakley Lane,
Wimborne,
BH21 3AB, BH21 — £850,000 • 4 bed • 1 bath • 1167 ft²














































































































































































