Modern, turn-key living near schools and the A55 with optional upgrades available.
- Brand-new three-bedroom semi-detached family home
- Open-plan kitchen/breakfast room with patio doors
- South-facing rear garden; landscaping optional extra
- RIBA six-year architectural warranty included
- Choice of kitchen finishes; upgrades at additional cost
- Build completion Feb 2026 (subject to change)
- £1,000 non-refundable reservation deposit required
- Local area: high crime, very deprived — consider resale risk
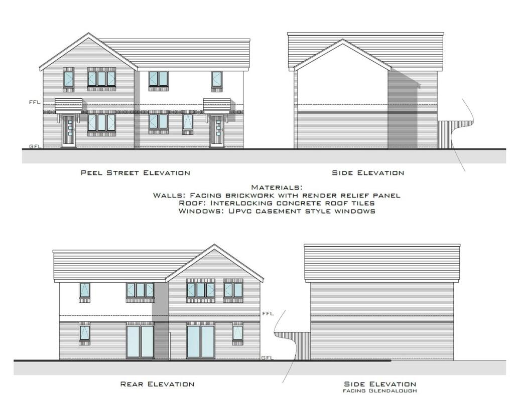
A brand-new three-bedroom semi-detached home built by J&T Gizzi, designed for practical family living close to schools, shops and the A55. The ground floor features a spacious lounge, open-plan kitchen/breakfast room with patio doors, and a convenient shower room. Upstairs offers two double bedrooms, a single bedroom adaptable as a home office, and a contemporary family bathroom.
The build includes energy-efficient PVC windows, a composite front door and an included RIBA six-year architectural warranty, giving added protection for buyers. Buyers can choose kitchen finishes (high gloss or matte handleless) and may opt for upgrades such as flooring, landscaping and turfing to personalise the home — note these are extra cost options.
Practical points to consider: the property is scheduled for build completion in February 2026 (subject to change), an EPC grade is pending once construction finishes, and a non-refundable £1,000 reservation deposit is required. The surrounding area shows high crime levels and significant deprivation, which may influence resale and insurance considerations despite excellent mobile signal and reasonable local amenities.
This home suits families seeking a modern, low-maintenance new-build close to transport links and schools, but buyers should budget for optional finishes and confirm services, council tax banding and tenure details with their solicitor.
2 bedroom semi-detached house for sale in Peel Street, Abergele, LL22 — £185,000 • 2 bed • 1 bath
3 bedroom semi-detached house for sale in Parc Pentywyn, Deganwy, LL31 — £300,000 • 3 bed • 2 bath • 909 ft²
3 bedroom detached house for sale in Llwyn Dinas Fechan, St Asaph, LL17 — £292,000 • 3 bed • 2 bath • 1132 ft²
3 bedroom semi-detached house for sale in Ffordd Y Creyr Llwyd, Colwyn Bay, Conwy, LL29 — £347,950 • 3 bed • 4 bath • 1457 ft²
4 bedroom detached house for sale in Ffordd Y Creyr Llwyd, Colwyn Bay, Conwy, LL29 — £699,950 • 4 bed • 4 bath • 2400 ft²
4 bedroom detached house for sale in Rhodfa Cae Ucha, St Asaph, LL17 — £460,000 • 4 bed • 3 bath • 1723 ft²






















