Bright two-bedroom house near schools and A55 for practical modern living.
New-build two-bedroom semi with open-plan living and patio to south garden
Choice of contemporary kitchen finishes; optional upgrades available
Composite front door and PVC windows; RIBA 6-year warranty included
Estimated completion Feb 2026 — date subject to change
£1,000 non-refundable reservation deposit payable to builder
EPC pending until construction complete; confirm services with solicitor
Located near schools, shops and A55; off-road parking presumed available
Area is very deprived with a high local crime rate — consider location risks
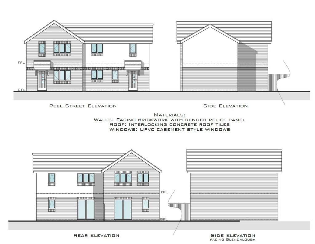
A brand-new two-bedroom semi-detached starter home on Peel Street, designed for low-maintenance modern living. The ground floor offers a bright open-plan lounge/kitchen/dining area with patio doors to a sunny south-facing garden, while two first-floor bedrooms and a contemporary bathroom suit a young family, couple, or first-time buyer. Builders offer a choice of high gloss or matte handleless kitchen finishes and optional upgrades for flooring and landscaping.
Practical fixtures include a composite front door, PVC windows, ground-floor WC and a storage cupboard on the landing. The property is offered freehold and will come with a RIBA 6-year architectural warranty; services are believed to connect to mains gas, electric, water and sewage but should be confirmed by your solicitor. EPC rating is pending once construction is complete.
Important practical notes: estimated build completion is February 2026 (subject to change) and a non-refundable £1,000 reservation deposit is required. The immediate area is classified as very deprived with a high local crime rate — buyers should consider location-related factors and local amenities when deciding to view. Optional extras (flooring, turfing, landscaping) are available at additional cost.
3 bedroom semi-detached house for sale in Peel Street, Abergele, LL22 — £205,000 • 3 bed • 2 bath
3 bedroom semi-detached house for sale in Parc Pentywyn, Deganwy, LL31 — £300,000 • 3 bed • 2 bath • 909 ft²
3 bedroom semi-detached house for sale in Ffordd Y Creyr Llwyd, Colwyn Bay, Conwy, LL29 — £347,950 • 3 bed • 4 bath • 1457 ft²
4 bedroom detached house for sale in Ffordd Y Creyr Llwyd, Colwyn Bay, Conwy, LL29 — £699,950 • 4 bed • 4 bath • 2400 ft²
3 bedroom house for sale in Cae Eithin, Abergele, LL22 — £245,000 • 3 bed • 2 bath • 829 ft²
3 bedroom detached house for sale in Cae Ddol, Abergele, LL22 8FP, LL22 — £280,000 • 3 bed • 2 bath • 1066 ft²






















