Extended family home with garden and church views close to Milton Park.
No forward chain — ready sale
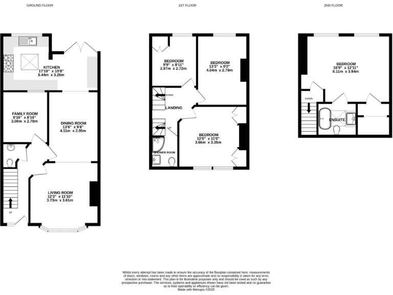
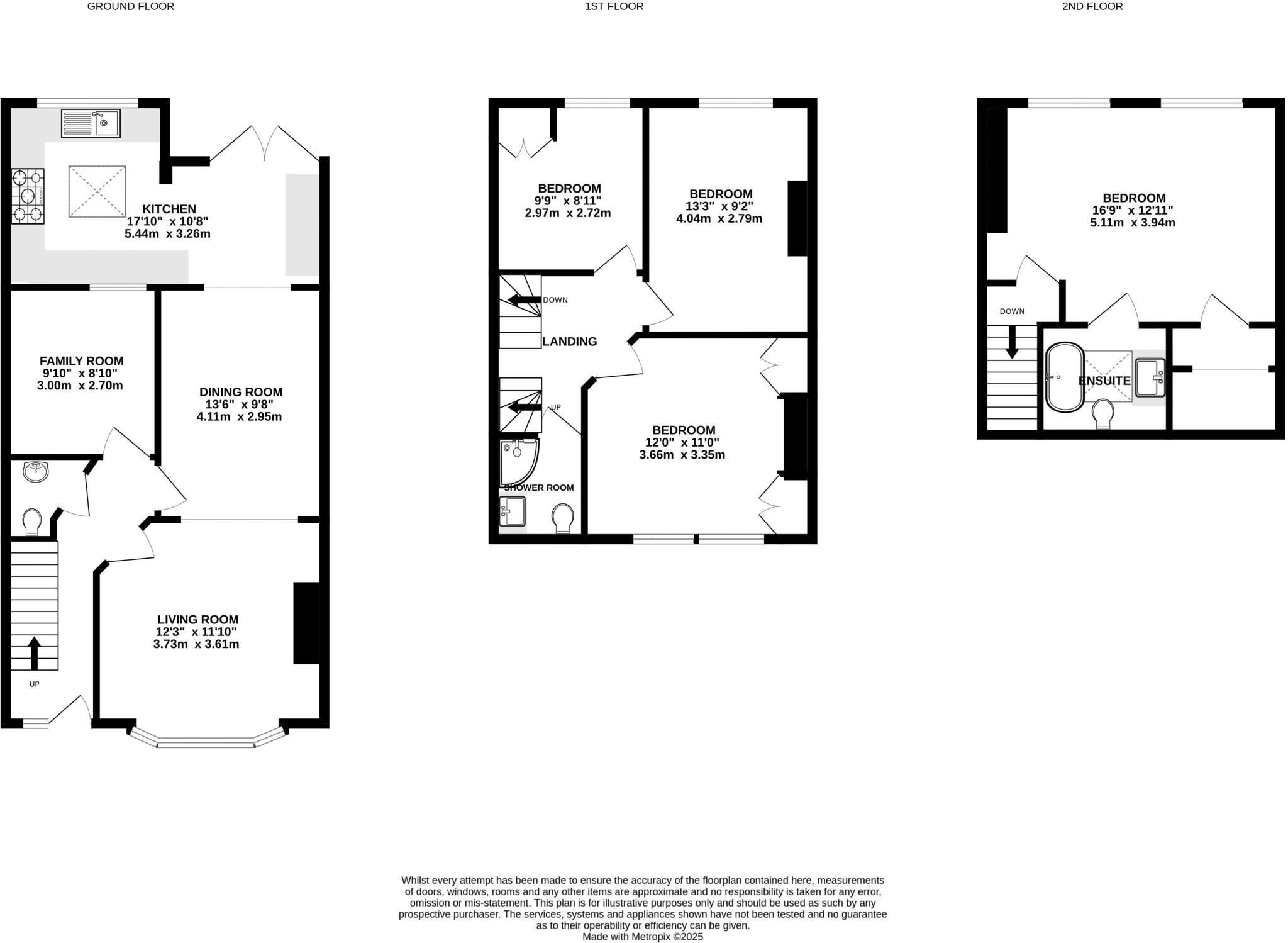
A roomy four-bedroom Victorian terrace arranged over three floors, offered with no forward chain and sitting moments from Milton Park. The extended ground floor combines open-plan living and a contemporary fitted kitchen with skylight and integrated appliances; double doors open onto an enclosed rear garden ideal for family outdoor time. The top-floor master suite provides a private retreat with en-suite and walk-in wardrobe.
Practical family layout: a versatile third reception room works well as a home office, playroom or snug, and there is a handy ground-floor WC. The first floor houses three double bedrooms and a fitted shower room, giving flexible sleeping arrangements for children or guests.
Note the property’s age and construction: built c.1900–1929 with cavity walls (no confirmed insulation) and double glazing of unknown install date. These fabric points may mean improvement work is desirable to optimise heating efficiency despite mains gas central heating and a boiler with radiators. Overall size is described as small for the area, so internal space is efficiently used rather than expansive.
Location strengths include picturesque rear views of St James’ Church, quick access to nearby schools and local amenities, fast broadband and excellent mobile signal. Low local crime and an affordable council tax band add to the practical appeal for families seeking a well-located, characterful home with scope to update energy performance over time.
2 bedroom terraced house for sale in Morgan Road, Southsea, PO4 — £259,500 • 2 bed • 1 bath • 589 ft²
3 bedroom terraced house for sale in Haslemere Road, Southsea, PO4 — £290,000 • 3 bed • 1 bath • 834 ft²
2 bedroom terraced house for sale in Eastfield Road, Southsea, PO4 — £250,000 • 2 bed • 1 bath • 600 ft²
3 bedroom terraced house for sale in Haslemere Road, Southsea, PO4 — £295,000 • 3 bed • 1 bath • 700 ft²
4 bedroom terraced house for sale in Winter Road, Southsea, PO4 — £410,000 • 4 bed • 2 bath • 1208 ft²
3 bedroom terraced house for sale in Catisfield Road, Southsea, PO4 — £280,000 • 3 bed • 1 bath • 754 ft²






















































































































