**Standout Features:**
- No forward chain, offering a smooth buying process
- Bright open-plan living and dining area
- Fitted kitchen with underfloor heating
- Two bedrooms, master with built-in wardrobes
- Well-kept garden with a brick-built store/workshop
- Convenient rear pedestrian access
- Double glazing and gas central heating
- Affordable council tax
**Notable Concerns:**
- Small overall size (589 sq ft)
- Cavity walls with assumed lack of insulation
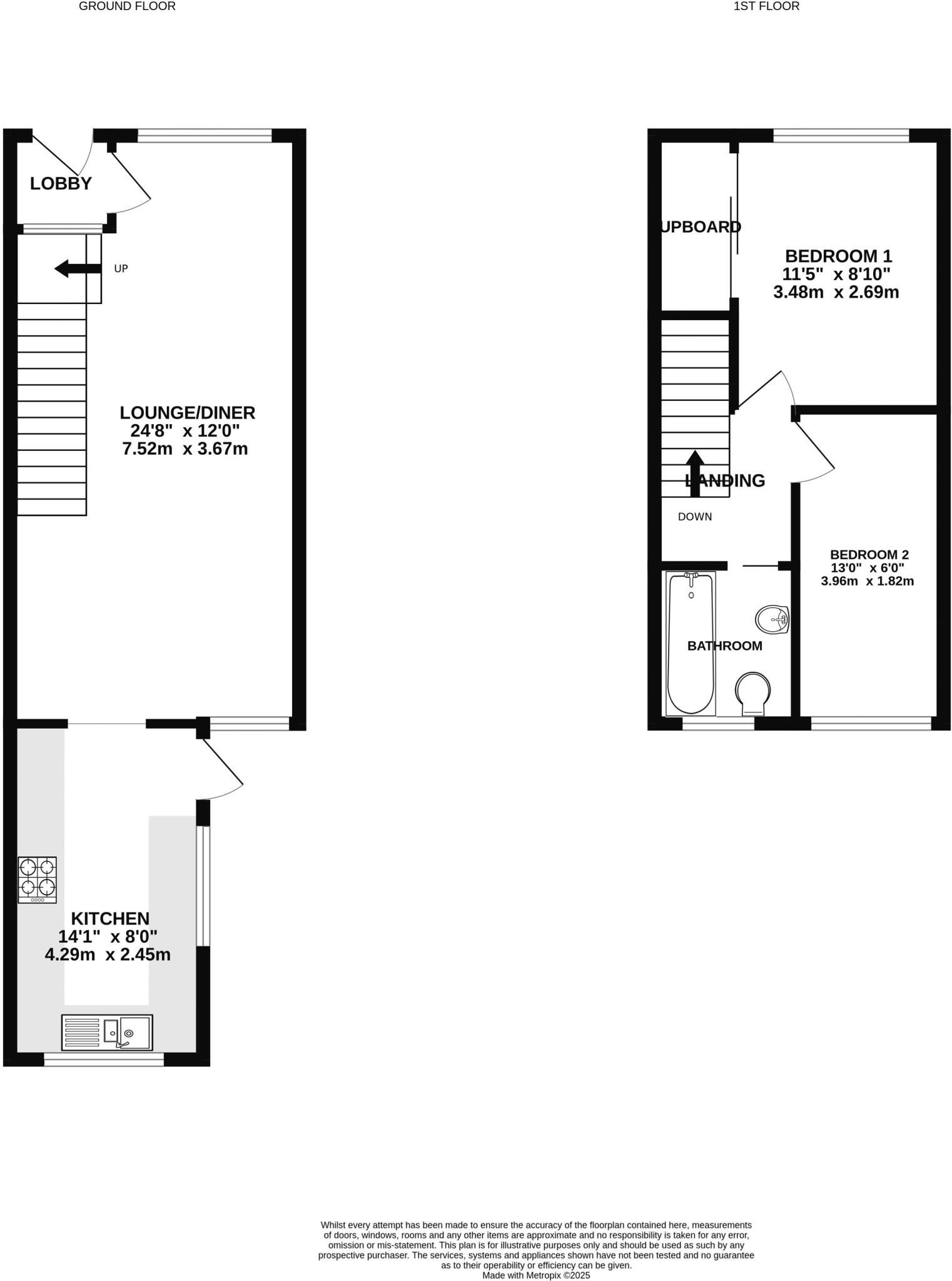
This charming two-bedroom terraced property is nestled in a tranquil cul-de-sac in Milton, presenting an inviting opportunity for first-time buyers, small families, or those looking to downsize. Featuring a welcoming open-plan living space bathed in natural light, it seamlessly connects to a well-equipped kitchen that boasts underfloor heating and access to a quaint garden, ideal for outdoor gatherings and storage needs.
Upstairs, you’ll find a spacious bathroom paired with two cozy bedrooms, perfect for rest or study. The master bedroom benefits from built-in wardrobes, maximizing space efficiency. With the added bonus of being chain-free and ready for immediate occupancy, this home offers both comfort and convenience.
While the compact size may suit intimate living, it’s perfect for those seeking an affordable and functional space in a neighborhood with average crime rates and access to various amenities. Enjoy easy commuting with excellent mobile coverage and fast broadband speeds. Don't miss the chance to secure this delightful home that could be all yours—schedule a viewing today!
2 bedroom terraced house for sale in Towpath Mead, Southsea, PO4 — £290,000 • 2 bed • 1 bath • 563 ft²
2 bedroom terraced house for sale in Dunbar Road, Milton, PO4 — £265,000 • 2 bed • 1 bath • 723 ft²
2 bedroom terraced house for sale in Middlesex Road, Southsea, PO4 — £235,000 • 2 bed • 1 bath • 665 ft²
2 bedroom terraced house for sale in Rosetta Road, Southsea, PO4 — £260,000 • 2 bed • 1 bath • 655 ft²
2 bedroom terraced house for sale in Bertie Road, Southsea, PO4 — £240,000 • 2 bed • 1 bath • 733 ft²
2 bedroom terraced house for sale in Morgan Road, Southsea, PO4 — £240,000 • 2 bed • 1 bath • 685 ft²














































































