Affordable starter home with refurbishment potential close to transport and amenities.
Freehold two-bedroom Victorian mid-terrace with period features
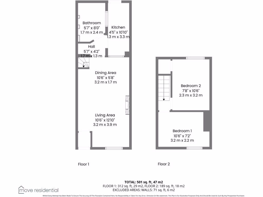
This modest two-bedroom mid-terrace is offered freehold with no onward chain — an accessible entry point for first-time buyers seeking ownership in the Dingle area. The property retains simple Victorian character (ornamental fireplace, picture rail and stained glazing) and benefits from a bright front reception room and a compact galley kitchen.
Internally the footprint is small and rooms are compact; the layout is efficient but dated. The ground-floor shower room and kitchen would benefit from modernisation to improve comfort and resale value. There is no external garden shown and circulation/storage is limited, so practical planning for belongings and furniture is necessary.
The location provides good transport links, fast broadband and low council tax, which help running costs. However, the neighbourhood scores high for deprivation and has above-average crime rates — factors to weigh when considering family suitability or letting prospects. For buyers willing to invest modest refurbishment, the property offers clear potential uplift and sensible running costs as an affordable starter home or buy-to-let.
A viewing will best show room proportions and highlight where simple improvements (redecoration, kitchen/bathroom upgrades, opening up the plan) can significantly increase appeal and value.
3 bedroom terraced house for sale in Dingle Road, Dingle, L8 — £260,000 • 3 bed • 1 bath • 871 ft²
2 bedroom terraced house for sale in Brunswick Street, Liverpool, L19 — £135,000 • 2 bed • 1 bath • 1072 ft²
2 bedroom terraced house for sale in Lilford Avenue, Liverpool, L9 — £155,000 • 2 bed • 1 bath • 1022 ft²
2 bedroom end of terrace house for sale in Dyson Street, Liverpool, Merseyside, L4 — £70,000 • 2 bed • 1 bath • 829 ft²
2 bedroom terraced house for sale in Olney Street, Anfield, Liverpool, L4 — £110,000 • 2 bed • 1 bath • 397 ft²
2 bedroom terraced house for sale in Hinton Street, Litherland, Liverpool, Merseyside, L21 — £80,000 • 2 bed • 1 bath • 786 ft²










































