Huge garden, garage and strong transport links for growing families.
Chain free six-bedroom semi-detached house, freehold
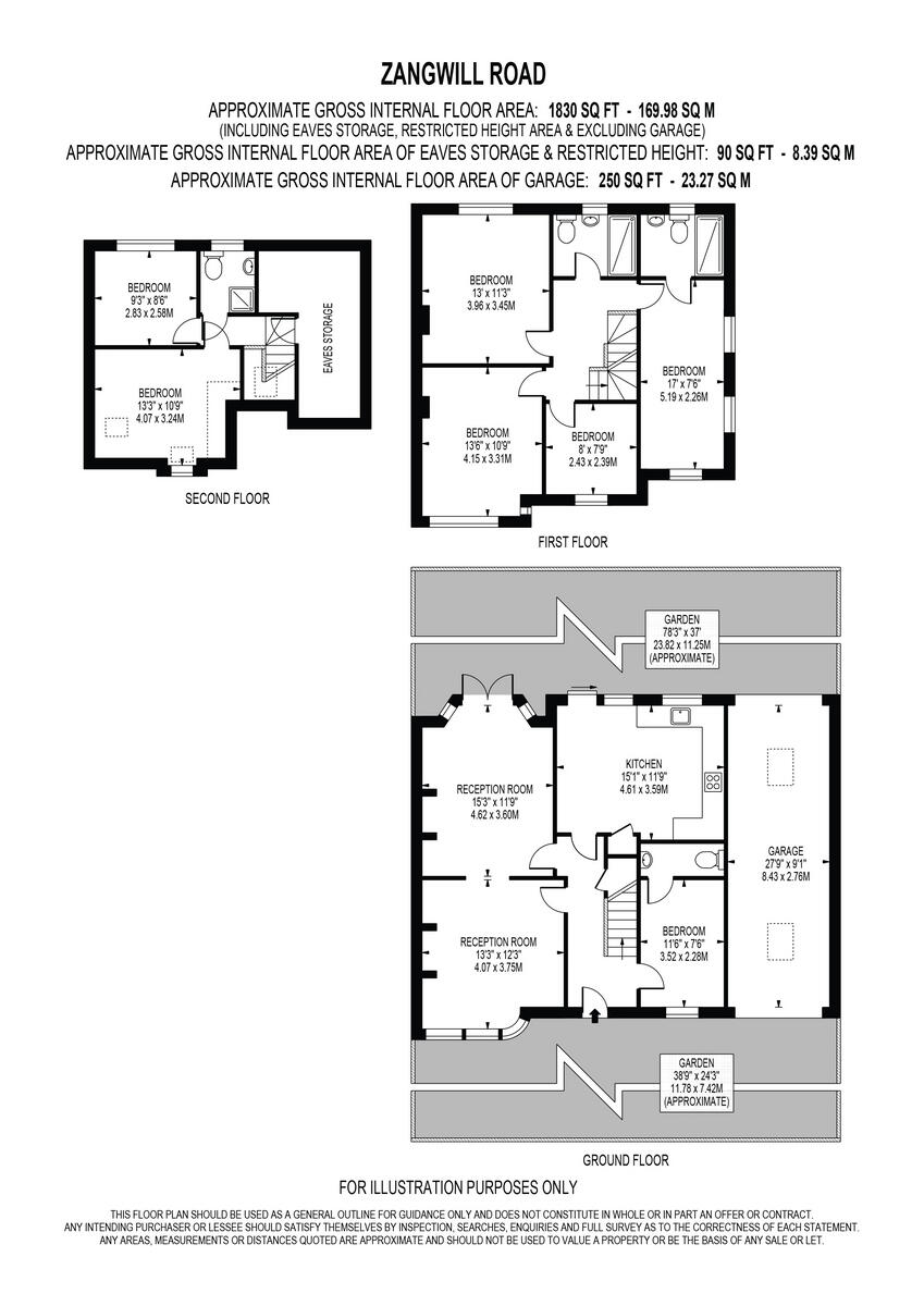
A substantial six-bedroom semi-detached house on Zangwill Road offering exceptional outside space and clear redevelopment potential. The property is chain free and sits on a large plot with an impressive 100 ft garden, double garage and off-street parking — rare assets for this area. Internally the layout spans multiple floors with around 1,830 sqft gross internal area and four bathrooms, providing flexibility for a large family or conversion to a multi-tenant HMO.
The house is offered in need of renovation throughout. It presents a blank canvas: double glazing is present but installation date is unknown, and the heating runs from a mains-gas boiler with radiators. Buyers should expect upgrading works to kitchens, bathrooms, and likely cosmetic and structural refurbishment to maximise value. The property is freehold and sold chain free, simplifying purchase for a buyer prepared to invest in improvement.
Location strengths include convenient access to local schools rated Good to Outstanding, regular bus routes and relatively fast rail connections from nearby Woolwich (Elizabeth Line). Broadband and mobile signal are both strong. Notable negatives: the wider area records higher crime levels and local deprivation indicators are elevated; prospective buyers and investors should factor in this social context and any resulting insurance or management considerations.
This house will suit families seeking long-term space with a large garden, or investors targeting HMO or refurbishment-led uplift. The combination of plot size, parking and garage provides scope for extension or redevelopment subject to planning. Viewings will be most useful for buyers who can commission surveys and budget for a comprehensive renovation programme.
3 bedroom end of terrace house for sale in Wricklemarsh Road, Blackheath, SE3 — £600,000 • 3 bed • 1 bath • 1007 ft²
3 bedroom semi-detached house for sale in Montcalm Road, Charlton, SE7 — £599,950 • 3 bed • 1 bath • 1150 ft²
4 bedroom semi-detached house for sale in Coxmount Road, Charlton, SE7 — £525,000 • 4 bed • 2 bath • 1500 ft²
3 bedroom semi-detached house for sale in Kidbrooke Park Road, Blackheath, London, SE3 — £750,000 • 3 bed • 1 bath • 1147 ft²
7 bedroom semi-detached house for sale in Westcombe Park Road, Blackheath, SE3 — £2,450,000 • 7 bed • 3 bath • 3324 ft²
3 bedroom detached house for sale in Woodyates Road, Lee, London, SE12 — £800,000 • 3 bed • 2 bath • 1382 ft²






























































































