Hot tub, two decks and allocated parking for discerning coastal retreat buyers.
Sea-facing clifftop location with panoramic Channel views
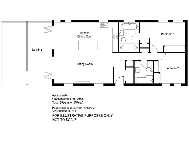
Perched on Barton on Sea's cliff top, this Omar Seafronter 44 x 22 lodge delivers uninterrupted views across the Channel from Isle of Wight to Sandbanks. Designed as a generous two-bedroom, two-bathroom second home, it combines contemporary open-plan living with two decking areas and a hot tub for year-round coastal relaxation.
The interior is new-build in style and specification: an open-plan kitchen/living/dining area with bi-fold doors, central island, integrated appliances, electric fireplace and fitted bedroom storage. The principal suite includes a dressing area and a sizeable en-suite with walk-in shower and freestanding bath. The lodge measures approximately 957 sq ft, offering a roomy layout for holiday use or short-stay rental.
Important tenure and cost points are clear: the unit is leasehold with a 25-year licence and is for second-home use only (cannot be a main residence). Annual running costs/pitch fees are £13,362.02. Because of the short remaining licence term, many mortgage lenders are likely to refuse lending; buyers should check finance availability and understand the lease restrictions before proceeding.
Practical benefits include two allocated parking spaces, direct clifftop access to beach paths, fast broadband, and on-park leisure facilities such as a heated pool, gym and restaurant. This property suits purchasers seeking a high-spec coastal bolt-hole or holiday-investment option who accept the leasehold limitations and ongoing fees.
2 bedroom park home for sale in Hoburne Naish, Barton On Sea, Hampshire, BH25 — £449,995 • 2 bed • 2 bath • 924 ft²
2 bedroom park home for sale in Sunset Cliffs, Hoburne Naish Holiday Park, Barton On Sea, Hampshire, BH25 — £125,000 • 2 bed • 2 bath • 577 ft²
2 bedroom park home for sale in Christchurch Road, Highcliffe, BH25 — £495,000 • 2 bed • 2 bath • 960 ft²
2 bedroom park home for sale in Chewton Meadow, Naish Estate, Barton On Sea, Hampshire, BH25 — £125,000 • 2 bed • 2 bath • 840 ft²
2 bedroom park home for sale in Chewton Meadow, Naish Estate, Barton On Sea, Hampshire, BH25 — £120,000 • 2 bed • 2 bath • 800 ft²
2 bedroom park home for sale in Clifftop View, Hoburne Naish Holiday Park, Barton On Sea, Hampshire, BH25 — £247,500 • 2 bed • 2 bath • 633 ft²


















































































