Sunny two-bedroom flat near excellent schools, transport links and allocated parking.
South-facing balcony with communal garden views
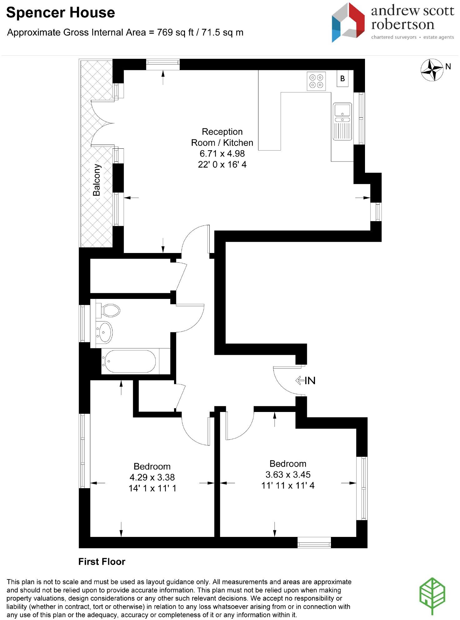
Set on the first floor of a well-kept development on Chambers Park Hill, this two-bedroom flat offers a bright open-plan living space and a sunny south-facing balcony. The layout suits couples or first-time buyers seeking easy access to Wimbledon’s shops, Common and transport links while retaining quiet communal gardens and allocated off-street parking.
Practical positives include a long lease (115 years), fast broadband potential, and a main boiler-and-radiator heating system. The property feels modern throughout with an integrated kitchen and neutral finishes, ready to move into with little immediate work required.
Important financial points to note: the property is leasehold with an above-average service charge of £4,028pa and a high ground rent of £1,000pa. Council Tax sits in Band E, which is above average for the area. The flat has one bathroom, so families needing multiple bathrooms should consider this layout.
Overall this is a well-located, low-crime, attractive two-bedroom home in a very affluent area, offering straightforward city living close to good schools and transport. The service charges and ground rent are the main ongoing costs that will affect affordability and should be factored into any purchase decision.
2 bedroom flat for sale in Durnsford Road, Wimbledon, SW19 — £375,000 • 2 bed • 2 bath • 667 ft²
2 bedroom flat for sale in Chambers Park Hill, London, SW20 — £950,000 • 2 bed • 2 bath • 958 ft²
2 bedroom flat for sale in Lydney Close, Southfields, London, SW19 — £380,000 • 2 bed • 1 bath • 793 ft²
2 bedroom flat for sale in Chapman Square, London, SW19 — £640,000 • 2 bed • 2 bath • 802 ft²
2 bedroom flat for sale in Durnsford Road, Wimbledon, London, SW19 — £400,000 • 2 bed • 2 bath • 666 ft²
3 bedroom flat for sale in Chambers Park Hill, London, SW20 — £1,550,000 • 3 bed • 2 bath • 1281 ft²


























































































