Bright two-bedroom flat with generous outdoor space and parking near Wimbledon amenities.
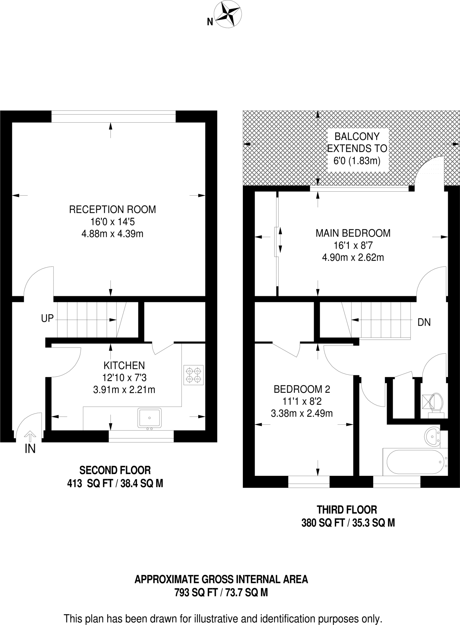
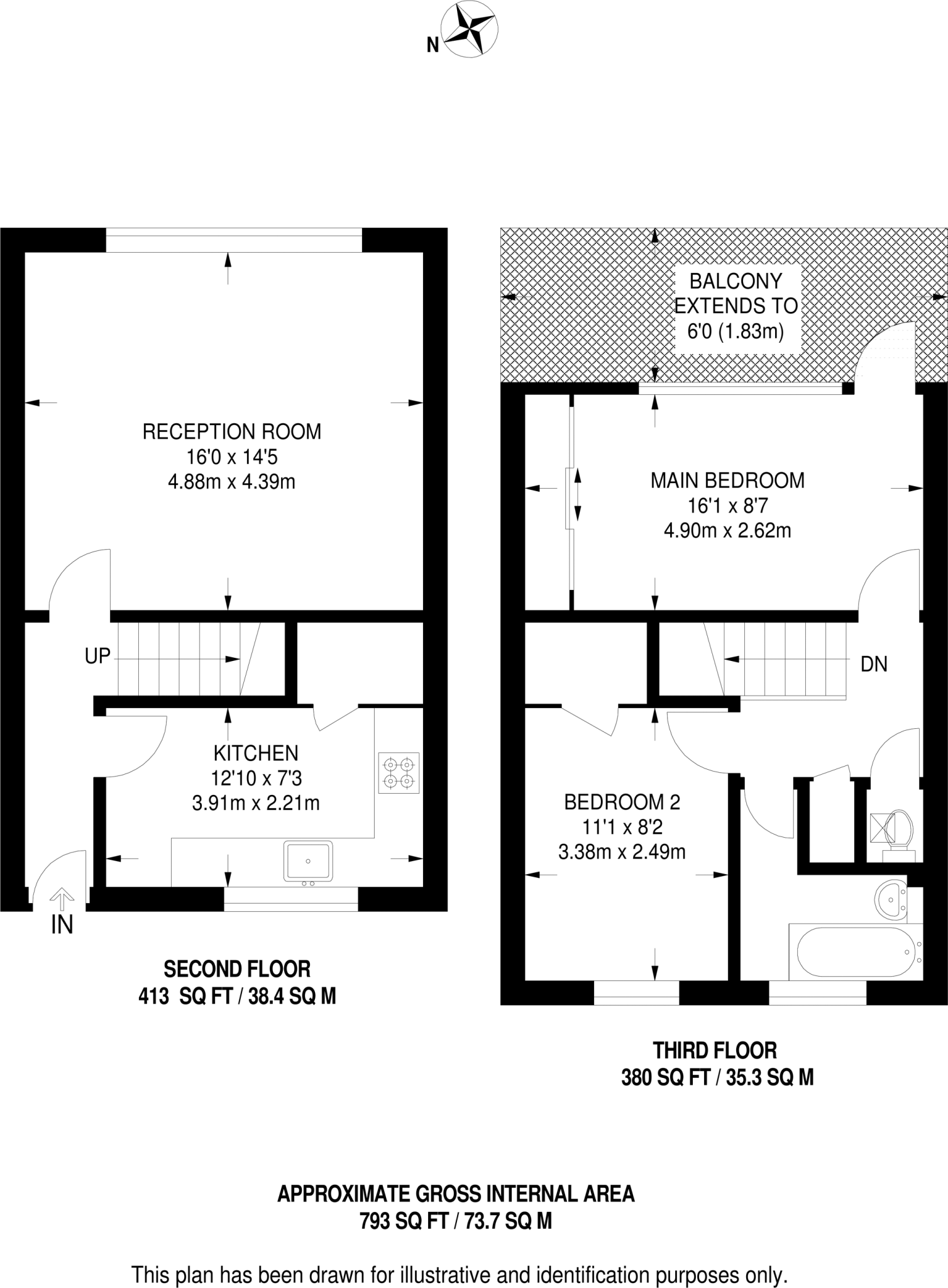
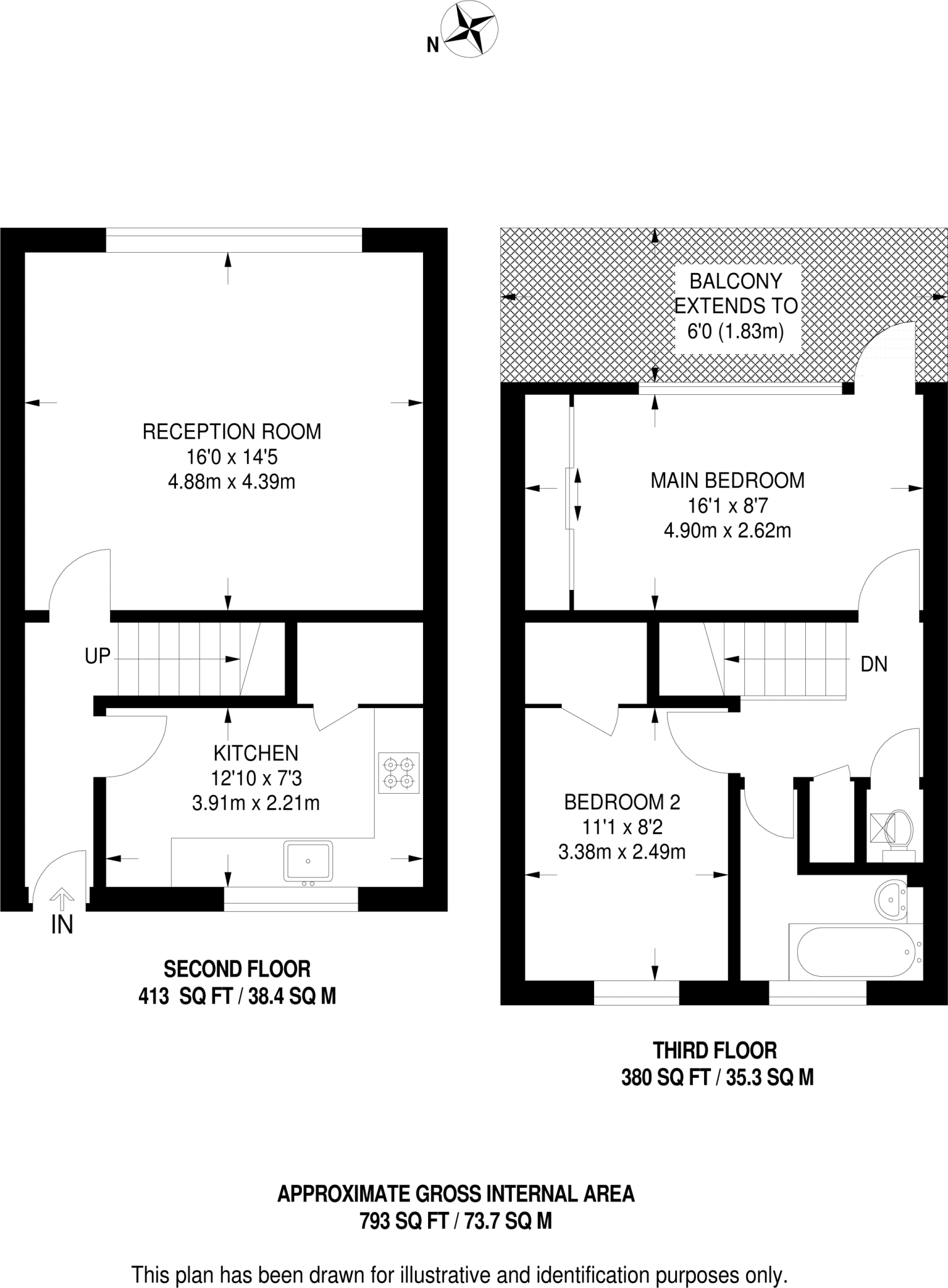
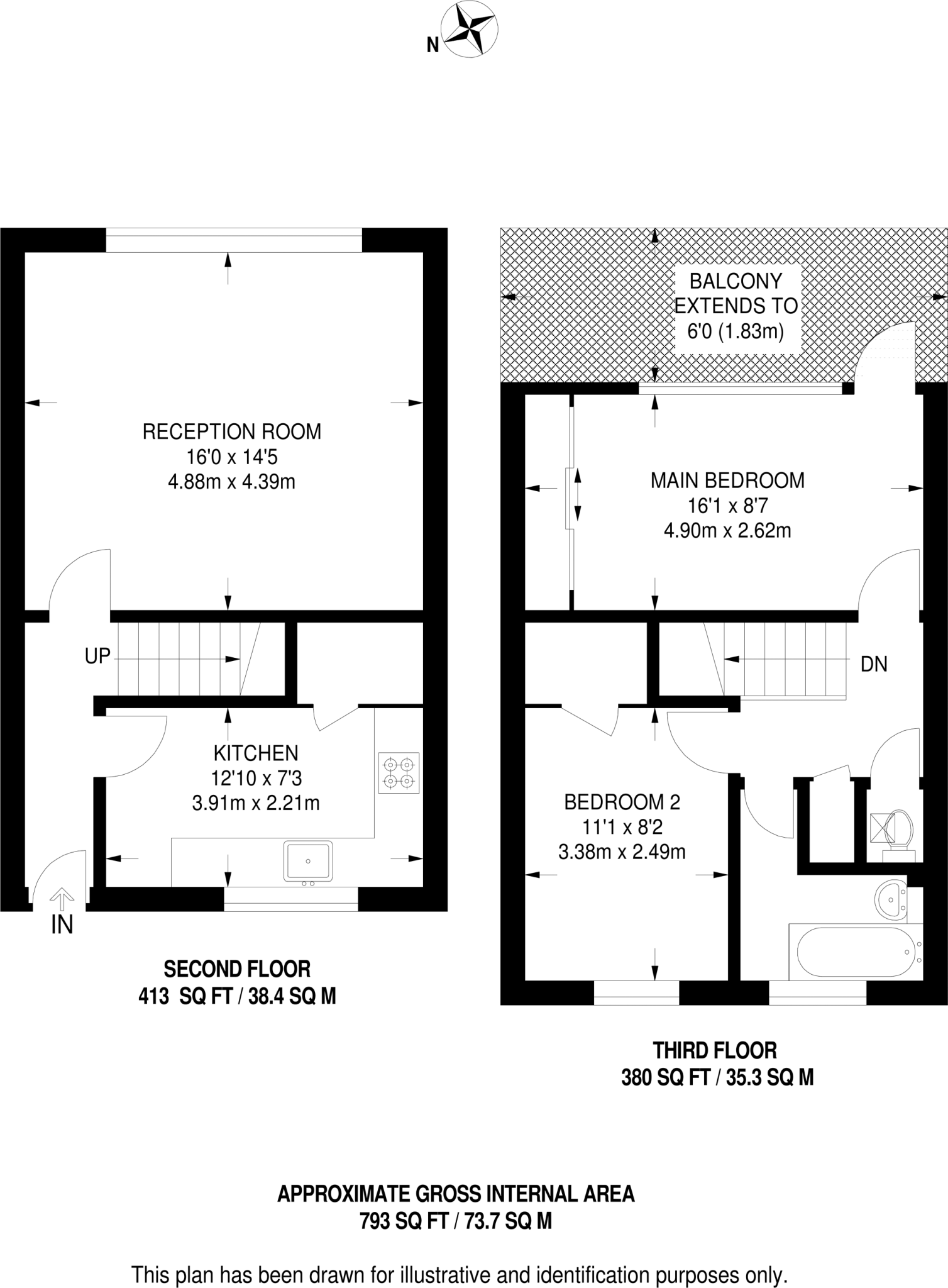
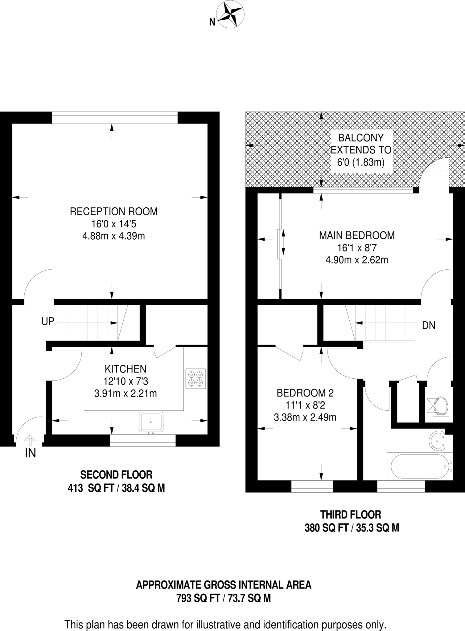
- Large private balcony with views over Wimbledon Park
- Split-level 2nd/3rd floor layout with generous reception room
- Separate kitchen with dining space and excellent storage
- Main bedroom with built-in wardrobe and balcony access
- One bathroom plus separate WC; practical daily layout
- Off-street parking included
- Leasehold with 89 years remaining; consider lease-extension cost
- Service charge approx £1,400 per year; communal areas dated
Set over the 2nd and 3rd floors, this split-level two-bedroom flat delivers bright, well-proportioned living with a rare large private balcony overlooking Wimbledon Park. The generous reception room has wide windows that flood the space with light, and the separate kitchen provides room to dine and excellent storage — useful for everyday life or entertaining friends.
The main bedroom includes a built-in wardrobe and direct access to the balcony; the second bedroom also benefits from built-in storage. A bathroom plus separate WC keeps morning routines flowing. Practical features include off-street parking, fast broadband, excellent mobile signal and gas central heating. The apartment’s 793 sq ft footprint feels comfortably sized for first-time buyers or couples.
Important practical notes: the property is leasehold with 89 years remaining and an average annual service charge of £1,400, so buyers should consider future lease-extension costs. The building dates from the late 1960s/early 1970s and communal areas reflect that era, which may require updating. Overall, this is a well-located home with park-facing outdoor space and clear potential to personalise.
Local amenities are strong: Southfields shops, cafes and restaurants are moments away, with Wimbledon and Wimbledon Village easily accessible. Good primary and secondary schools nearby and plentiful sports and leisure facilities make the location convenient for everyday family life or commuter needs.
 2 bedroom flat for sale in Queensmere Road, Wimbledon Park, London, SW19 — £350,000 • 2 bed • 1 bath • 728 ft²
 2 bedroom flat for sale in Queensmere Road, Wimbledon Park, London, SW19 — £350,000 • 2 bed • 1 bath • 728 ft² 2 bedroom flat for sale in Wimbledon Park Road, Southfields, London, SW19 — £365,000 • 2 bed • 1 bath • 688 ft²
 2 bedroom flat for sale in Wimbledon Park Road, Southfields, London, SW19 — £365,000 • 2 bed • 1 bath • 688 ft² 2 bedroom flat for sale in Inner Park Road, Wimbledon, London, SW19 — £525,000 • 2 bed • 2 bath • 642 ft²
 2 bedroom flat for sale in Inner Park Road, Wimbledon, London, SW19 — £525,000 • 2 bed • 2 bath • 642 ft² 3 bedroom flat for sale in Whitlock Drive, Southfields, London, SW19 — £395,000 • 3 bed • 1 bath • 861 ft²
 3 bedroom flat for sale in Whitlock Drive, Southfields, London, SW19 — £395,000 • 3 bed • 1 bath • 861 ft² 3 bedroom flat for sale in Wimbledon Park Side, London, SW19 — £700,000 • 3 bed • 2 bath • 1019 ft²
 3 bedroom flat for sale in Wimbledon Park Side, London, SW19 — £700,000 • 3 bed • 2 bath • 1019 ft² 2 bedroom flat for sale in Durnsford Road, Wimbledon, London, SW19 — £415,000 • 2 bed • 2 bath • 666 ft²
 2 bedroom flat for sale in Durnsford Road, Wimbledon, London, SW19 — £415,000 • 2 bed • 2 bath • 666 ft²






















































































































































































































