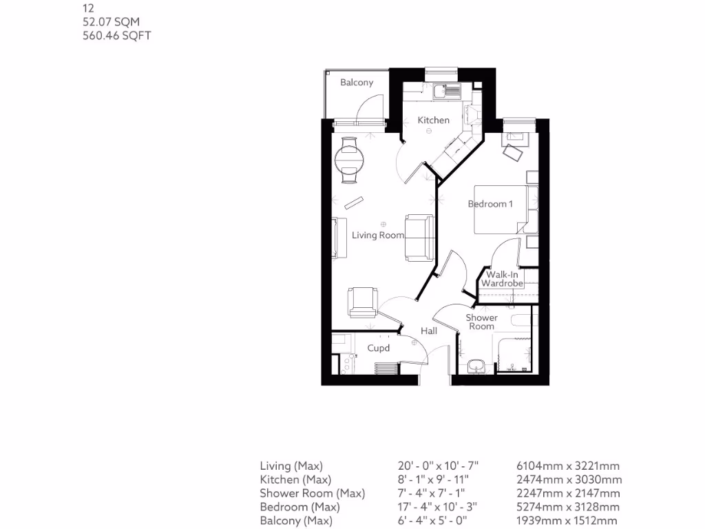
Low-maintenance one-bed in a staffed Retirement Living PLUS community with bistro and gardens.
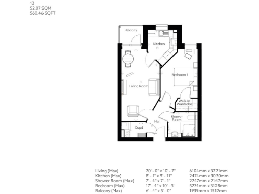
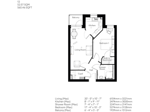
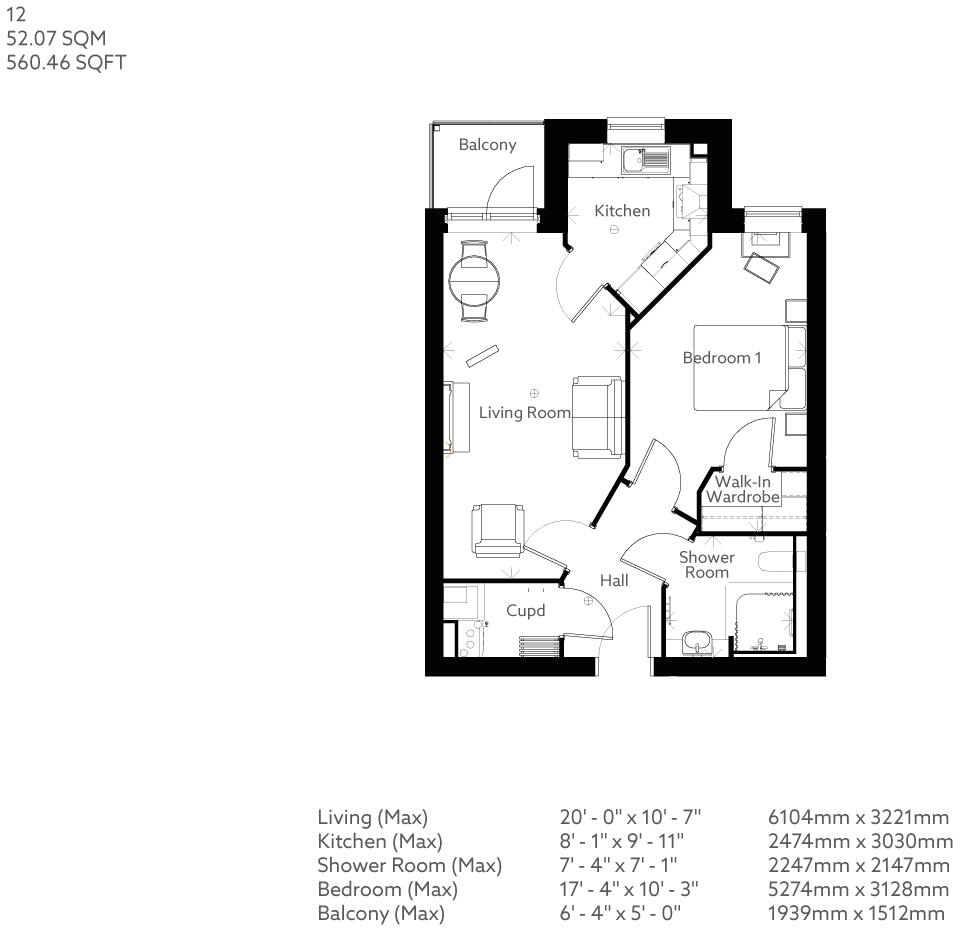
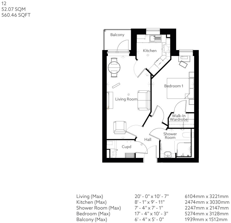
One-bedroom first-floor apartment with private east-facing balcony
Apartment 12 is a modern one-bedroom retirement apartment on the first floor, designed for independent over-70s who want low-maintenance living with on-site care options. The flat has a private east-facing balcony, a walk-in wardrobe, a separate fitted kitchen and a fully accessible shower room — practical features that suit downsizers and those planning for later-life needs.
The community is Retirement Living PLUS with 24/7 staff, an on-site Estate Manager, monitored emergency call system and optional tailored domestic and personal care. Facilities include landscaped gardens, a ground-floor retail shop and a chef-run bistro with seasonal menus — useful social hubs for residents.
Practical points to note: tenure is leasehold with shared-ownership options (examples shown at 50% share £130,000/£298pcm and 75% share £195,000), a long lease (c.986 years) and a below-average service charge of £298 pcm. Heating is by electric room heaters and broadband speeds are reported as very slow, which may affect running costs and connectivity.
This apartment suits someone seeking a secure, sociable retirement setting with care available if needed, rather than a self-contained, low-cost independent dwelling. Be aware of electric heating, slow broadband and an above-average local crime statistic when weighing practical suitability.
1 bedroom apartment for sale in Lowry Way, Swindon, SN3 — £198,750 • 1 bed • 1 bath • 560 ft²
1 bedroom retirement property for sale in Lowry Way,
Swindon,
SN3 1FX
, SN3 — £210,000 • 1 bed • 1 bath • 627 ft²
2 bedroom apartment for sale in Lowry Way, Swindon, SN3 — £340,000 • 2 bed • 1 bath • 818 ft²
1 bedroom apartment for sale in Lowry Way, Swindon, SN3 — £265,000 • 1 bed • 1 bath • 560 ft²
1 bedroom retirement property for sale in Lowry Way, Swindon, SN3 — £180,000 • 1 bed • 1 bath • 560 ft²
1 bedroom apartment for sale in Peglars Way, Swindon, SN1 — £277,000 • 1 bed • 1 bath • 559 ft²






































































































































































