Chain-free home with large garden and nearby green spaces for family life.
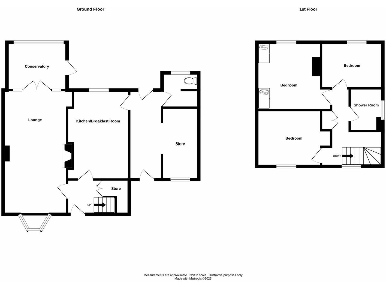
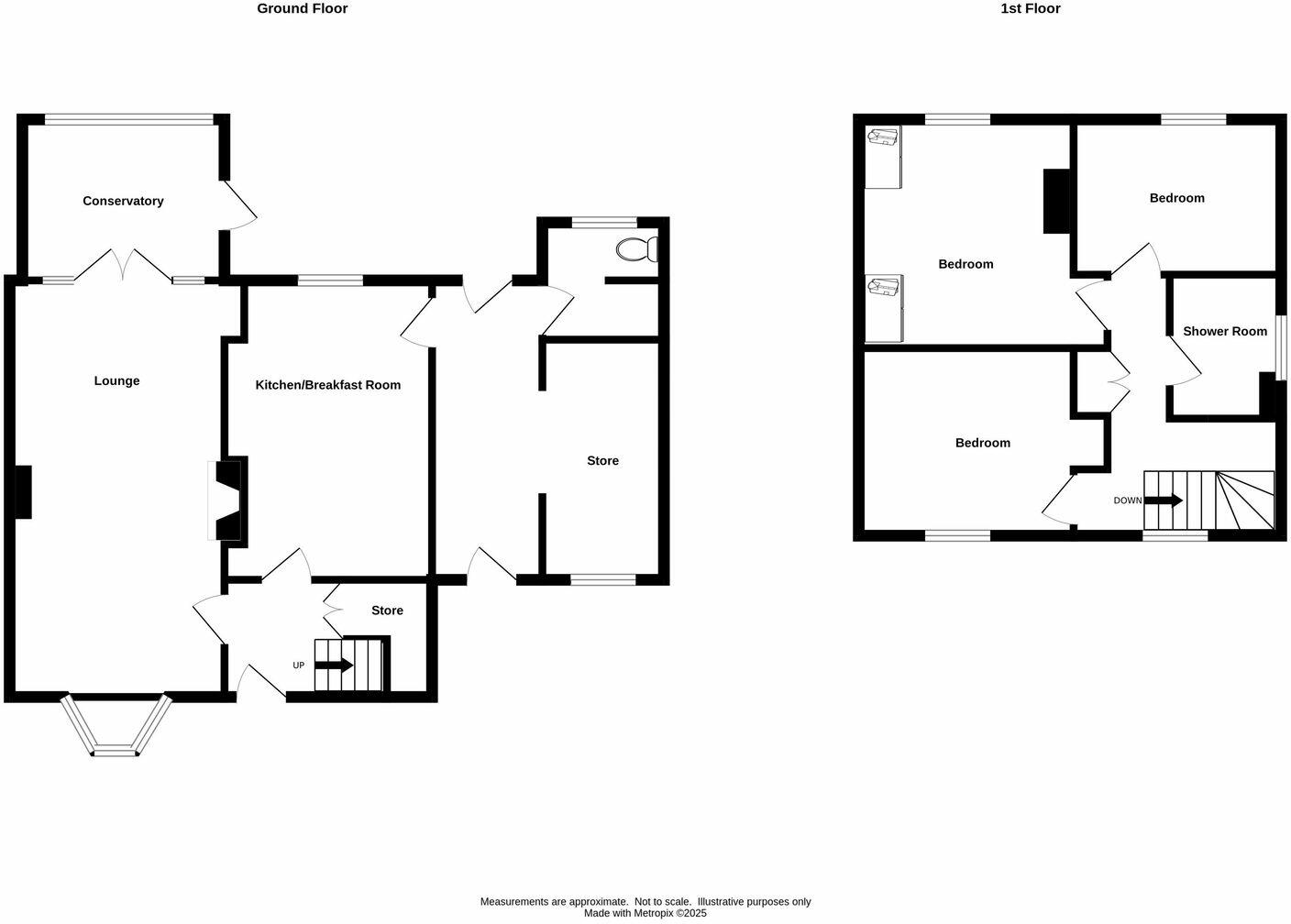
- Three well-proportioned first-floor bedrooms
- Large sitting/dining room plus separate conservatory
- Generous, secluded rear garden and gated driveway
- Workshop, guests cloakroom, and useful side lobby
- Majority double glazing; mains gas central heating
- EPC D; cavity walls assumed uninsulated (upgrade needed)
- Some dated decor and evidence of past mould/damp
- No upward chain; council tax band A (very cheap)
A spacious three-bedroom semi-detached home arranged over two floors, offered chain free and well suited to growing families or first-time buyers wanting extra room. The ground floor features a large sitting/dining room and a delightful conservatory that opens onto a secluded, generous rear garden. A gated driveway provides off-street parking and there is a handy workshop and guest cloakroom for everyday convenience.
Upstairs are three well-proportioned bedrooms and a modern shower room. The property has mains gas central heating, majority double glazing and an EPC rating of D. Local amenities are strong: Merry Hill shopping, Saltwells Nature Reserve and Netherton Reservoir are all within walking distance, and several Good-rated primary and secondary schools are nearby.
Buyers should note the house dates from the 1930s–1940s with some mid-century and 1970s-era fittings and decor; parts of the interior are dated and there are signs of past damp/mould in places, which will need attention. The cavity walls are assumed to have no insulation, so buyers should budget for energy-efficiency improvements if desired. The property sits in a very deprived area, which may affect resale expectations.
3 bedroom semi-detached house for sale in Matlock Close, Netherton, Dudley, DY2 9RP, DY2 — £230,000 • 3 bed • 1 bath • 722 ft²
3 bedroom semi-detached house for sale in Halesowen Road, Netherton, Dudley, DY2 9PU, DY2 — £265,000 • 3 bed • 1 bath • 808 ft²
3 bedroom semi-detached house for sale in Nagersfield Road, Brierley Hill, DY5 3PA, DY5 — £160,000 • 3 bed • 1 bath • 677 ft²
3 bedroom semi-detached house for sale in Newland Grove, Dudley, DY2 0TL, DY2 — £250,000 • 3 bed • 2 bath • 876 ft²
3 bedroom semi-detached house for sale in Falcon Way, Russells Hall, Dudley, DY1 2JP, DY1 — £210,000 • 3 bed • 1 bath • 703 ft²
3 bedroom semi-detached house for sale in Cradley Road, Netherton, Dudley, DY2 9RJ, DY2 — £250,000 • 3 bed • 1 bath • 952 ft²






























































































