BD23 6HJ - Barn conversion for sale in Beamsley, Skipton, North Yorksh…

View on Property Piper

Barn conversion for sale in Beamsley, Skipton, North Yorkshire, BD23

Summary - THE LOW BARN, LOWFIELD LANE BD23 6HJ

1 bed 1 bath Barn Conversion

**Standout Features:**
- **Converted Barn:** Unique stone exterior with rustic charm
- **Planning Consent:** Approved for residential conversion, subject to Section 106 agreement for local occupancy or holiday let
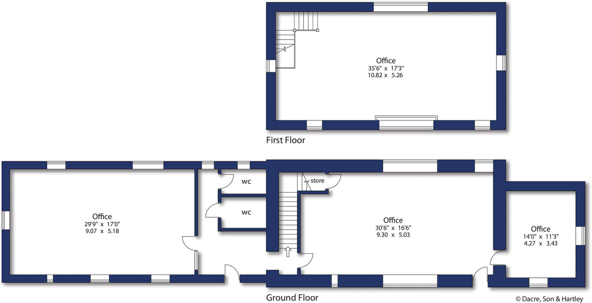
- **Size:** Spacious property with 2,060 sq ft and a large garden
- **Location:** Prime setting in the highly regarded village of Beamsley, Yorkshire Dales National Park
- **Accessibility:** Convenient access to Harrogate, Skipton, and Ilkley
- **Outdoor Space:** Includes delightful streamside gardens and substantial off-street parking
- **Condition:** Currently in use as office space, offering renovation potential

**Summary:**
Discover the remarkable Low Barn, an elegantly converted barn situated in the idyllic village of Beamsley, with an impressive size of 2,060 sq ft. This property holds planning consent for transformation into a stunning three-bedroom residence, ideal for local occupancy or as a holiday let, captivating potential investors and buyers alike. Embrace the rustic charm of its stone exterior complemented by plentiful garden areas that invite outdoor living and relaxation in the heart of Yorkshire's countryside.

Nestled within the scenic Yorkshire Dales National Park, this property offers remarkable accessibility to surrounding towns like Harrogate and Skipton, making it an ideal choice for commuters and families alike. While the barn currently serves as office accommodation, the extensive potential for renovation paves the way for a truly bespoke family home. Enjoy low crime rates, rich local culture, and proximity to top-rated schools, ensuring a vibrant community life. Don’t miss this opportunity to secure a unique property in a coveted area—act fast, as listings like this are rare and do not stay on the market for long!

Property Details

Brochure Descriptions

Image Descriptions

Floorplan Description

Rooms

Textual Property Features

Detected Visual Features

EPC Details

Nearby Schools

Nearest Bars And Restaurants

,,,,}

Nearest General Shops

,,}

Nearest Grocery shops

,,}

Nearest Supermarkets

,,}

Nearest Religious buildings

,,}

Nearest Medical buildings

,,,}

Nearest Airports

}

Nearest Leisure Facilities

,,,,}

Nearest Tourist attractions

,,}

Nearest Train stations

,,,,}

Nearest Bus stations and stops

,,,,}

Nearest Hotels

,,}

Tags

Local Market Stats

Similar Properties

Meta

High Res Images

Compatible Images

Low res Images

Thumbnails

Raw Images

High Res Floorplan Images

Compatible Floorplan Images

Low res Floorplan Images

FloorplanImages Thumbnail

Raw Floorplan Images