Character family home in Malden Hill with garden, parking and extension potential (stpp)..
Victorian mid-terrace with many original period features
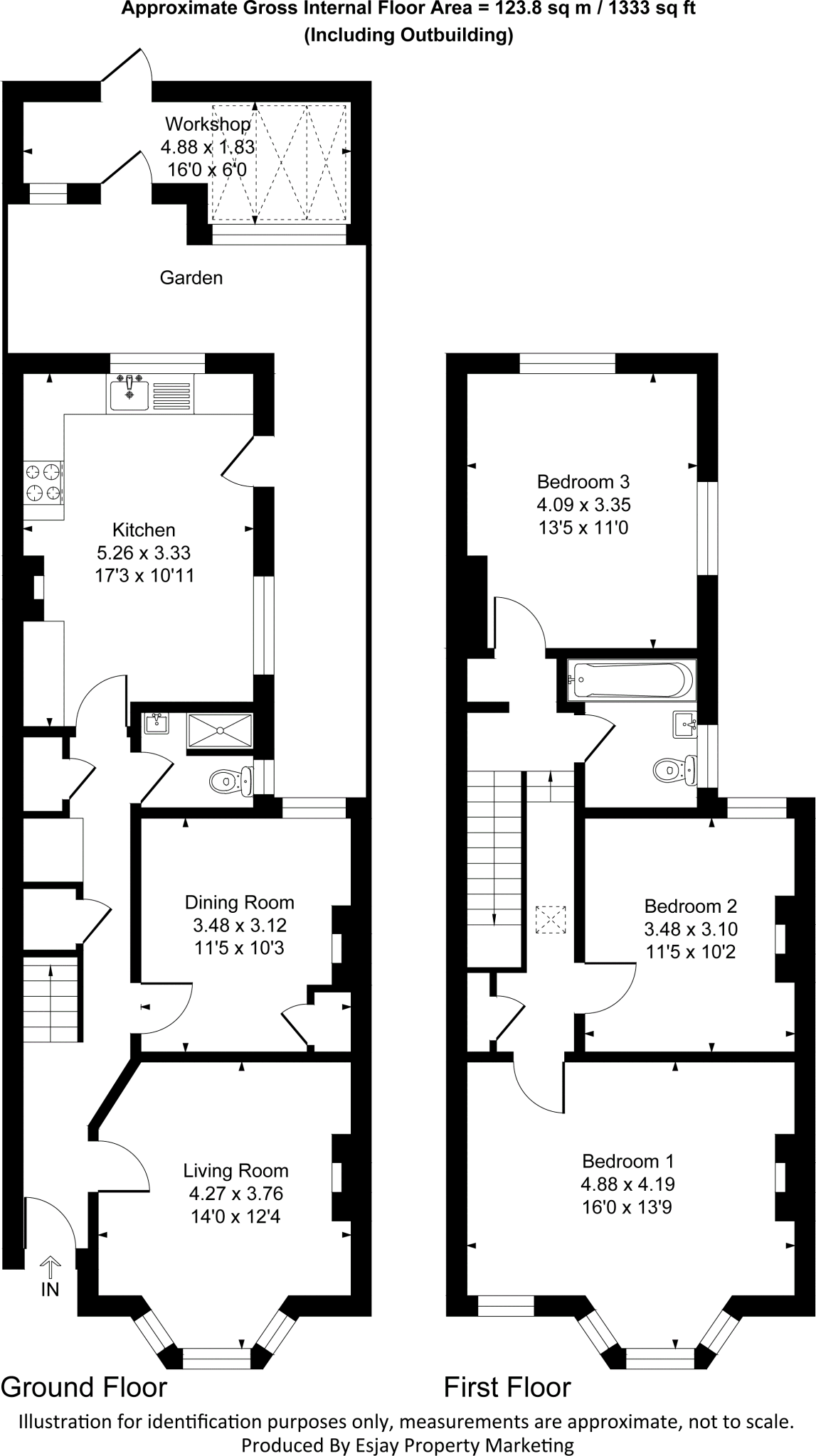
Set on sought-after Malden Hill, this Victorian mid-terrace offers classic period character across three bedrooms and two reception rooms. The house retains original features — bay windows, decorative fireplace and high ceilings — while providing a generous 17ft kitchen and a good-sized rear garden ideal for family use or a garden project.
Off-street parking to the front and freehold tenure add practical value in this convenient New Malden location with fast broadband and excellent mobile signal. There is scope to extend subject to planning (stpp), so buyers wanting extra space can explore sensible rear/loft options to increase living area and value.
The property is offered requiring renovation: cosmetic updating and some improvement works are needed to bring the kitchen, bathrooms and internal finishes up to modern standards. The house has solid brick walls (likely no cavity insulation) so buyers should allow for insulation and energy-efficiency upgrades. Council tax and local crime levels are above average and the rear plot is a modest size, which may limit larger garden projects.
This home will suit families seeking a character-filled house to personalise, and investors or developers comfortable with renovation and planning to add value. Practical positives — freehold, off-street parking, good transport/communications and strong local schools — support a clear refurbishment strategy to maximise appeal and resale potential.
 4 bedroom end of terrace house for sale in Malden Hill Gardens, New Malden, KT3 — £875,000 • 4 bed • 1 bath • 1394 ft²
 4 bedroom end of terrace house for sale in Malden Hill Gardens, New Malden, KT3 — £875,000 • 4 bed • 1 bath • 1394 ft² 3 bedroom terraced house for sale in Elm Road, New Malden, KT3 — £759,500 • 3 bed • 2 bath • 2125 ft²
 3 bedroom terraced house for sale in Elm Road, New Malden, KT3 — £759,500 • 3 bed • 2 bath • 2125 ft² 3 bedroom semi-detached house for sale in Kings Avenue, New Malden, KT3 — £735,000 • 3 bed • 1 bath • 862 ft²
 3 bedroom semi-detached house for sale in Kings Avenue, New Malden, KT3 — £735,000 • 3 bed • 1 bath • 862 ft² 3 bedroom end of terrace house for sale in Albemarle Gardens, New Malden, KT3 — £650,000 • 3 bed • 1 bath • 1198 ft²
 3 bedroom end of terrace house for sale in Albemarle Gardens, New Malden, KT3 — £650,000 • 3 bed • 1 bath • 1198 ft² 3 bedroom terraced house for sale in Bramshaw Rise, New Malden, KT3 — £685,000 • 3 bed • 1 bath • 1272 ft²
 3 bedroom terraced house for sale in Bramshaw Rise, New Malden, KT3 — £685,000 • 3 bed • 1 bath • 1272 ft² 3 bedroom terraced house for sale in George Road, New Malden, KT3 — £530,000 • 3 bed • 1 bath • 919 ft²
 3 bedroom terraced house for sale in George Road, New Malden, KT3 — £530,000 • 3 bed • 1 bath • 919 ft²














































