Versatile commercial building with generous parking and expansion land.
15,500 sq ft flexible space across two storeys
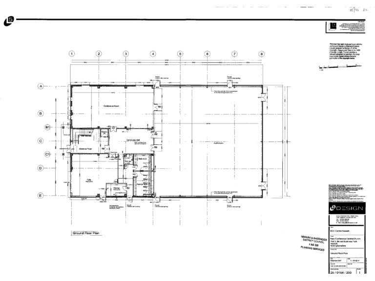
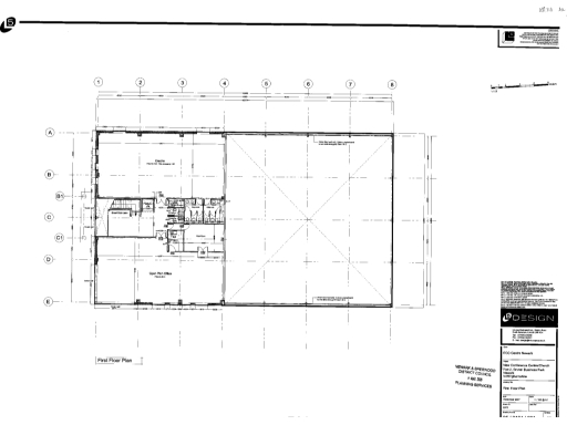
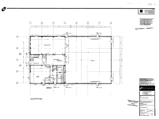
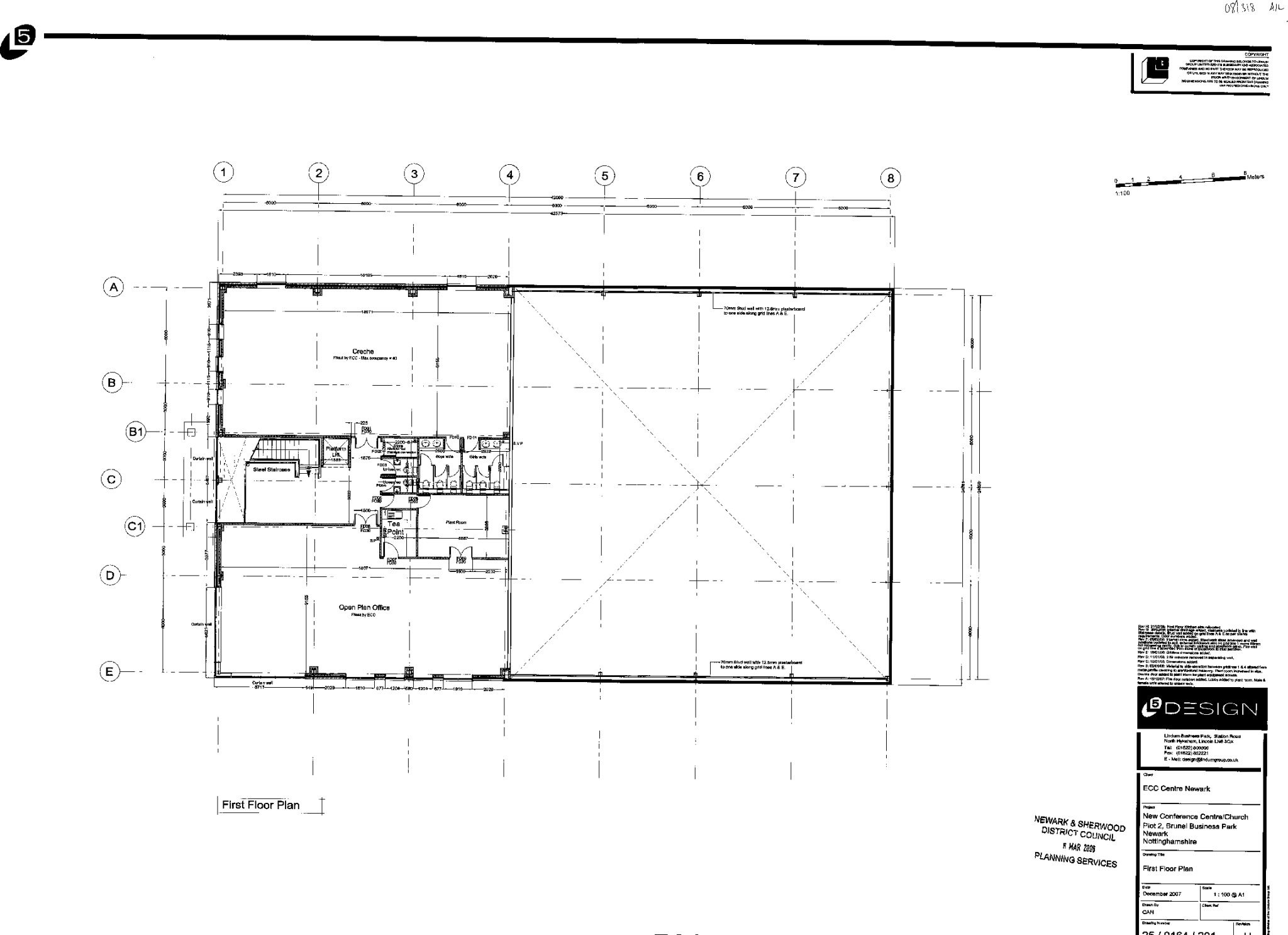
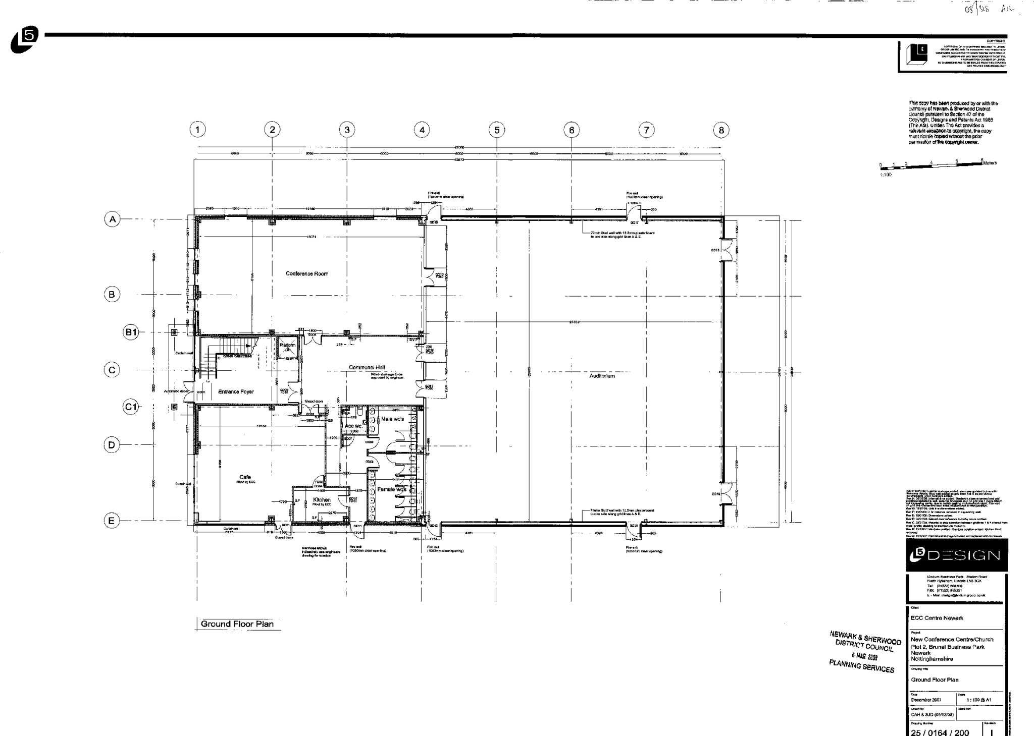
A substantial purpose-built commercial building offering 15,500 sq ft of flexible space across two storeys on a 1.0 acre site, with a further 0.62 acre plot available by separate negotiation. Constructed in 2008, the portal-framed structure provides a minimum 6.5m eaves height, large glazed façades, passenger lift and good welfare facilities, making it suitable for offices, conferencing, light industrial, storage or a mixed commercial occupier.
Planning permission has been granted to change the current F1 use to Classes E, B2 and B8 (ref: 25/01210/FUL), unlocking wider commercial options. The site includes about 90 car parking spaces, partial air-conditioning, fresh-air exchange and mains services connected — practical features for occupiers needing immediate operations or conversion for alternative uses. The property sits on Brunel Business Park with quick access to the A1/A46/A17 junction and is under a mile from the town centre and Northgate rail station.
Material considerations: the building is currently exempt under church use and will be subject to re-assessment on change of use (potential business rates implications). The surrounding area records high crime levels and very high deprivation indices, which may affect some occupier choices and insurance/policy costs. Interested parties should confirm service capacities, VAT position and any change-of-use revaluations with their advisers.
Offered freehold with vacant possession (Lot 1: building and 90-space car park at £1,650,000; Lot 2: adjacent development plot at £295,000). The property’s size, configuration and permitted uses present clear potential for occupiers or investors seeking a large, well-specified site with expansion options close to major road and rail links.
Warehouse for sale in Unit 28, Newark Business Park, Newark, NG24 2EG, NG24 — £139,950 • 1 bed • 1 bath • 1434 ft²
Showroom for sale in 120 Farndon Road, Newark, Nottinghamshire, NG24 — £395,000 • 1 bed • 1 bath • 3310 ft²
Light industrial facility for sale in The Gateway - Newark, Newark, Nottinghamshire, Newark On Trent, NG24 1TZ, NG24 — £500,000 • 1 bed • 1 bath
Warehouse for sale in Godfrey Drive, Overfield Park, Winthorpe, Newark, Nottinghamshire, NG24 2UA, NG24 — POA • 1 bed • 1 bath
Office for sale in Building 1, Enterprise Way, Enterprise Way, Retford, DN22 7HH, DN22 — POA • 1 bed • 1 bath • 5321 ft²
Warehouse for sale in 15D Telford Drive, Brunel Drive Industrial Estate, Newark, NG24 2DX, NG24 — £550,000 • 1 bed • 1 bath • 6918 ft²






























































