Garden and rear access with parking or garage potential for buyers ready to upgrade.
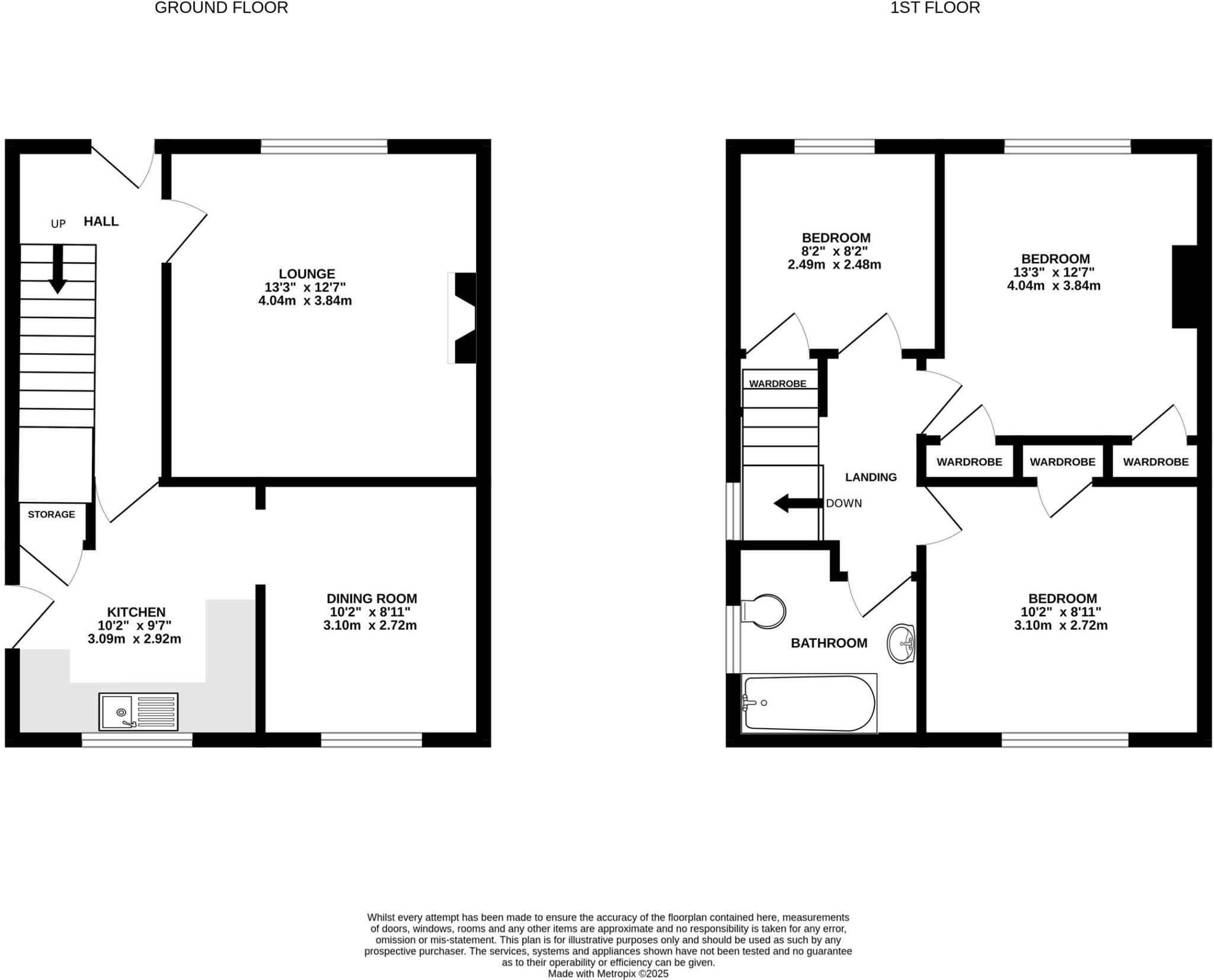
Three bedrooms in a compact 679 sq ft layout
This three-bedroom semi offers a compact but practical layout suited to first-time buyers or investors seeking rental potential. The ground floor provides a lounge, separate dining room and a fitted kitchen, while three bedrooms and a modern bathroom sit on the first floor. At around 679 sq ft the house is modest in size but makes good use of space.
The property's standout asset is its sizable rear garden with lane access — useful for off-street parking or adding a garage (subject to consents). It benefits from gas central heating, double glazing and a low council tax band B, helping running costs.
Buyers should note the home is Laing-Easi system-built concrete construction from the 1950s. Some lenders apply special criteria to this build type, so confirm mortgage eligibility early. The garden and shed are weathered and will need maintenance; the area has higher crime levels and local deprivation indicators.
Positioned close to green spaces such as Kings Weston House and Blaise Castle, schools rated Good, local shops and M5 access, the location suits families and commuters. The house is presented as a straightforward refurbishment opportunity where modest updating and landscaping could add value.
3 bedroom semi-detached house for sale in Mancroft Avenue, Lawrence Weston, Bristol, BS11 — £280,000 • 3 bed • 1 bath • 926 ft²
3 bedroom semi-detached house for sale in Redford Crescent, Bristol, BS13 — £265,000 • 3 bed • 1 bath • 792 ft²
3 bedroom semi-detached house for sale in Mancroft Avenue, Lawrence Weston, Bristol, BS11 — £250,000 • 3 bed • 1 bath • 698 ft²
3 bedroom terraced house for sale in Bowring Close, Bristol, BS13 — £250,000 • 3 bed • 1 bath • 792 ft²
3 bedroom semi-detached house for sale in Grove Leaze, Shirehampton, Bristol, BS11 — £350,000 • 3 bed • 1 bath • 678 ft²
3 bedroom semi-detached house for sale in Mancroft Avenue, Lawrence Weston, Bristol, BS11 — £285,000 • 3 bed • 1 bath • 654 ft²


















































































