Energy-efficient two-bed mews with parking and garden—ideal for first-time buyers seeking low bills..
EPC B for low running costs
Two side-by-side allocated parking spaces
Enclosed rear garden with patio and storage
Shared ownership option (min 25% purchase)
Service charge £61.47 pcm
Single three-piece bathroom only
Semi-rural location yet close to major roads
Local area crime level reported as high
This modern two-bedroom mews is an attractive first home with low running costs, thanks to its EPC B rating and efficient new-build fabric. The layout suits couples or singles seeking a manageable, comfortable property in a semi-rural pocket while remaining close to major road links and local amenities.
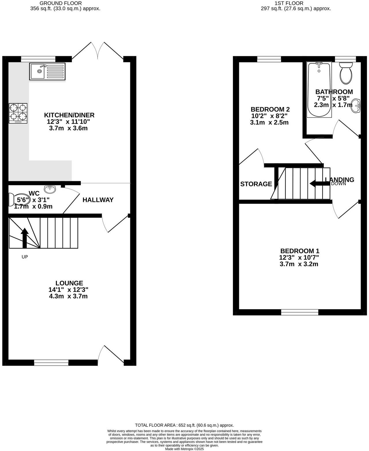
Ground floor living is bright and practical: a spacious lounge, a modern kitchen/diner with French doors to the enclosed garden, and a useful ground-floor WC. Upstairs offers a generous main bedroom with pleasant outlook, a single bedroom with built-in storage, and a three-piece bathroom.
Outside there are two side-by-side allocated parking spaces and an enclosed lawned garden with patio and storage. The property is freehold but sold as shared ownership, allowing buyers to purchase a reduced share (minimum 25%), which lowers upfront cost but includes ongoing rent on the unsold share.
Practical considerations: a modest service charge applies (£61.47 pcm), the home has a single bathroom, and the local crime level is reported as high. For buyers prioritising energy efficiency, low bills, and easy maintenance, this is a sensible, well-located starter option.
2 bedroom mews property for sale in Sidgreaves Lane, Cottam, Preston, PR4 0FQ, PR4 — £68,000 • 2 bed • 1 bath • 652 ft²
2 bedroom end of terrace house for sale in Redwing Drive, Fulwood, Preston, Lancashire, PR2 — £143,750 • 2 bed • 1 bath • 682 ft²
2 bedroom mews property for sale in Avon Close, Claughton-On-Brock, Preston, PR3 — £63,000 • 2 bed • 1 bath • 732 ft²
3 bedroom semi-detached house for sale in Rose Drive, Preston, PR3 — £176,250 • 3 bed • 2 bath • 773 ft²
2 bedroom end of terrace house for sale in Aspen Drive, Cottam, Preston, Lancashire, PR4 — £161,667 • 2 bed • 1 bath • 626 ft²
3 bedroom semi-detached house for sale in Hawthorn Close, Elswick, PR4 — £65,000 • 3 bed • 1 bath • 835 ft²






















































