Affordable 40% share starter home with EPC B and private garden.
40% share for £68,000; buy 25–100% depending on eligibility
Rent on remaining 60% is £269.61 pcm plus £51.47 pcm service charge
Energy-efficient home with a B EPC rating and low running costs
Enclosed rear garden and French doors from kitchen/diner
Two allocated off-street parking spaces, gated rear access
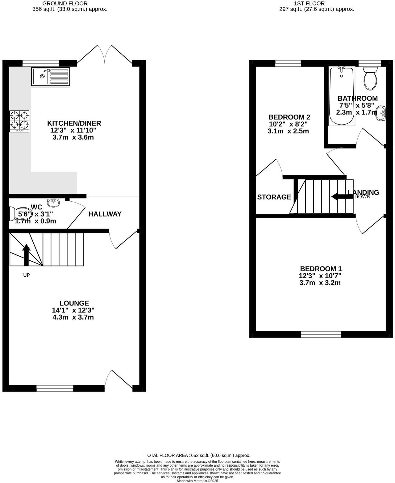
652 sq ft; compact, well-planned two-bedroom layout
Leasehold, shared ownership — check lease length and restrictions
Local area affluent but recorded crime levels are high
This two-bedroom mews home on Sidgreaves Lane offers an affordable entry onto the property ladder via shared ownership. The asking price of £68,000 secures a 40% share; you can buy between 25% and 100%. Rent on the unsold 60% is £269.61pcm, plus an additional service charge of £51.47pcm (service charge cited as £618 annually). Tenure is leasehold — check eligibility and lease length before proceeding.
The property is energy efficient with a B EPC rating and low running costs. The layout provides a bright lounge, modern kitchen/diner with French doors to an enclosed rear garden, two bedrooms and a contemporary three-piece bathroom. At around 652 sq ft, the home is compact but well planned for first-time buyers seeking low-maintenance living.
Practical benefits include two allocated off-street parking spaces, fast broadband and excellent mobile signal. The semi-rural feel and open outlook appeal to buyers wanting quieter surroundings while still close to major roads and local amenities. Note the wider area is classified as very affluent, but recorded local crime levels are high — consider this when assessing suitability.
Overall, this property suits first-time buyers seeking an affordable, energy-efficient starter home with predictable running costs and some outside space. Shared ownership means lower upfront cost but ongoing rent and charges; buyers should budget for those commitments and confirm lease details.
2 bedroom mews property for sale in Sidgreaves Lane, Cottam, Preston, PR4 0FQ, PR4 — £170,000 • 2 bed • 1 bath • 652 ft²
3 bedroom semi-detached house for sale in Redford Close, Higher Bartle, PR4 — £66,250 • 3 bed • 2 bath • 1088 ft²
2 bedroom end of terrace house for sale in Redwing Drive, Fulwood, Preston, Lancashire, PR2 — £143,750 • 2 bed • 1 bath • 682 ft²
2 bedroom mews property for sale in Avon Close, Claughton-On-Brock, Preston, PR3 — £63,000 • 2 bed • 1 bath • 732 ft²
3 bedroom semi-detached house for sale in Rose Drive, Preston, PR3 — £176,250 • 3 bed • 2 bath • 773 ft²
2 bedroom apartment for sale in Wesham Park Drive, Preston, PR4 — £36,750 • 2 bed • 2 bath • 603 ft²






















































