Single-floor living with high-spec eco features and expansive rural views.
Vaulted open-plan reception with atrium windows and bi-fold doors
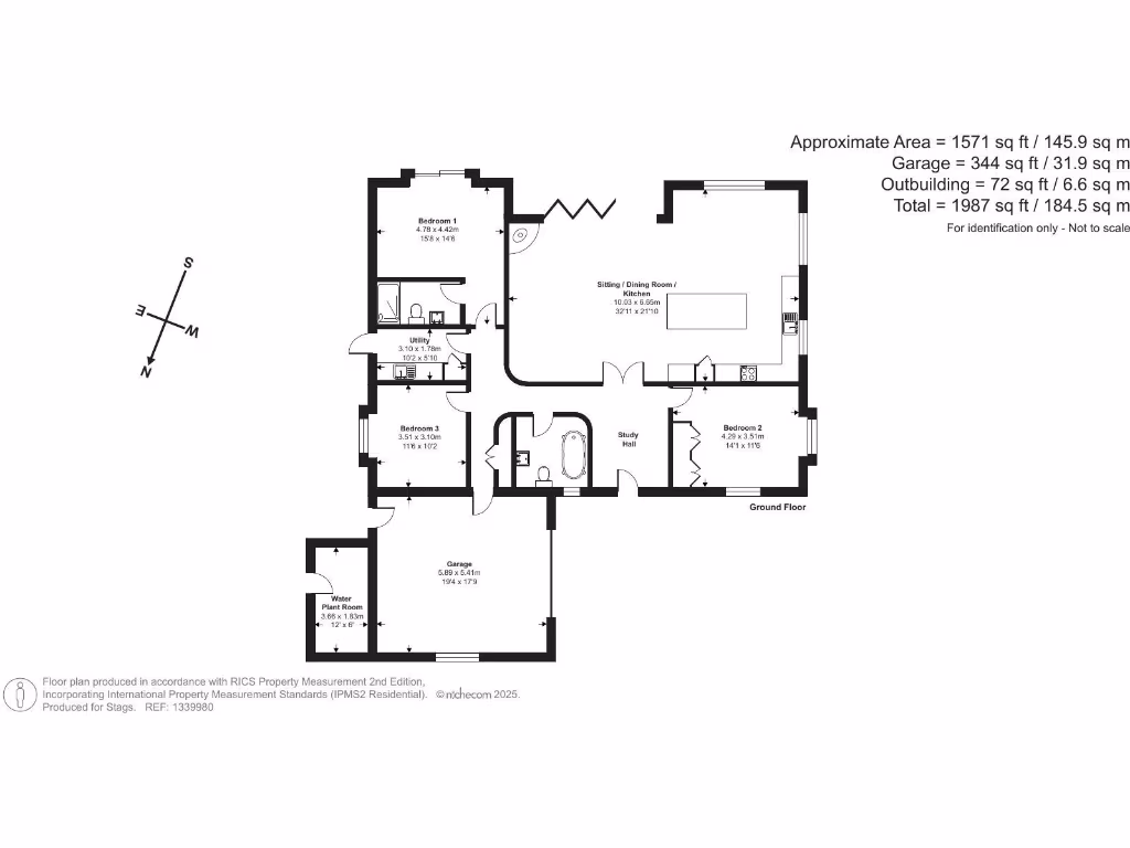
A high-spec, single-storey home set in a peaceful hamlet just outside Barnstaple, finished in western red cedar with large windows and vaulted ceilings. The open-plan kitchen/dining/living area with bi-folds and an atrium window floods the interior with light; the accommodation includes three double bedrooms, two contemporary bathrooms and a double garage. Eco-conscious buyers will value PV panels, an air-source heat pump with underfloor heating, EV charging point and an EPC A rating. A six-year professional warranty is in place.
Outside, the plot is notably generous with extensive parking, hardstanding suitable for a motorhome, terraces and low-maintenance landscaped lawns. The garage could be adapted to provide an additional ensuite bedroom (subject to planning) and there is separate vendor-owned consent on an adjacent outbuilding for conversion — useful context for future neighbourhood change. The property is chain free and ready to occupy.
Practical points to note: the home uses a private water supply and private Tricel sewage treatment plant; broadband speeds are reported as very slow despite excellent mobile signal. Council Tax band is not yet confirmed. Overall this is a turnkey, contemporary bungalow suited to buyers seeking single-floor, energy-efficient living in a quiet rural location with strong access to coast and Barnstaple amenities.
4 bedroom detached house for sale in Lydacott, Barnstaple, EX31 — £950,000 • 4 bed • 4 bath • 1771 ft²
4 bedroom detached house for sale in Lydacott, Barnstaple, EX31 — £550,000 • 4 bed • 3 bath • 2040 ft²
2 bedroom detached bungalow for sale in Drake Avenue, Yelland, EX31 — £325,000 • 2 bed • 1 bath • 657 ft²
4 bedroom bungalow for sale in Yelland Road, Fremington, Barnstaple, Devon, EX31 — £500,000 • 4 bed • 3 bath • 1534 ft²
2 bedroom bungalow for sale in Woolmers Lane, Bickington, Barnstaple, Devon, EX31 — £465,000 • 2 bed • 2 bath • 709 ft²
3 bedroom bungalow for sale in Shirwell Road, Barnstaple, EX31 — £639,000 • 3 bed • 1 bath • 1700 ft²










































































