**Standout Features:**
- Self-build opportunity with approved planning permission (Ref: PL/23/3598/FA).
- Picturesque south-facing location with scenic views over fields and woodland.
- Current property is a detached bungalow, offering three bedrooms and a separate modern home office/studio.
- Expansive plot that allows for the potential to construct a spacious new home exceeding 2000 sq ft.
- Located in a highly affluent area with access to excellent educational facilities.
**Summary:**
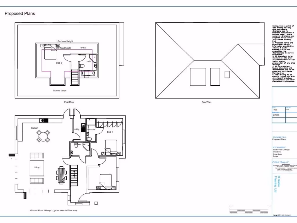
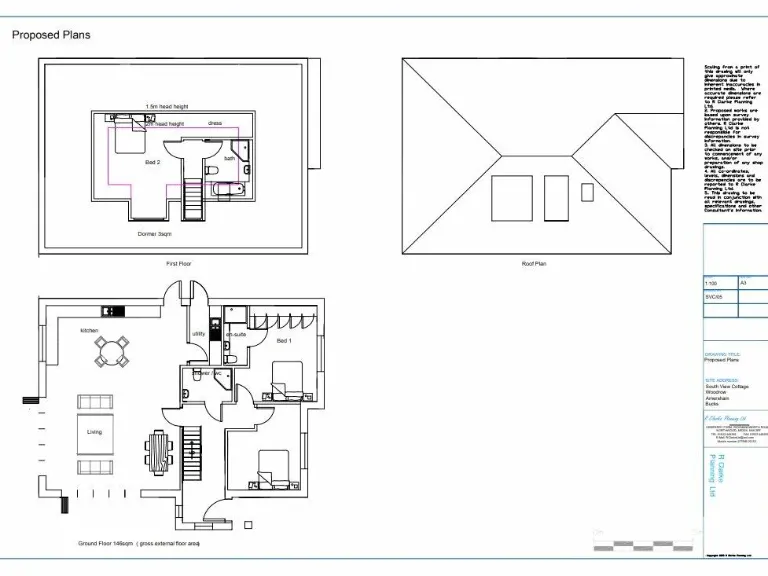
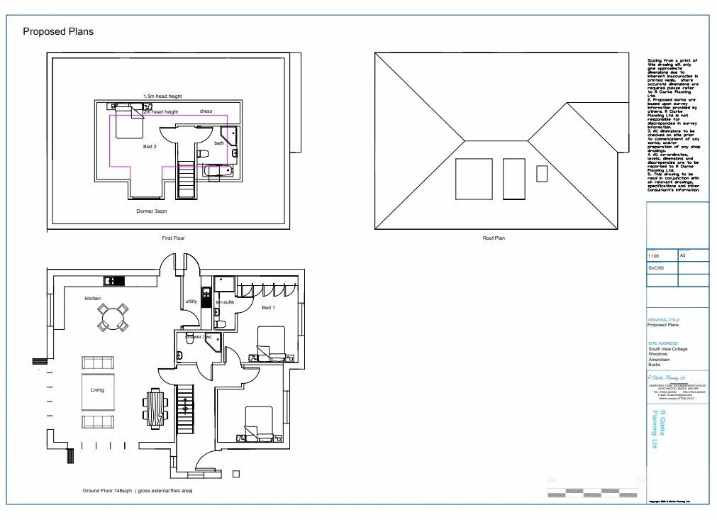
Discover an exceptional self-build opportunity with approved planning permission to transform this charming bungalow into your dream home. Nestled in the picturesque hamlet of Woodrow, this property sits on a large south-facing plot with stunning views of the surrounding countryside. While the existing bungalow requires modernisation, it's structurally sound and offers three generous bedrooms, a sitting/dining room, and a separate home office/studio designed to maximize those tranquil views.
With planning permission granted to build a new residence over two floors, this property holds immense potential for customisation and expansion in line with your vision. Located just minutes from Amersham's historic Old Town, comprehensive shopping, and top-rated schools such as Dr Challoner's Grammar School, you’ll enjoy a perfect blend of countryside living with urban amenities.
With strong demand for properties in this affluent area, don't miss the chance to invest in a project that could redefine your lifestyle and create a bespoke home. Act now to secure this unique piece of real estate before it's gone!
Plot for sale in Village Road, Coleshill, Amersham, Buckinghamshire, HP7 — £1,500,000 • 1 bed • 1 bath • 333 ft²
3 bedroom detached house for sale in Old Shire Lane, Chorleywood, Rickmansworth, Hertfordshire, WD3 — £1,150,000 • 3 bed • 1 bath • 3500 ft²
4 bedroom detached house for sale in Coleshill Lane, Winchmore Hill, Amersham, Buckinghamshire, HP7 — £995,000 • 4 bed • 2 bath • 2350 ft²
5 bedroom detached house for sale in High Barn Farm, Woodrow, HP7 — £2,950,000 • 5 bed • 3 bath • 6000 ft²
Plot for sale in Kestrel Drive, Hazlemere, High Wycombe, Buckinghamshire, HP15 — £695,000 • 1 bed • 1 bath
5 bedroom detached house for sale in Bicester Road, Long Crendon, Aylesbury, Buckinghamshire, HP18 — £1,250,000 • 5 bed • 5 bath • 4000 ft²


















































































































