Low guide price, clear renovation upside for investors or experienced DIY buyers.
Freehold vacant possession — sold at public auction
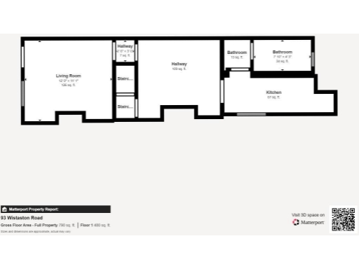
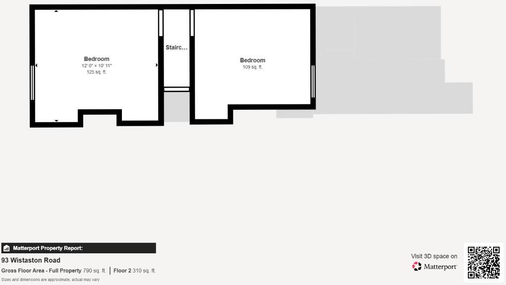
A vacant freehold mid-terraced Victorian property offered at auction with clear renovation potential. The house has two reception rooms, two bedrooms and a rear yard, making it suitable for a buy-to-let refit or an owner-occupier renovation project. The property benefits from mains gas central heating, double glazing and an EPC rating of D, and it sits close to schools, shops and public transport.
This is a value-focused opportunity for investors or experienced DIY buyers. The building is of solid brick construction (likely uninsulated) and dates from c.1900–1929, so expect works to modernise heating efficiency, insulation and interior finishes. The property is being sold at public auction with vacant possession — buyers should review the legal pack carefully and factor in the auction administration fee and any additional costs.
Location strengths include fast broadband, excellent mobile signal and proximity to multiple primary and secondary schools rated Good, as well as local amenities and transport links. Downsides: the area is classified as deprived with above-average crime, the plot is small, and the house requires modernisation throughout. Suitable for purchasers prepared to carry out refurbishment to add value or reconfigure for rental income.
2 bedroom semi-detached house for sale in 26 Ernest Street, Crewe, Cheshire, CW2 6JF, CW2 — £19,000 • 2 bed • 1 bath • 894 ft²
2 bedroom terraced house for sale in Newdigate Street, Crewe, CW1 — £81,000 • 2 bed • 1 bath • 948 ft²
2 bedroom terraced house for sale in 72 Edleston Road, Crewe, CW2 7HD, CW2 — £30,000 • 2 bed • 1 bath • 689 ft²
2 bedroom terraced house for sale in Vincent Street, Crewe, Cheshire, CW1 — £75,000 • 2 bed • 1 bath • 795 ft²
3 bedroom terraced house for sale in Number 7 Brook Street, Crewe, Cheshire CW2 7DE, CW2 — £19,000 • 3 bed • 1 bath • 1112 ft²
3 bedroom terraced house for sale in Nelson Street, Crewe, Cheshire, CW2 — £110,000 • 3 bed • 1 bath • 1144 ft²














































































