Compact period house with garden — auction sale, refurbishment opportunity.
Freehold vacant possession on completion
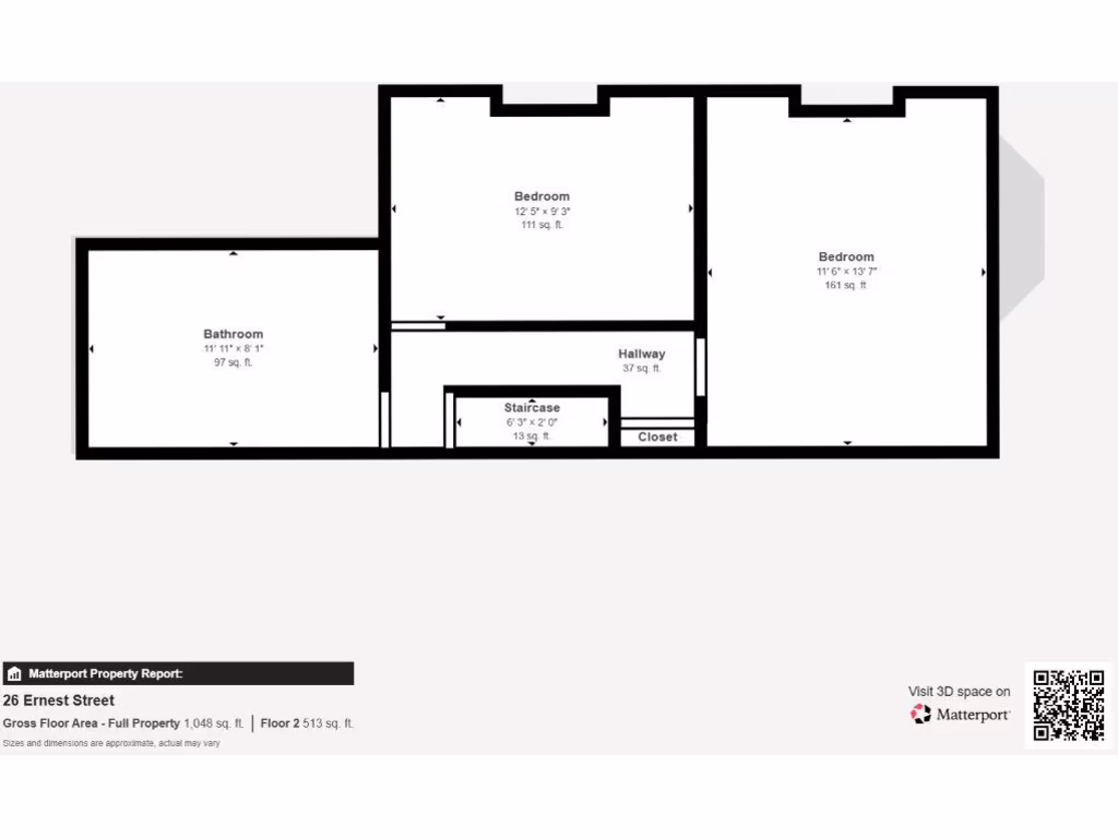
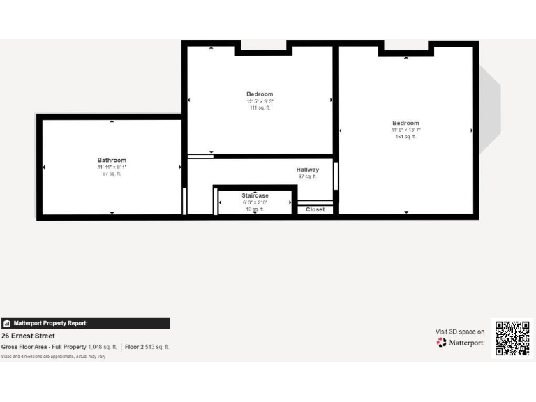
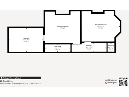
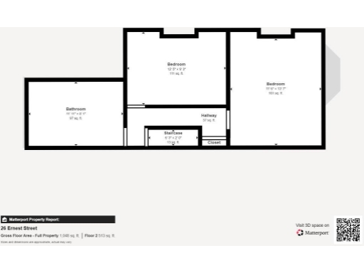
A compact Victorian semi detached home offered freehold with vacant possession — sold at public auction with a guide price of £19,000. The house retains period character such as bay windows and high ceilings, and benefits from double glazing, mains gas central heating and a small garden. Broadband speeds are listed as fast and mobile signal excellent, useful for rental or refurbishment plans.
The property is small (approx. 535 sq ft) and sits in a high-crime, deprived area of Crewe. Walls are solid brick with no known insulation (assumed), so buyers should budget for thermal improvements and possible internal works. The Energy Performance rating is D.
This lot suits investors or experienced buyers prepared to buy at auction and complete promptly. Note the sale carries an administration fee payable on completion and all lots are sold subject to the auctioneer’s reserve. Viewings are time-limited and the legal pack should be checked for additional costs and any special conditions prior to bidding.
Practical positives are the freehold tenure, existing gas boiler and straightforward two-bedroom layout that allows quick refurbishment for letting or resale. Material drawbacks are the location’s crime/deprivation profile, likely retrofit costs for insulation and any unseen repairs — viewings are at your own risk and properties may have no electricity.
2 bedroom terraced house for sale in 93 Wistaston Road, Crewe, CW2 7RB, CW2 — £20,000 • 2 bed • 1 bath • 790 ft²
2 bedroom terraced house for sale in Newdigate Street, Crewe, CW1 — £81,000 • 2 bed • 1 bath • 948 ft²
2 bedroom terraced house for sale in 72 Edleston Road, Crewe, CW2 7HD, CW2 — £30,000 • 2 bed • 1 bath • 689 ft²
3 bedroom terraced house for sale in Number 7 Brook Street, Crewe, Cheshire CW2 7DE, CW2 — £19,000 • 3 bed • 1 bath • 1112 ft²
2 bedroom terraced house for sale in Vincent Street, Crewe, Cheshire, CW1 — £75,000 • 2 bed • 1 bath • 795 ft²
3 bedroom terraced house for sale in Nelson Street, Crewe, Cheshire, CW2 — £110,000 • 3 bed • 1 bath • 1144 ft²














































































