4-bed detached family house with garage and west-facing garden in popular Hereford location.
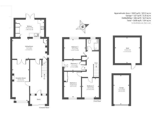
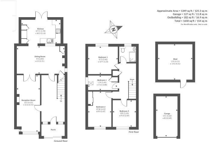
Four bedrooms across two storeys, approximately 1,540 sq ft
Set on Highmore Street, this spacious four-bedroom detached house offers 1,539–1,540 sq ft of family-friendly accommodation across two storeys. The home has two large reception rooms, a bright breakfast kitchen with vaulted skylight and sliding doors to a west-facing garden — a layout that suits daily family life and social entertaining. A driveway and detached garage provide secure parking and storage.
Built around 1980 and presented in good order, the property combines practical modern finishes (wood-effect floors, double glazing) with period-style charm such as a bay-windowed living room and a traditional fireplace. The garden is a standout: a well-kept lawn, paved patio, curved path and shed give a private, useable outdoor space for children and pets.
Important practical points to note: the house has a single family bathroom, which may be limiting for a four-bedroom household, and the double-glazing install date is not confirmed. The layout and size give clear potential for updating the kitchen or adding a second bathroom if desired, which could deliver long-term value uplift.
Overall this freehold detached home sits in a popular residential area with good local schools and low crime, making it a strong candidate for families looking for space, a garden and easy parking in Hereford. Viewing is recommended to appreciate the room proportions and garden orientation in person.
4 bedroom detached house for sale in Bredon Drive, Kings Acre, Hereford, HR4 — £425,000 • 4 bed • 2 bath • 1633 ft²
4 bedroom house for sale in Avocet Road, Holmer, Hereford, HR4 — £450,000 • 4 bed • 3 bath • 1510 ft²
4 bedroom house for sale in Bran Rose Way, Holmer, Hereford, HR1 — £290,000 • 4 bed • 2 bath • 1162 ft²
5 bedroom detached house for sale in Kings Acre Road, Hereford, HR4 — £485,000 • 5 bed • 3 bath • 1479 ft²
4 bedroom detached house for sale in Bran Rose Way, Holmer, Hereford, HR1 — £375,000 • 4 bed • 2 bath • 969 ft²
4 bedroom detached house for sale in Haycroft, Hampton Dene, Hereford, HR1 — £350,000 • 4 bed • 1 bath • 1143 ft²






























































