Large rural plot with delivered utilities and planning certainty for a modern home.
Outline and reserved matters planning granted (WD/2021/2356/MAO; APP/C1435/W/22/329737)
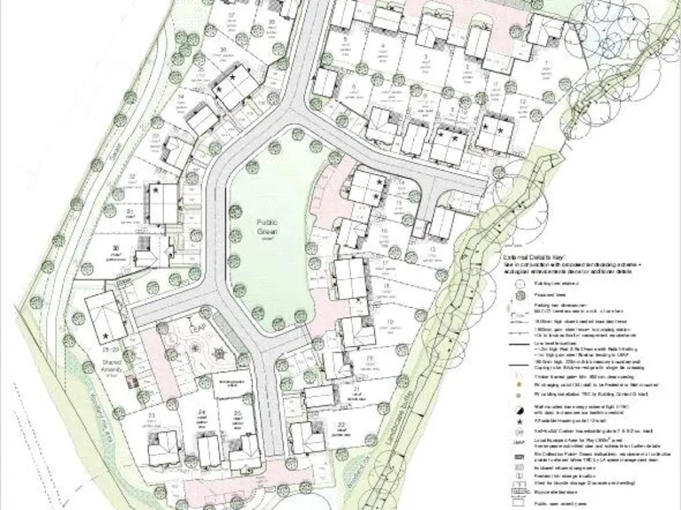
A large self-build plot with outline and reserved matters permission sits on Horebeech Lane, close to Horam village and the Cuckoo Trail. The developer will deliver communal highways, landscaping and utilities before custom builders start, simplifying the build process for a modern two-storey detached home. Flood risk is low and the site benefits from an affluent, semi-rural setting on the edge of the High Weald AONB.
This opportunity is aimed at buyers who want a near-new home tailored to their needs. Proposed plans show a medium-sized, two-storey layout with standard ceiling heights and modern elevations; you can adapt finishes and internal layouts during the reserved matters stage. Local amenities are convenient — the high street is about a 12-minute walk away — and nearby schools and bus links suit families and commuters.
Important practical points: broadband speeds are currently slow and mobile signal is average. Tenure and council tax banding are not specified and should be confirmed before purchase. The developer’s responsibility to complete communal works reduces initial infrastructure risk, but buyers should allow budget and time for the custom build finishes and on-plot works.
Overall, this plot offers a chance to create a contemporary detached home in an attractive village setting, with infrastructure delivered to plot boundary and planning certainty in place. It’s a strong option for buyers seeking control over design, but due diligence on services, tenure and connectivity is recommended.
Land for sale in Horebeech Lane, Horam, Heathfield, East Sussex, TN21 — £3,000,000 • 1 bed • 1 bath
House for sale in Chiddingly Road, Horam, TN21 — £850,000 • 1 bed • 1 bath
Land for sale in Chiddingly Road, Horam, Heathfield, TN21 — £550,000 • 1 bed • 1 bath • 4579 ft²
House for sale in Chiddingly Road, Horam, TN21 — £550,000 • 1 bed • 1 bath
House for sale in Chiddingly Road, Horam, TN21 — £750,000 • 1 bed • 1 bath
House for sale in Chiddingly Road, Horam, TN21 — £280,000 • 1 bed • 1 bath






















