LN1 2NW - 2 bedroom park home for sale in Poplar Drive, The Elms, LN1

View on Property Piper

2 bedroom park home for sale in Poplar Drive, The Elms, LN1

Summary - 3, POPLAR DRIVE, THE ELMS, LINCOLN, TORKSEY LN1 2NW

2 bed 1 bath Park Home

**Standout Features:**
- Two-bedroom single-level park home in a secure over 50s community.
- Located in the tranquil Elms development, surrounded by 10 acres of parkland.
- Low crime rate and peaceful rural setting.
- Beautifully landscaped gardens with dedicated outdoor seating areas.
- Off-street parking and additional utility space.
- No chain, allowing for quick move-in.

**Concerns:**
- Compact size of 541 sq. ft. may not suit everyone.
- Ground rent of £2,575 per annum.
- Restrictions on pets and age (50+).

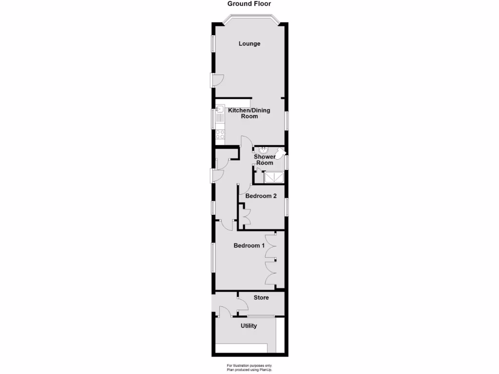
This charming two-bedroom park home offers an ideal haven for relaxation and community living within the coveted over 50s development of The Elms in Torksey, Lincoln. Boasting security and surrounding nature, this property features well-appointed rooms, including a cozy lounge, a combined kitchen/diner, and a shower room, all designed for ease of maintenance and comfortable living. The gardens provide a delightful outdoor space for enjoyment, while additional storage in the utility room and garden store enhances practicality.

Residents will appreciate the peaceful surroundings, including lakes, protected parkland, and easy access to local amenities like shopping and historical sites in nearby Lincoln. With council tax band A, this property represents an affordable opportunity for those seeking a tranquil lifestyle. However, potential buyers should consider the compact layout and ground rent. Act fast to secure this delightful home and embrace a lifestyle of comfort, security, and community!

Property Details

Brochure Descriptions

Image Descriptions

Floorplan Description

Rooms

Textual Property Features

Detected Visual Features

Nearby Schools

Nearest Bars And Restaurants

,,,,}

Nearest General Shops

,,}

Nearest Grocery shops

,,}

Nearest Supermarkets

,,}

Nearest Religious buildings

,,}

Nearest Medical buildings

,,,}

Nearest Airports

}

Nearest Leisure Facilities

,,,,}

Nearest Tourist attractions

,,}

Nearest Train stations

,,,,}

Nearest Bus stations and stops

,,,,}

Nearest Hotels

,,}

Tags

Local Market Stats

AirBnB Data

Similar Properties

Meta

High Res Images

Compatible Images

Low res Images

Thumbnails

Raw Images

High Res Floorplan Images

Compatible Floorplan Images

Low res Floorplan Images

FloorplanImages Thumbnail

Raw Floorplan Images