LN1 2HF - 2 bedroom park home for sale in Maple Avenue, The Elms, Tor…

View on Property Piper

2 bedroom park home for sale in Maple Avenue, The Elms, Torksey, LN1

Summary - 10, MAPLE AVENUE, THE ELMS, LINCOLN, TORKSEY LN1 2HF

2 bed 1 bath Park Home

**Standout Features:**
- 2 bedrooms, newly refitted bathroom, lounge, and kitchen diner
- Located in an award-winning retirement development, The Elms
- Chain free with allocated parking and a garden store
- Secure, tranquil living environment with communal parkland and lakes

**Potential Downsides:**
- Compact room sizes may feel limiting for some
- No pets allowed and restricted to residents aged 50 and over
- Future resale may incur a 10% commission under the Mobile Homes Act

Experience the serene lifestyle offered by this charming two-bedroom retirement park home in The Elms, Torksey. This newly renovated property boasts a spacious lounge and kitchen diner, complemented by a modern bathroom and utility room, creating an inviting atmosphere for comfortable living. Surrounded by beautiful landscapes, lakes, and wildlife, residents can enjoy leisurely strolls and fishing right at their doorstep. With no onward chain, and the luxury of off-street parking, this home is not just a residence; it's an opportunity for peaceful, secure living in a vibrant community.

Ideal for retirees seeking comfort and convenience, this property grants access to local amenities, nearby historical sites, and excellent transport links to Lincoln and Gainsborough. A garden store and allocated parking enhance the functionality of the home, while the low council tax band provides an economical benefit. This unique opportunity won’t last long—schedule your viewing today and embrace a more fulfilling lifestyle in this exclusive retirement development.

Property Details

Brochure Descriptions

Image Descriptions

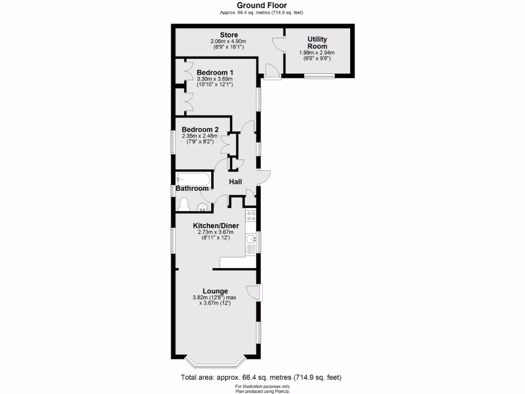
Floorplan Description

Rooms

Textual Property Features

Detected Visual Features

Nearby Schools

Nearest Bars And Restaurants

,,,,}

Nearest General Shops

,,}

Nearest Grocery shops

,,}

Nearest Supermarkets

,,}

Nearest Religious buildings

,,}

Nearest Medical buildings

,,,}

Nearest Airports

}

Nearest Leisure Facilities

,,,,}

Nearest Tourist attractions

,,}

Nearest Train stations

,,,,}

Nearest Bus stations and stops

,,,,}

Nearest Hotels

,,}

Tags

Local Market Stats

Similar Properties

Meta

High Res Images

Compatible Images

Low res Images

Thumbnails

Raw Images

High Res Floorplan Images

Compatible Floorplan Images

Low res Floorplan Images

FloorplanImages Thumbnail

Raw Floorplan Images