Ground-floor flat with parking and excellent local schools for growing families.
- Two double bedrooms with built-in storage
- Bright 17' reception/dining room with garden access
- Direct access to well-maintained residents' garden
- Residents' permit off-street parking included
- Long lease: circa 168 years remaining
- Modern separate kitchen and double glazing throughout
- Broadband speeds average; council tax moderate
- Additional leasehold/legal pack fees may apply
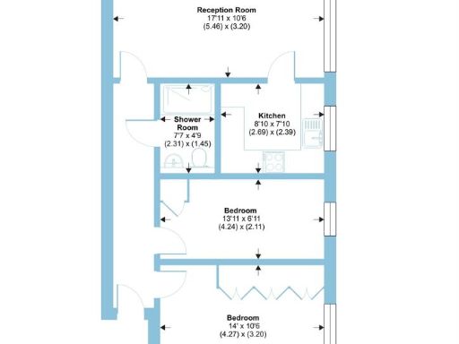
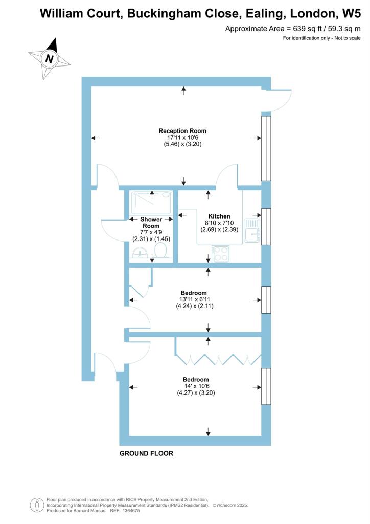
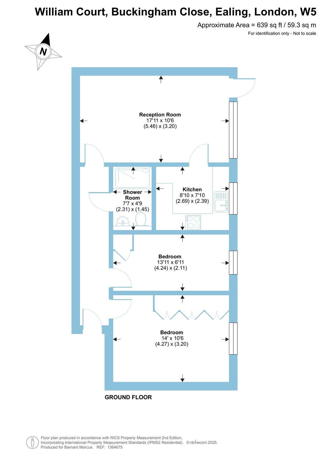
Well-appointed two-bedroom ground-floor flat in William Court, sitting quietly off Buckingham Close in sought-after Ealing W5. The layout includes two double bedrooms, a bright 17' reception/dining room with French doors to the residents' garden, and a separate modern kitchen — practical for family life or flexible home-working. Residents' permit off-street parking and double glazing add everyday convenience.
The long lease (circa 168 years) and gas central heating make this a straightforward purchase for buyers who prefer low immediate maintenance. The flat is a short walk from Pitshanger Village and close to Ealing Broadway transport links (Elizabeth, District, Central lines and Great Western Rail), shops and restaurants, giving a genuine balance of neighbourhood calm and city access.
Local schools are a clear draw, with highly regarded independent and strong state options nearby. Note practical points: broadband speeds are recorded as average, council tax banding is moderate, and additional leasehold or legal pack fees may apply. A basic survey is recommended to independently verify services and fittings.
This is a solid option for small families or buyers seeking a low-effort flat with outside space and good transport connections. The long lease and garden access provide long-term appeal, while the property offers straightforward potential to personalise the interior.
2 bedroom apartment for sale in St. Leonards Road, London, W13 — £649,000 • 2 bed • 2 bath • 829 ft²
2 bedroom flat for sale in Eaton Rise, W5 — £475,000 • 2 bed • 1 bath • 667 ft²
2 bedroom flat for sale in Holyoake Walk, W5 — £450,000 • 2 bed • 1 bath • 632 ft²
2 bedroom apartment for sale in Argyle Road, Ealing, W13 — £400,000 • 2 bed • 1 bath • 665 ft²
1 bedroom apartment for sale in Cambridge House, 23 Courtfield Gardens, Ealing, W13 — £350,000 • 1 bed • 1 bath • 476 ft²
2 bedroom flat for sale in Freeland Road, London, W5 — £575,000 • 2 bed • 2 bath • 915 ft²














































