Newly updated interior with private garden and garage, ideal for growing families.
Three bedrooms including two generous doubles and fitted wardrobes
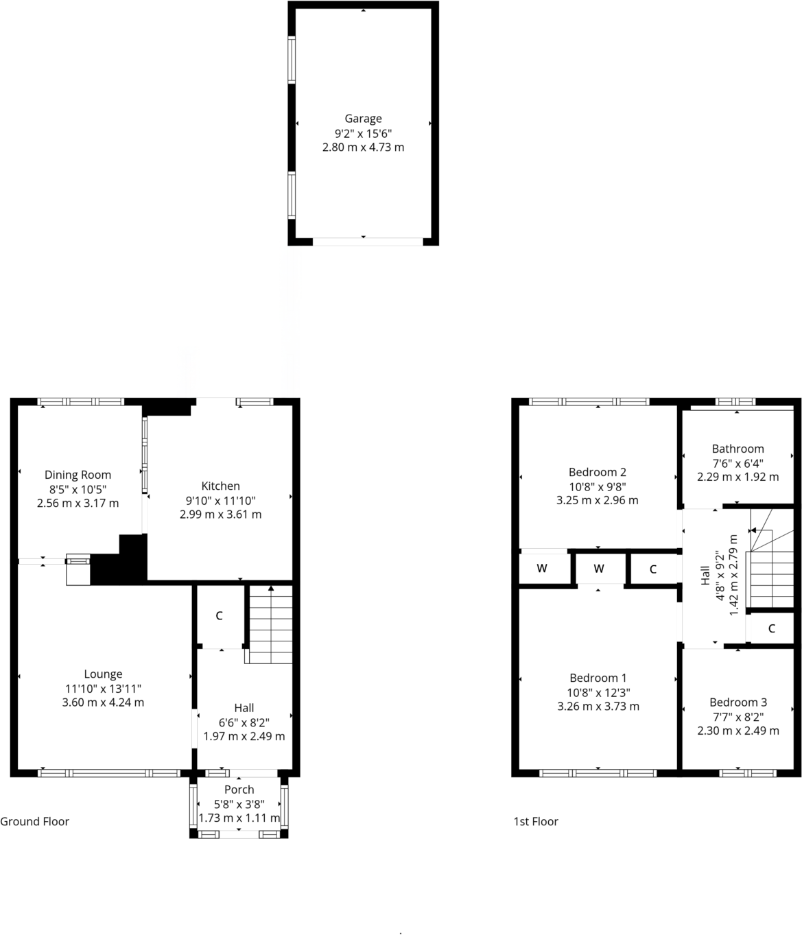
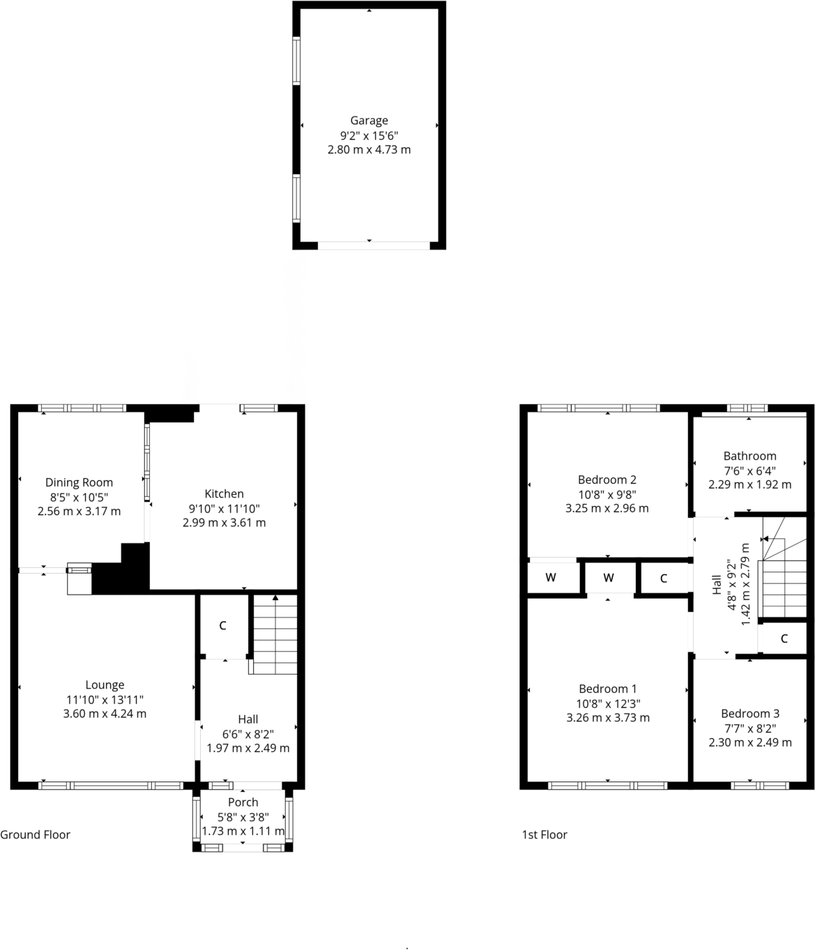
Set on Burnbrae Avenue and overlooking a small park, this newly renovated three-bedroom semi delivers comfortable family living in a popular Bearsden suburb. The interior has been refreshed throughout with a contemporary kitchen and refitted bathroom, bright reception rooms and useful storage including a floored attic. A private, landscaped rear garden, driveway parking for several cars and a detached single garage add practical appeal.
The layout suits family life: two generous double bedrooms with fitted wardrobes, a flexible third bedroom or home office, a separate dining room and a living room that takes advantage of the open outlook. Modern comforts include gas central heating, replacement double glazing, fast broadband and excellent mobile signal. The property is in walk-in condition internally and measures about 828 sq ft.
Buyers should note a few material points: the exterior and some external finishes appear dated and may need attention, there is a single family bathroom, and council tax is above average. Local area data also flags pockets of deprivation despite Bearsden’s generally affluent reputation; schools and amenities remain strong but prospective buyers should check local details if public services are a priority.
Overall this semi-detached villa will suit families or couples seeking a move-in-ready home with outdoor space, strong connectivity and scope to enhance the exterior and further personalise interiors.
3 bedroom semi-detached house for sale in Iain Road, Bearsden, G61 — £335,000 • 3 bed • 2 bath • 1142 ft²
3 bedroom semi-detached house for sale in Mosshead Road, Bearsden, G61 — £298,000 • 3 bed • 1 bath • 1030 ft²
3 bedroom semi-detached house for sale in 55 Beech Avenue, Bearsden, G61 3EU, G61 — £395,000 • 3 bed • 2 bath • 1184 ft²
3 bedroom semi-detached house for sale in Cairngorm Crescent, Bearsden, G61 — £295,000 • 3 bed • 1 bath • 936 ft²
3 bedroom semi-detached house for sale in Mosshead Road, Bearsden, G61 — £358,000 • 3 bed • 1 bath • 1082 ft²
4 bedroom semi-detached house for sale in Burnbrae Avenue, Bearsden, G61 — £399,000 • 4 bed • 2 bath • 1294 ft²






















































































































































