Classic 1930s villa with south garden and garage, ready for modernisation.
Three bedrooms with generous, period room proportions
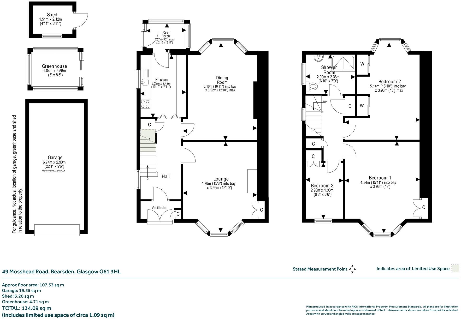
This three-bedroom semi-detached villa from the 1930s combines original red stone character with generous room proportions and a practical family layout. Positioned in Bearsden’s Burnbrae district, the house sits close to Kilmardinny Loch and woodland walks, and falls within Mosshead Primary and Bearsden Academy catchments — a clear draw for families.
The property has useful practical features including PVCu double glazing, gas central heating, detached garage, and driveway parking. A south-facing rear garden and greenhouse offer outdoor space for children and gardening. Broadband and mobile signals are strong, supporting home working and study.
No.49 requires a programme of modernisation throughout, offering an opportunity to update finishes and services to current standards. There is notable potential to extend to the side and rear (subject to local authority consents), which could increase living space and resale value if taken forward.
Important considerations: the home is sold freehold but is in Council Tax Band F and has an EPC rating of D. Buyers should allow budget for refurbishment and upgrades, and check any planning constraints before pursuing extensions. Flood risk is nil.
3 bedroom semi-detached house for sale in Mosshead Road, Bearsden, G61 — £358,000 • 3 bed • 1 bath
3 bedroom semi-detached house for sale in 55 Beech Avenue, Bearsden, G61 3EU, G61 — £395,000 • 3 bed • 2 bath • 1184 ft²
3 bedroom semi-detached house for sale in 31 Burnbrae Avenue, Bearsden, G61 3ET, G61 — £290,000 • 3 bed • 1 bath • 828 ft²
3 bedroom semi-detached house for sale in Bailie Drive, Bearsden, G61 — £360,000 • 3 bed • 1 bath • 1044 ft²
3 bedroom semi-detached house for sale in Mosshead Road, Bearsden, G61 — £298,000 • 3 bed • 1 bath • 1030 ft²
4 bedroom semi-detached house for sale in Burnbrae Avenue, Bearsden, G61 — £399,000 • 4 bed • 2 bath • 1294 ft²


























































































