Bright compact one-room flat with long lease and fast broadband near parks and shops.
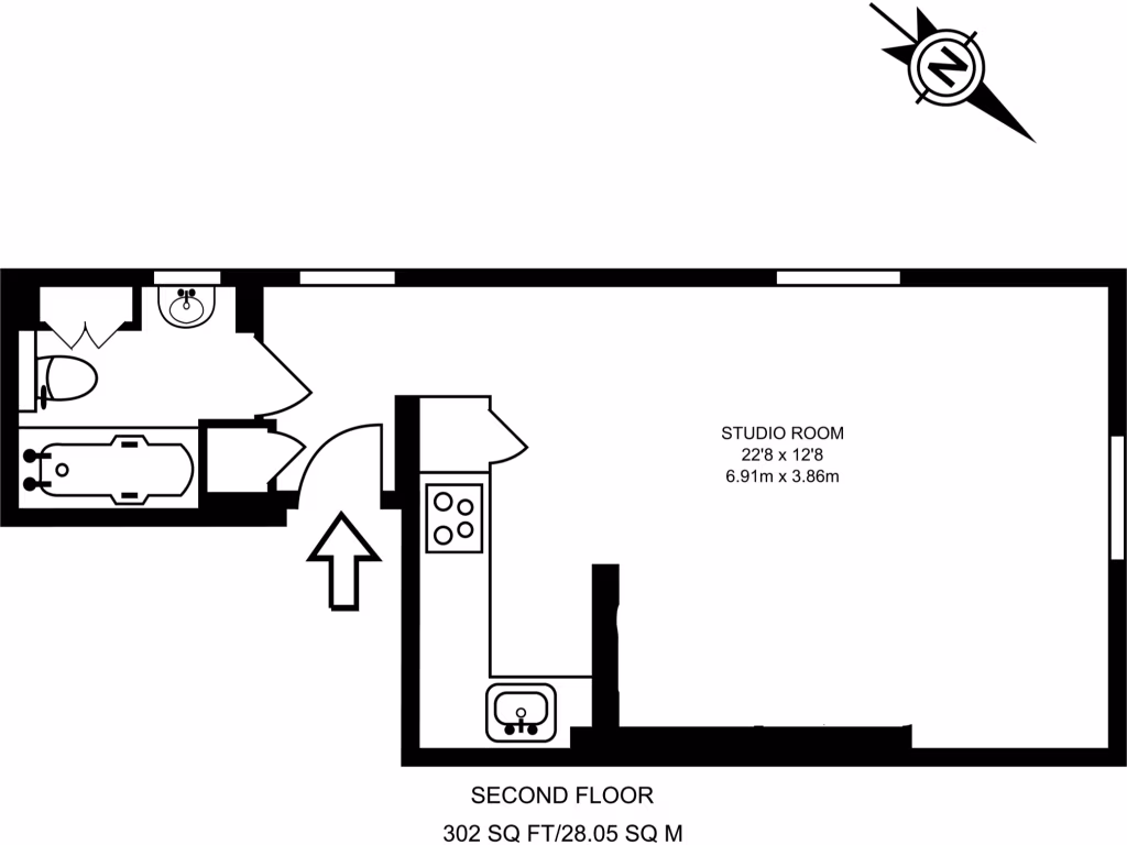
Second-floor studio in 1930s period conversion
Bright open-plan living with integrated appliances
Approx 302 sq ft — compact one-room layout
Share of freehold; lease c.962 years (very long)
Fast broadband and excellent mobile signal
Mains-gas boiler and radiators; solid-brick walls, likely no insulation
Above-average local crime; area has deprivation indicators
Service charge £900 pa (below average)
Set on the second floor of a handsome 1930s period conversion, this compact studio offers bright, open-plan living in a leafy North Kensington pocket. Large windows admit plenty of natural light across a well-presented interior, with integrated appliances and an elegant bathroom keeping the space efficient and move-in ready.
Particularly appealing to first-time buyers or buy-to-let investors, the flat benefits from a very long lease (share of freehold, c.962 years) and fast broadband with excellent mobile signal — practical assets for modern city living or rental appeal. The building’s Victorian character and decent plot size give a sense of permanence and potential, while nearby Wormwood Scrubs and local shops, cafés and transport links place everyday amenities within easy reach.
Be clear about the constraints: the property is small (c.302 sq ft) and arranged as a single-room studio, so it suits solo occupants or those seeking a compact pied-à-terre rather than family living. The area shows above-average crime levels and some local deprivation indicators, which buyers should factor into decisions about security and long-term growth.
The flat is heated by a mains-gas boiler and radiators and sits in a solid-brick building that likely lacks cavity insulation — opportunities exist to improve energy efficiency subject to building consent. Service charges are moderate at £900 annually. Overall this is a characterful, low-maintenance city studio with strong practical advantages for first buyers or investors who prioritise location, connectivity and a long lease.
Studio flat for sale in Oxford Gardens, North Kensington, London, W10 — £425,000 • 1 bed • 1 bath • 431 ft²
Studio flat for sale in Highlever Road, North Kensington, London, W10 — £350,000 • 1 bed • 1 bath • 345 ft²
Studio flat for sale in Holland Road, Holland Park, London, W14 — £290,000 • 1 bed • 1 bath • 338 ft²
Studio flat for sale in Cambridge Gardens, North Kensington, London, W10 — £260,000 • 1 bed • 1 bath
Studio flat for sale in Pembroke Road, Kensington, London, W8 — £399,950 • 1 bed • 1 bath • 376 ft²
Studio flat for sale in Kensington Church Street, Kensington, London, W8 — £340,000 • 1 bed • 1 bath • 364 ft²






















































































































































