N8 9AE - 2 bed crouch end period flat in Womersley Road, N8 9AE

View on Property Piper

2 bedroom apartment for sale in Womersley Road, Crouch End N8

Summary - 6 FLAT C WOMERSLEY ROAD LONDON N8 9AE

2 bed 1 bath Apartment

Characterful two-bedroom flat, long lease and great connections to Crouch Hill and Harringay stations.
First-floor period conversion with high ceilings and original cornicing
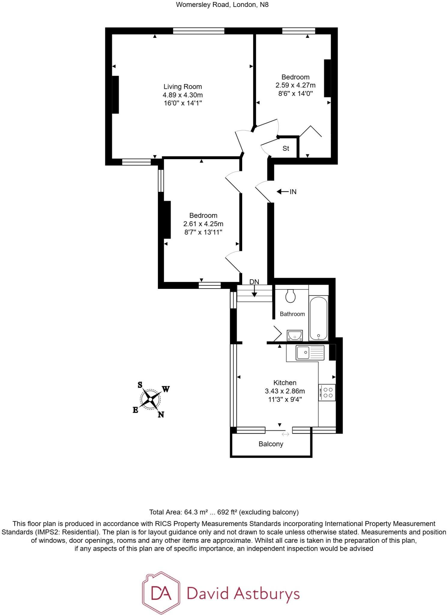
Set on the first floor of a handsome period conversion, this two-bedroom flat combines classic Victorian character with bright contemporary living. The large, south-west facing reception benefits from high ceilings, original cornicing and a feature fireplace, while a dual-aspect eat-in kitchen leads directly to a private balcony — a useful outdoor spot for morning coffee.

The apartment is chain-free and comes with a long lease of 153 years, providing security for buyers. The layout suits first-time buyers or couples seeking a comfortable home close to transport: Crouch Hill station is 0.3 miles away and Harringay station 0.5 miles, with easy bus links to Finsbury Park.

Practical considerations: the building is a solid-brick conversion from the early 1900s and there is no confirmed modern wall insulation. The service charge is £1,206.45 (2025–26) and the property has a single bathroom. Overall size is average at 692 sq ft — generous reception and bedrooms but modest secondary spaces.

Location is a clear strength: Crouch End’s cafés, shops and parks are within easy walking distance, and several well-regarded primary and secondary schools are nearby. This flat offers a blend of period charm, practical transport links and straightforward ownership for a buyer happy to accept some older-building characteristics.

Property Details

Image Descriptions

Floorplan Description

Rooms

Textual Property Features

Target Audience

AI Tags

Detected Visual Features

EPC Details

Nearby Schools

Nearest Bars And Restaurants

,,,,}

Nearest General Shops

,,}

Nearest Grocery shops

,,}

Nearest Supermarkets

,,}

Nearest Religious buildings

,,}

Nearest Medical buildings

,,,}

Nearest Airports

,}

Nearest Leisure Facilities

,,,,}

Nearest Tourist attractions

,,}

Nearest Train stations

,,,,}

Nearest Bus stations and stops

,,,,}

Nearest Hotels

,,}

Tags

Local Market Stats

AirBnB Data

Similar Properties

Meta

High Res Images

Compatible Images

Low res Images

Thumbnails

Raw Images

High Res Floorplan Images

Compatible Floorplan Images

Low res Floorplan Images

FloorplanImages Thumbnail

Raw Floorplan Images