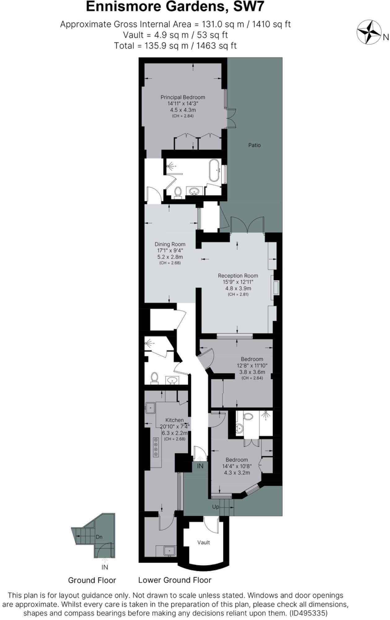
**Standout Features:**
- Newly renovated lateral apartment in a grand Victorian building
- Private landscaped terrace and access to communal gardens
- Three spacious bedrooms, each with en-suite or adjacent bathrooms
- Modern kitchen with premium appliances and utility room
- High ceilings, oak parquet flooring, and large French windows
- On-site porter/security for added convenience and safety
- Located in the affluent SW7 district close to luxury amenities
**Summary:**
Discover the perfect blend of elegance and modern living in this beautifully presented three-bedroom, three-bathroom apartment in the heart of Knightsbridge. This newly renovated property boasts a private landscaped patio garden and is set within a prestigious Victorian building complete with porter services. Step inside to a spacious reception room adorned with oak parquet flooring and high ceilings that bathe the space in natural light, offering a graceful connection to your outdoor oasis through the expansive French windows.
The well-equipped kitchen, complemented by a breakfast/dining area, is designed for entertaining and daily convenience, featuring top-of-the-line appliances and a separate utility room. Each bedroom provides generous closet space, with the principal suite enjoying direct access to the terrace and a luxurious en-suite bathroom equipped with a free-standing bath and walk-in shower.
Enjoy the nearby stunning communal gardens and other luxuries that Knightsbridge has to offer, including Harrods and exquisite dining options, all within moments of your doorstep. This turn-key home offers an exceptional investment opportunity in a highly sought-after location. Don’t miss your chance to secure this exquisite property—ideal as a family residence or a glamorous pied-à-terre in central London.
2 bedroom apartment for sale in Ennismore Gardens, Ennismore Gardens, Knightsbridge, London, SW7, United Kingdom, SW7 — £3,000,000 • 2 bed • 2 bath • 1050 ft²
2 bedroom apartment for sale in Ennismore Gardens, Knightsbridge SW7 — £1,250,000 • 2 bed • 2 bath • 1179 ft²
3 bedroom flat for sale in Ennismore Gardens, Knightsbridge, London, SW7 — £11,500,000 • 3 bed • 3 bath • 3355 ft²
2 bedroom flat for sale in Ennismore Gardens, London, SW7 — £2,995,000 • 2 bed • 2 bath • 1363 ft²
2 bedroom apartment for sale in Ennismore Gardens, Knightsbridge, London, SW7 — £1,950,000 • 2 bed • 2 bath • 1102 ft²
2 bedroom apartment for sale in Knightsbridge, London, SW7 — £2,500,000 • 2 bed • 2 bath • 1000 ft²














































































