Refurbished central London home with terrace and garden square access.
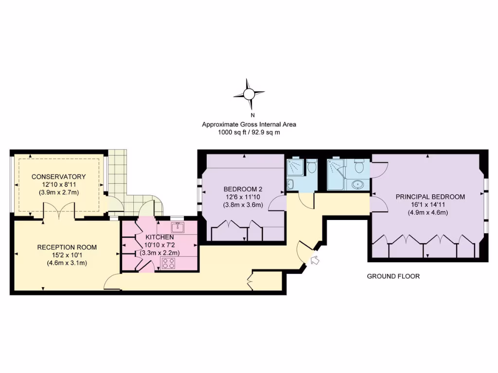
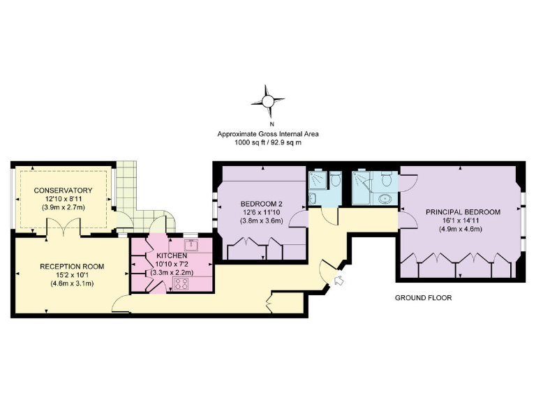
Large circa 1,000 sq ft two-bedroom, two-bathroom apartment
Newly refurbished with period features retained and modern finishes
Orangery with direct access to private terrace
Private residents' access to Ennismore Gardens
Underfloor heating, mains gas boiler and double glazing
Service charge approximately £2,000 per year; council tax expensive
Leasehold with 183 years remaining
Solid brick construction; likely no wall insulation (pre-1900 build)
This spacious two-bedroom, two-bathroom apartment sits between Knightsbridge and South Kensington, newly refurbished to a high standard while retaining period character. At approximately 1,000 sq ft it offers generous living space, high ceilings and large windows that flood rooms with light. A bespoke orangery leads directly onto a private terrace, and residents have private access to Ennismore Gardens.
The finish is contemporary and practical: double glazing, mains gas boiler with underfloor heating and modern fittings throughout. The location is exceptional for central London living — Hyde Park is a three-minute walk and Harrods under ten — with excellent transport, fast broadband and a wide range of nearby amenities and top independent schools.
Important practical points are stated plainly. The flat is leasehold (183 years remaining) with an average service charge of about £2,000 and an expensive council tax band; prospective buyers should factor these running costs into affordability. The building is of solid brick construction predating 1900 and may lack modern wall insulation.
Overall this is a polished, move-in ready apartment that combines period charm with contemporary upgrades and outdoor space rare for the area. It suits buyers seeking a central, high-spec pied-à-terre or a comfortable long-term city home, with straightforward maintenance and predictable service costs.
2 bedroom apartment for sale in Ennismore Gardens, Ennismore Gardens, Knightsbridge, London, SW7, United Kingdom, SW7 — £3,000,000 • 2 bed • 2 bath • 1050 ft²
2 bedroom apartment for sale in Ennismore Gardens, Knightsbridge, SW7 — £1,000,000 • 2 bed • 2 bath • 801 ft²
2 bedroom flat for sale in Ennismore Gardens, London, SW7 — £2,850,000 • 2 bed • 2 bath • 1265 ft²
2 bedroom apartment for sale in Ennismore Gardens, Knightsbridge SW7 — £2,450,000 • 2 bed • 2 bath • 1235 ft²
2 bedroom apartment for sale in Ennismore Gardens, Knightsbridge, London, SW7 — £1,750,000 • 2 bed • 2 bath • 1102 ft²
5 bedroom flat for sale in Ennismore Gardens, London, SW7 — £4,000,000 • 5 bed • 3 bath • 2154 ft²






















































































