Family-focused property close to schools, transport, garden and garage.
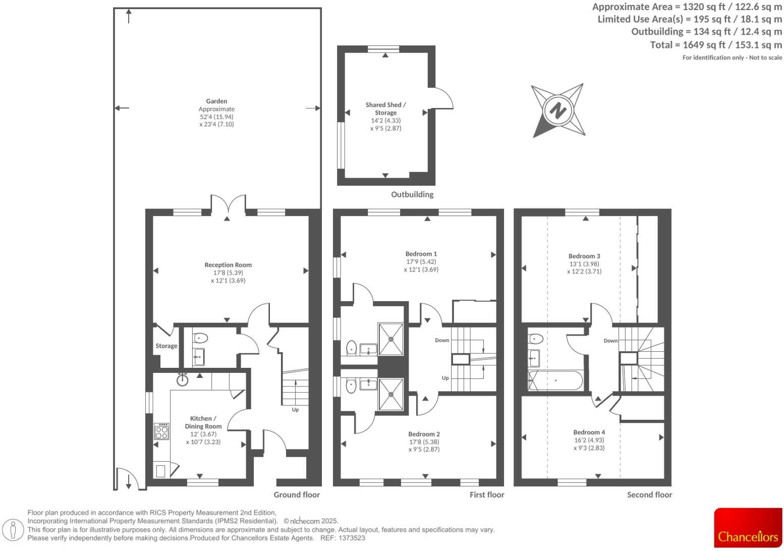
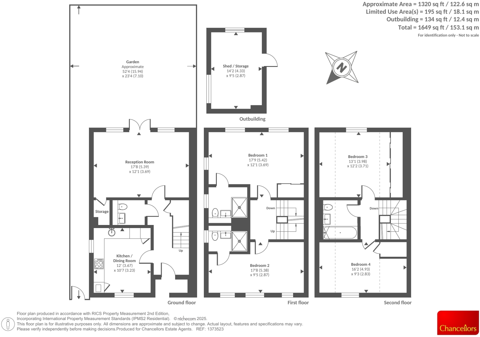
Four double bedrooms, two with en-suite bathrooms
Set on sought-after Boyn Hill Avenue, this four-double-bedroom end-of-terrace offers flexible family living over multiple floors. The ground floor features a bright reception room and contemporary open-plan kitchen/dining area, ideal for everyday life and entertaining. Two bedrooms have en-suite bathrooms and there is a separate family bathroom upstairs, giving practical space for a growing family.
Outside, the property benefits from a private garden, garage parking and a shared storage shed. Broadband and mobile signal are excellent, and local primary and secondary schools — both state and independent — are within easy reach, making the location well-suited to families and professionals.
Buyers should note the house is an older build (pre-1900) with solid brick walls and assumed lack of cavity insulation; double glazing was installed before 2002 and may not meet modern standards. Council tax is above average and the area records higher-than-average crime levels, which prospective purchasers should consider alongside the home’s strong space and location attributes.
4 bedroom detached house for sale in Boyn Valley Road, Maidenhead, SL6 — £795,000 • 4 bed • 3 bath • 1423 ft²
4 bedroom detached house for sale in Cannock Close, Maidenhead, Berkshire, SL6 — £1,200,000 • 4 bed • 3 bath • 2099 ft²
3 bedroom detached house for sale in Boyn Valley Road, Maidenhead, SL6 — £650,000 • 3 bed • 1 bath
4 bedroom detached house for sale in Forlease Road, Maidenhead, SL6 — £800,000 • 4 bed • 2 bath • 1538 ft²
3 bedroom detached house for sale in Twynham Road, Maidenhead, SL6 — £975,000 • 3 bed • 2 bath • 1961 ft²
4 bedroom detached house for sale in Malvern Road, Maidenhead, Berkshire, SL6 — £850,000 • 4 bed • 1 bath • 1038 ft²






























































































