Garden, double garage and study close to highly regarded local schools.
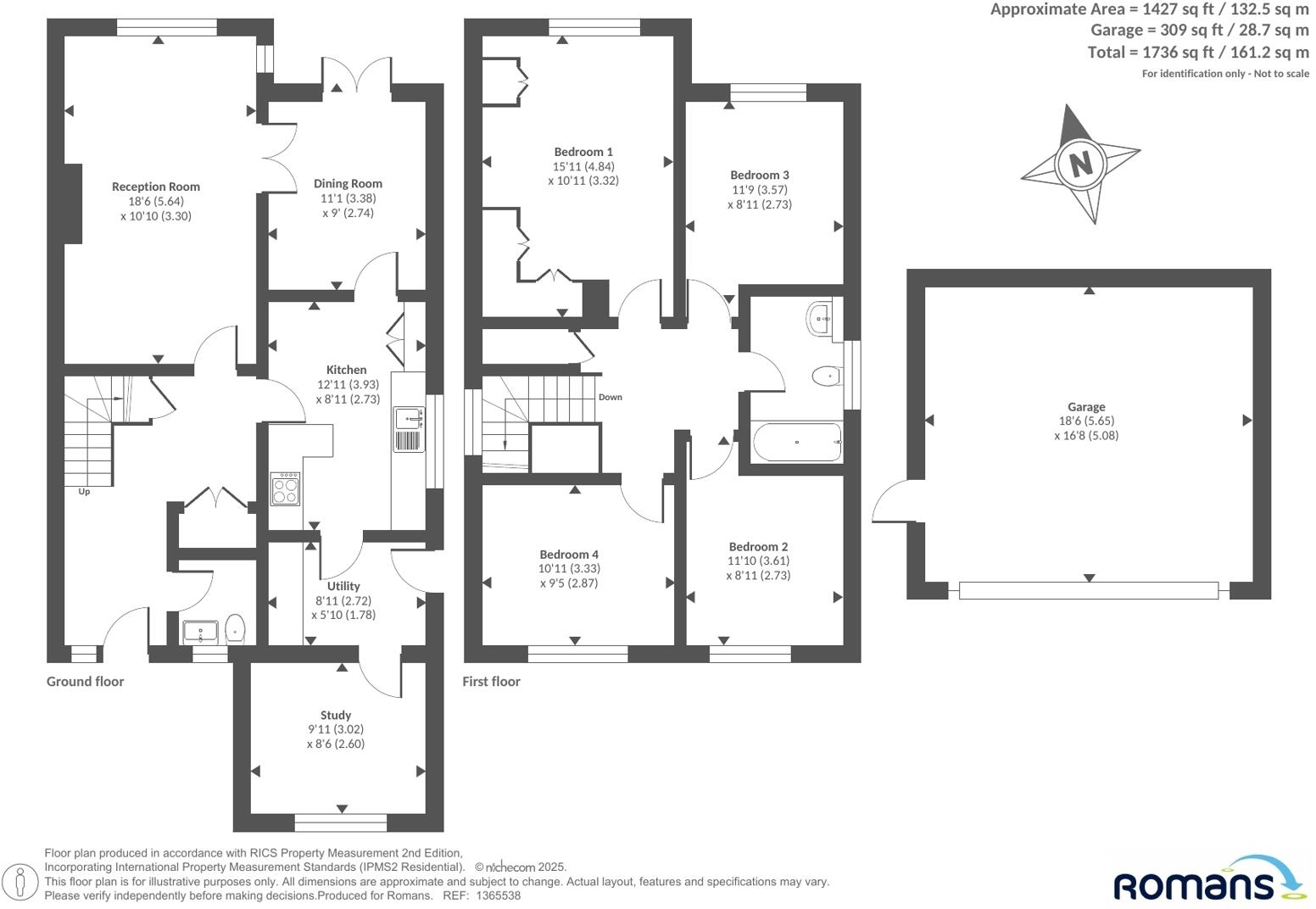
Four bedrooms with study and separate dining room
This well-presented four-bedroom detached home on Malvern Road suits growing families seeking convenient access to strong local schools and town amenities. An 18' lounge, separate dining room and a dedicated study create flexible living and home-working space across two storeys.
The property sits on a generous rear garden and includes a detached double garage and driveway parking. The kitchen/utility layout and refitted family bathroom reduce immediate maintenance, while double glazing and gas central heating provide everyday comfort. Total floor area is approximately 1,038 sq ft, so rooms are practical rather than grand.
Built in the late 1970s–early 1980s, the house retains period character but offers scope to modernise further to increase value. Note there is a single family bathroom for four bedrooms and cavity walls have only partial insulation assumed — further insulation or upgrades may be beneficial. Council tax is above average.
Located in a very affluent, low-crime area with excellent mobile and fast broadband, the home is freehold and presents a sensible family purchase with potential to personalise over time.
4 bedroom detached house for sale in Hargrave Road, Maidenhead, SL6 — £695,000 • 4 bed • 1 bath • 1588 ft²
3 bedroom detached house for sale in Lees Close, Maidenhead, Berkshire, SL6 — £685,000 • 3 bed • 1 bath • 1395 ft²
4 bedroom detached house for sale in Park Lane, Langley, SL3 — £970,000 • 4 bed • 3 bath • 1905 ft²
6 bedroom detached house for sale in Farmers Way, Maidenhead, SL6 — £850,000 • 6 bed • 2 bath • 2500 ft²
4 bedroom detached house for sale in Cannock Close, Maidenhead, Berkshire, SL6 — £1,250,000 • 4 bed • 3 bath • 2099 ft²
4 bedroom detached house for sale in Forlease Road, Maidenhead, SL6 — £800,000 • 4 bed • 2 bath • 1538 ft²






















































































