0.16-acre freehold plot with outline planning and elevated views towards Colmers Hill.
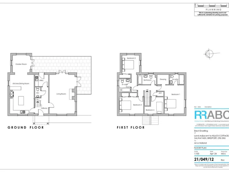
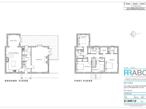
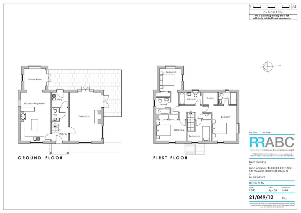
Outline planning for 172 sqm detached house (P/RES/2024/02292)
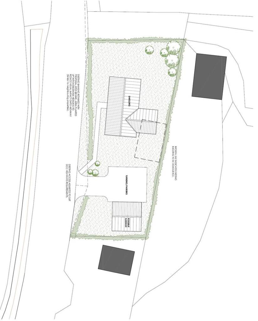
A rare countryside building plot in Salwayash with outline planning for a substantial detached house (P/RES/2024/02292). Set at the south end of the village, the 0.16-acre site adjoins open farmland and enjoys elevated views towards Colmers Hill, Bridport and Shipton Gorge — an appealing canvas for a private family home designed to maximise the outlook.
Services for electricity, water and sewerage are available immediately in the adjoining road and there is a vehicular entrance to the plot. Outline permission is for a c.172 sqm house, so the site is suited to purchasers wanting to build a sizeable detached dwelling rather than move-in-ready accommodation. The sale will be subject to a limited number of covenants.
Buyers should note the plot currently contains a curved corrugated iron outbuilding and a rundown steel shed; the site will require clearance and basic site preparation before construction. Broadband in the area is very slow and mobile signal is average — important for those who work from home. Flood risk is low and the tenure is freehold.
This plot will appeal to buyers seeking a countryside build opportunity within easy reach of Bridport and the Jurassic Coast. It suits someone prepared to manage a rural construction project, appreciate long-range views, and accept modest local connectivity in exchange for the location and planning already in place.
Plot for sale in Land Adjacent To Killick Cottage, Salwayash, Bridport, DT6 — £230,000 • 1 bed • 1 bath • 1851 ft²
Land for sale in Southgate, Beaminster, DT8 — £385,000 • 1 bed • 1 bath • 26136 ft²
Land for sale in Marshwood, Bridport, Dorset, DT6 — £400,000 • 1 bed • 1 bath
2 bedroom end of terrace house for sale in Salwayash, Bridport, DT6 — £280,000 • 2 bed • 1 bath • 588 ft²
5 bedroom detached house for sale in Ash Farm Close, Salwayash, Bridport, DT6 — £700,000 • 5 bed • 3 bath • 1745 ft²
3 bedroom detached bungalow for sale in West Bay, Bridport, Dorset, DT6 — £800,000 • 3 bed • 2 bath • 1501 ft²






















































