Planning granted for four detached homes in AONB — rare village development opportunity.
Planning permission granted November 2023 for four detached houses (Ref: P/FUL/2021/00544).|Freehold site in Area of Outstanding Natural Beauty with wide countryside views.|Very large, level plot on western edge of Marshwood village.|Occupation restricted to main residences only (Section 106 applies).|Mains electricity and water available; private sewage systems required.|No mobile signal on site; fast broadband available nearby.|Easy road access to Bridport, Beaminster, Axminster and Lyme Regis.|Low local crime; nearby primary school (mixed Ofsted results).
This is a rare freehold development site in Marshwood Vale with detailed planning permission (Nov 2023, Ref: P/FUL/2021/00544) for four detached houses. The plots sit on a very large, level field on the western edge of the village, enjoying far-reaching views within an Area of Outstanding Natural Beauty. The location provides easy access to Bridport, Beaminster, Axminster and Lyme Regis while retaining a peaceful rural character.
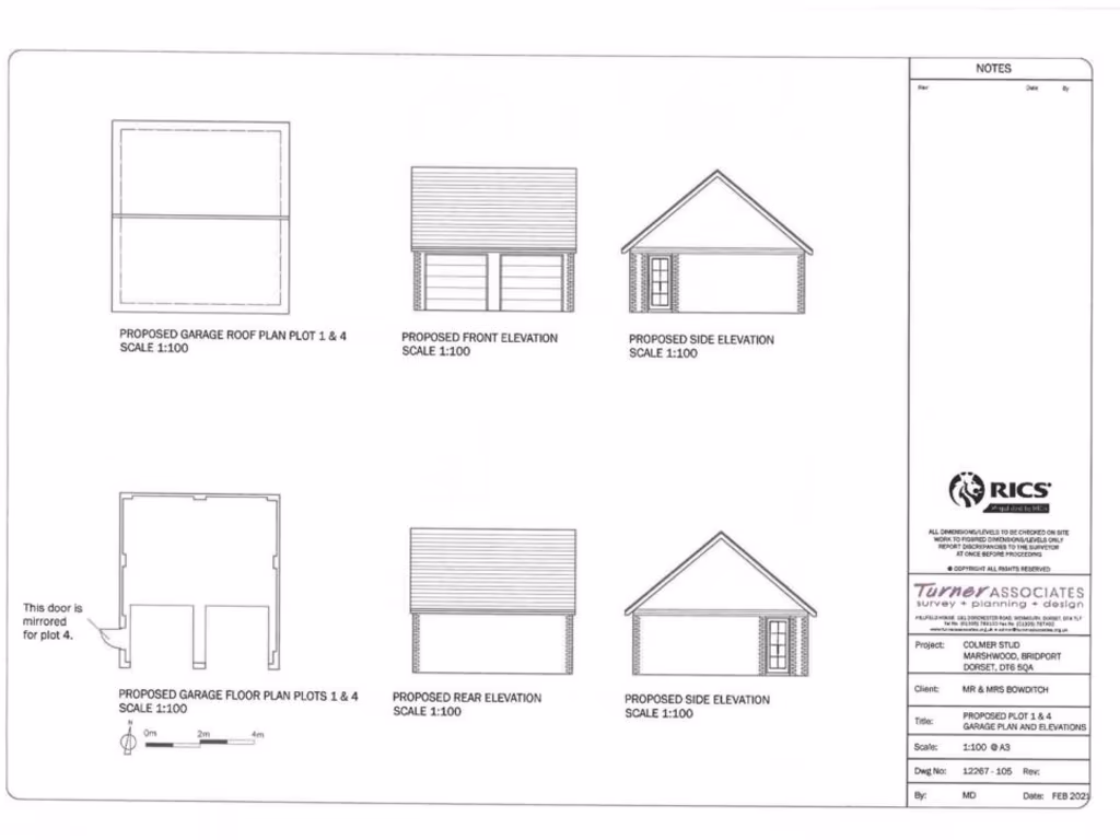
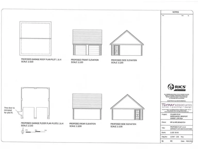
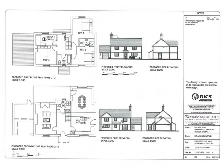
The permission covers a mix of two- and three-bedroom detached houses (with studies that could serve as additional bedrooms) and garages; net floor areas range from c.1,335 to c.1,569 sqft (excluding garages). The consent is subject to a Section 106 Agreement and restricts occupation to main residences only — important constraints for sale strategy and rental planning.
Services include mains electricity and water, but private sewage treatment systems will need to be installed. There is no mobile signal on site despite fast broadband speeds nearby; purchasers should plan utility and communications provision accordingly. Low local crime, a popular village primary school and abundant countryside recreation add to the development’s appeal for owner-occupiers.
This site will suit a small-volume housebuilder, local developer or investor targeting high-spec family homes in an attractive rural setting. Buyers should allow for S106 obligations, on-site foul water arrangements and the cost of connecting and securing utilities and access before construction commences.
Land for sale in Southgate, Beaminster, DT8 — £385,000 • 1 bed • 1 bath • 26136 ft²
Plot for sale in Southmead, Perry Street, Chard, TA20 — £5,000,000 • 1 bed • 1 bath
Land for sale in Pop Lane, Chard, TA20 — £350,000 • 3 bed • 2 bath
Plot for sale in Dinnington, TA17 — £350,000 • 1 bed • 1 bath • 4753 ft²
Land for sale in Land Adjacent Regis House, Lyme Road, Uplyme, Devon, DT7 3TJ, DT7 — £300,000 • 1 bed • 1 bath
Plot for sale in Land Adjacent To Killick Cottage, Salwayash, Bridport, DT6 — £230,000 • 1 bed • 1 bath • 1851 ft²






























