BN27 1NY - 3 bedroom end of terrace house for sale in Upper Horsebridg…

View on Property Piper

3 bedroom end of terrace house for sale in Upper Horsebridge, Hailsham, BN27

Summary - 3 Courtney Mews, 82 Upper Horsebridge BN27 1NY

3 bed 2 bath End of Terrace

Move-in ready three-bed home with south garden and two allocated parking spaces..
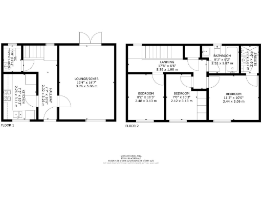
Three bedrooms; master with ensuite shower
This well-presented, three-bedroom end-of-terrace home in Upper Horsebridge offers comfortable family living over two floors. The dual-aspect lounge/dining room is bright and opens onto a south-facing rear garden, giving good natural light and a neat outdoor space for children or low-maintenance gardening.

The ground floor includes a modern kitchen with solid oak worktops and fitted appliances, plus a convenient WC. Upstairs the master bedroom benefits from an ensuite shower room; two further bedrooms share a family bathroom. Room sizes are practical for an average-sized family and storage is provided by a wide entrance hall.

Practical benefits include allocated off-street parking for two vehicles, freehold tenure, low local crime and easy access to local shops, bus links to Brighton, and several well-rated primary schools nearby. The plot is modest in size and the home is best suited to buyers seeking a tidy, move-in-ready family house rather than a large garden or extensive outside space.

Overall this property is a straightforward, attractive option for families or first-time buyers seeking a modern, low-maintenance home in a quiet, suburban setting; viewing is recommended to appreciate the layout and garden aspect in person.

Property Details

Brochure Descriptions

Image Descriptions

Floorplan Description

Rooms

Textual Property Features

Target Audience

AI Tags

Detected Visual Features

EPC Details

Nearby Schools

Nearest Bars And Restaurants

,,,,}

Nearest General Shops

,,}

Nearest Grocery shops

,,}

Nearest Supermarkets

,,}

Nearest Religious buildings

,,}

Nearest Medical buildings

,,,}

Nearest Leisure Facilities

,,,,}

Nearest Tourist attractions

,,}

Nearest Train stations

,,,,}

Nearest Bus stations and stops

,,,,}

Nearest Hotels

,,}

Tags

Local Market Stats

AirBnB Data

Similar Properties

Meta

High Res Images

Compatible Images

Low res Images

Thumbnails

Raw Images

High Res Floorplan Images

Compatible Floorplan Images

Low res Floorplan Images

FloorplanImages Thumbnail

Raw Floorplan Images