BN27 3BJ - 3 bedroom terraced house for sale in Lundy Walk, Hailsham,…

View on Property Piper

3 bedroom terraced house for sale in Lundy Walk, Hailsham, BN27

Summary - Lundy Walk, Hailsham BN27 3BJ

3 bed 2 bath Terraced

**Standout Features:**
- Modern three-story townhouse built in 2011
- Stylishly renovated with bright, inviting interiors
- Spacious lounge-diner with French doors to the garden
- Kitchen-breakfast room, perfect for family gatherings
- Generous main bedroom with ensuite and dressing area
- Driveway parking & separate courtyard space
- Beautifully landscaped rear garden ideal for outdoor relaxation
- Excellent local amenities, including parks and schools nearby

**Summary Description:**
Discover this beautifully presented modern townhouse, offering a contemporary aesthetic and a cozy atmosphere across three spacious floors. The ground floor features a bright entrance hall that leads into a smart kitchen-breakfast room and a generous lounge-diner, completed with elegant French doors opening to a landscaped rear garden—perfect for entertaining or unwinding outdoors. The first floor is home to a well-configured layout with a sizable bedroom, an additional cozy bedroom, and a family bathroom. Ascend to the top floor to find a stunning main bedroom suite with a dressing area and an ensuite shower room, providing an ideal sanctuary for relaxation.

Convenience is at your doorstep with nearby parks, bus routes, and excellent primary schools, making this property a fantastic option for families or first-time buyers. The added benefit of off-street parking enhances its appeal. With a blend of modern comfort and functionality, this home offers a unique space to grow and enjoy life. Don’t miss out on the opportunity to make it yours!

Property Details

Brochure Descriptions

Image Descriptions

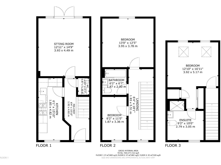
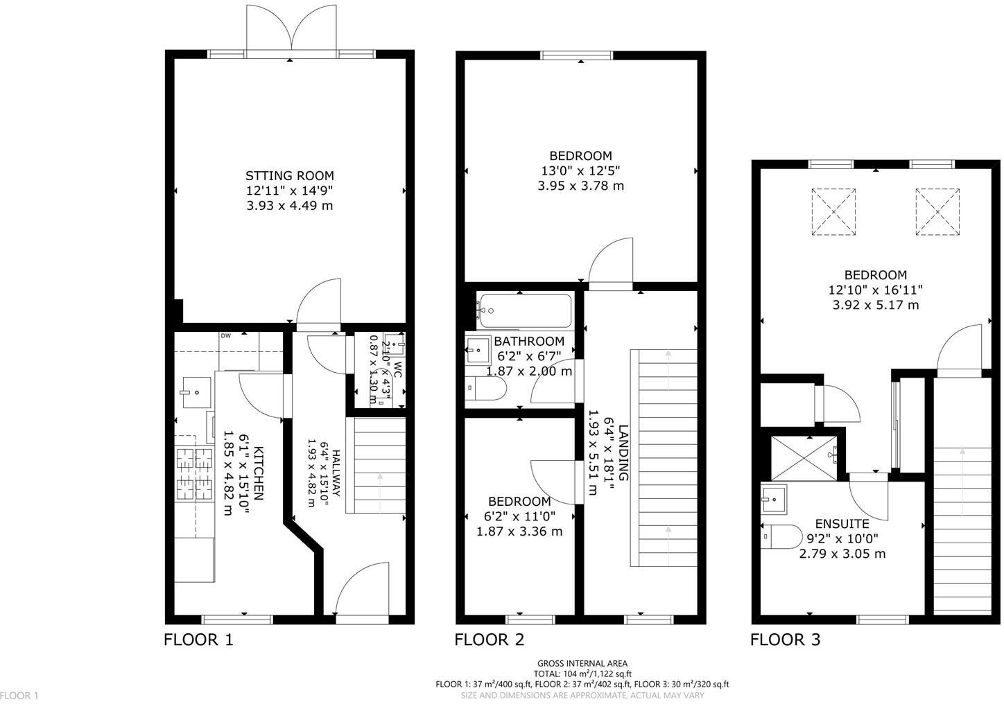
Floorplan Description

Rooms

Textual Property Features

Detected Visual Features

EPC Details

Nearby Schools

Nearest Bars And Restaurants

,,,,}

Nearest General Shops

,,}

Nearest Grocery shops

,,}

Nearest Supermarkets

,,}

Nearest Religious buildings

,,}

Nearest Medical buildings

,,,}

Nearest Leisure Facilities

,,,,}

Nearest Tourist attractions

,,}

Nearest Train stations

,,,,}

Nearest Bus stations and stops

,,,,}

Nearest Hotels

,,}

Tags

Local Market Stats

AirBnB Data

Similar Properties

Meta

High Res Images

Compatible Images

Low res Images

Thumbnails

Raw Images

High Res Floorplan Images

Compatible Floorplan Images

Low res Floorplan Images

FloorplanImages Thumbnail

Raw Floorplan Images