**Standout Features:**
- Leasehold term of 999 years from January 1, 2018
- No onward chain - immediate availability
- Private balcony and exclusive roof terrace for outdoor relaxation
- Master bedroom with en-suite for added convenience
- Located in a prime town center area of Maidenhead
- Designed specifically for residents aged 60+
- On-site manager, residents' lounge, and lifts for ease of access
- Built in 2018, offering modern design
- Fast broadband and excellent mobile signal
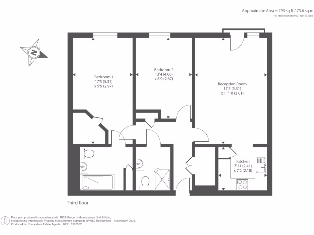
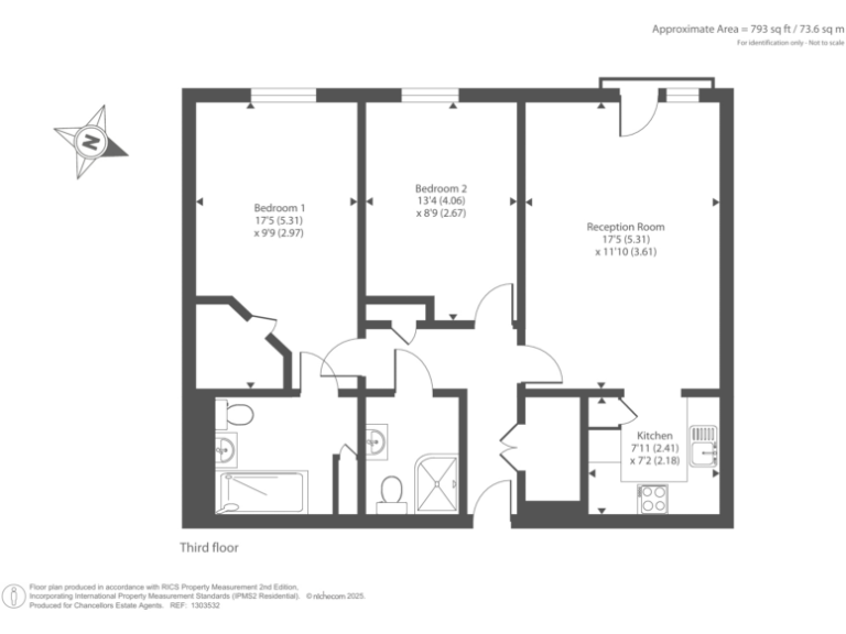
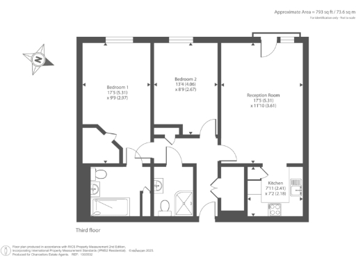
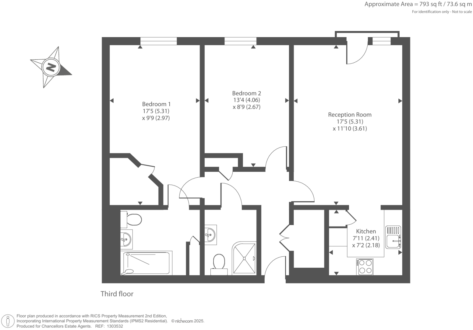
**Property Summary:**
Discover an exceptional opportunity to embrace a relaxed lifestyle in this contemporary two-bedroom retirement apartment, designed exclusively for those aged 60 and over. Nestled in the vibrant heart of Maidenhead, the apartment features a spacious master suite with an en-suite bathroom, and a bright living space that opens up to a private balcony and exclusive roof terrace—perfect for enjoying fresh air and views.
This thoughtfully constructed residence, built in 2018, promotes both comfort and security in a tightly-knit community, without the stress of a property chain. Enjoy convenient access to public transport, a plethora of local amenities, and the town's rich cultural landscape, making it an ideal setting for both independence and support. Ideal for those looking to downsize or transition to a more leisurely lifestyle, this property offers modern living in one of Berkshire's sought-after locations.
While the property is stylish and well-maintained, potential buyers should note the higher crime rate in the area; however, its vibrant community atmosphere and accessible amenities offer ample reasons for consideration. With strong local schools and nearby recreational facilities, it represents an effortless blend of independence and community living. Don't miss the chance to make this unique retirement opportunity your new home!
2 bedroom retirement property for sale in Bridge Avenue, Maidenhead, SL6 — £360,000 • 2 bed • 2 bath • 818 ft²
1 bedroom apartment for sale in Bridge Avenue, Maidenhead, SL6 — £280,000 • 1 bed • 1 bath • 519 ft²
2 bedroom flat for sale in Bridge Avenue, Maidenhead, Berkshire, SL6 — £325,000 • 2 bed • 2 bath • 1321 ft²
2 bedroom flat for sale in Maidenhead, Berkshire, SL6 — £220,000 • 2 bed • 1 bath • 658 ft²
1 bedroom retirement property for sale in Bridge Avenue, Maidenhead, SL6 — £285,000 • 1 bed • 1 bath • 536 ft²
2 bedroom flat for sale in Maidenhead, Berkshire, SL6 — £325,000 • 2 bed • 1 bath • 950 ft²






































































