Secure, low-maintenance living close to town with 24/7 staffed support.
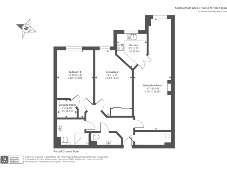
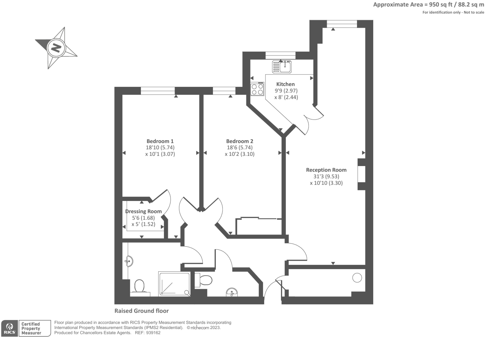
Two double bedrooms and large living/dining area
Built 2016; approx 950 sq ft, modern finish
Exclusive over-70s development with 24/7 staffed estate manager
Concierge, secure entry, lift access and on-site bistro restaurant
Long lease (circa 990+ years) and no onward chain
NHBC warranty valid only until April 2026
Electric underfloor heating; electricity is main fuel (may raise bills)
Council tax banding noted as expensive
This well-proportioned two-bedroom apartment in Swift House offers secure, low-maintenance living for residents aged 70+. At about 950 sq ft, the flat feels spacious with two double bedrooms, a fully fitted kitchen with integrated appliances and a large living/dining area. Built in 2016 and set within a contemporary development, the building includes lift access, a concierge, and a bistro-style restaurant for convenience and sociability.
The development is staffed 24/7 with an estate manager and secure entry system, providing reassurance and on-site support. The long lease (approximately 990+ years) and no onward chain simplify purchase logistics. Its location — roughly 0.4 miles from Maidenhead town centre — places shops, buses and local amenities within easy reach, while broadband and mobile signals are strong.
Considerations: the apartment uses electric underfloor heating and electricity is the main fuel, which can be more expensive than gas for some buyers. The NHBC warranty runs until April 2026, after which any building defects would no longer be covered. Council tax is described as expensive; factor this into ongoing costs. Overall, the property suits retirees seeking a comfortable, modern, low-maintenance home with on-site services and strong local connections.
2 bedroom retirement property for sale in Maidenhead, Berkshire, SL6 — £250,000 • 2 bed • 1 bath • 953 ft²
2 bedroom retirement property for sale in Maidenhead, Berkshire, SL6 — £220,000 • 2 bed • 2 bath • 936 ft²
2 bedroom retirement property for sale in Swift House, Maidenhead, SL6 — £350,000 • 2 bed • 2 bath • 960 ft²
2 bedroom retirement property for sale in Swift House, St Lukes Road, SL6 — £185,000 • 2 bed • 1 bath • 784 ft²
2 bedroom apartment for sale in Swift House, St. Lukes Road, Maidenhead, SL6 — £220,000 • 2 bed • 1 bath • 646 ft²
2 bedroom apartment for sale in Swift House, St. Lukes Road, Maidenhead, Berkshire, SL6 — £220,000 • 2 bed • 1 bath • 971 ft²














































