Large freehold office near Stevenage station with 36 parking spaces — flexible for lettings..
Freehold two-storey office c.10,376 sq ft suitable for occupation or investment
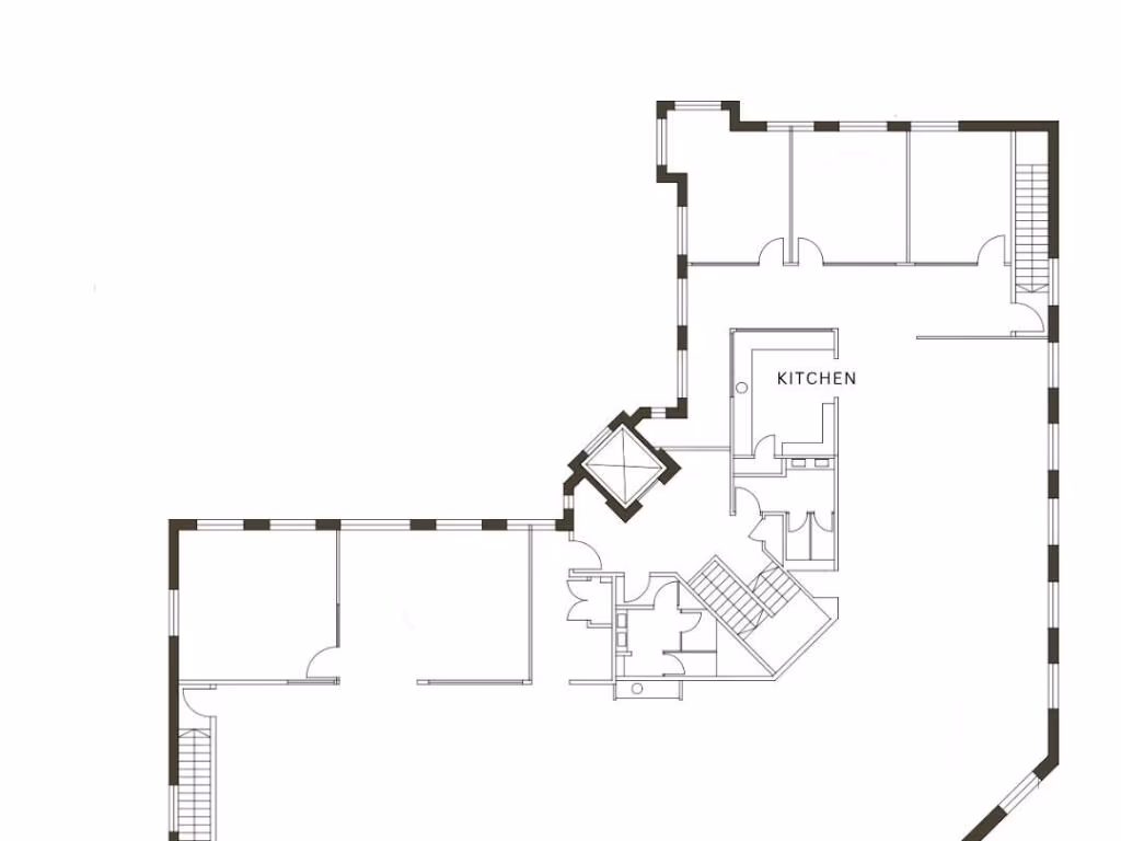
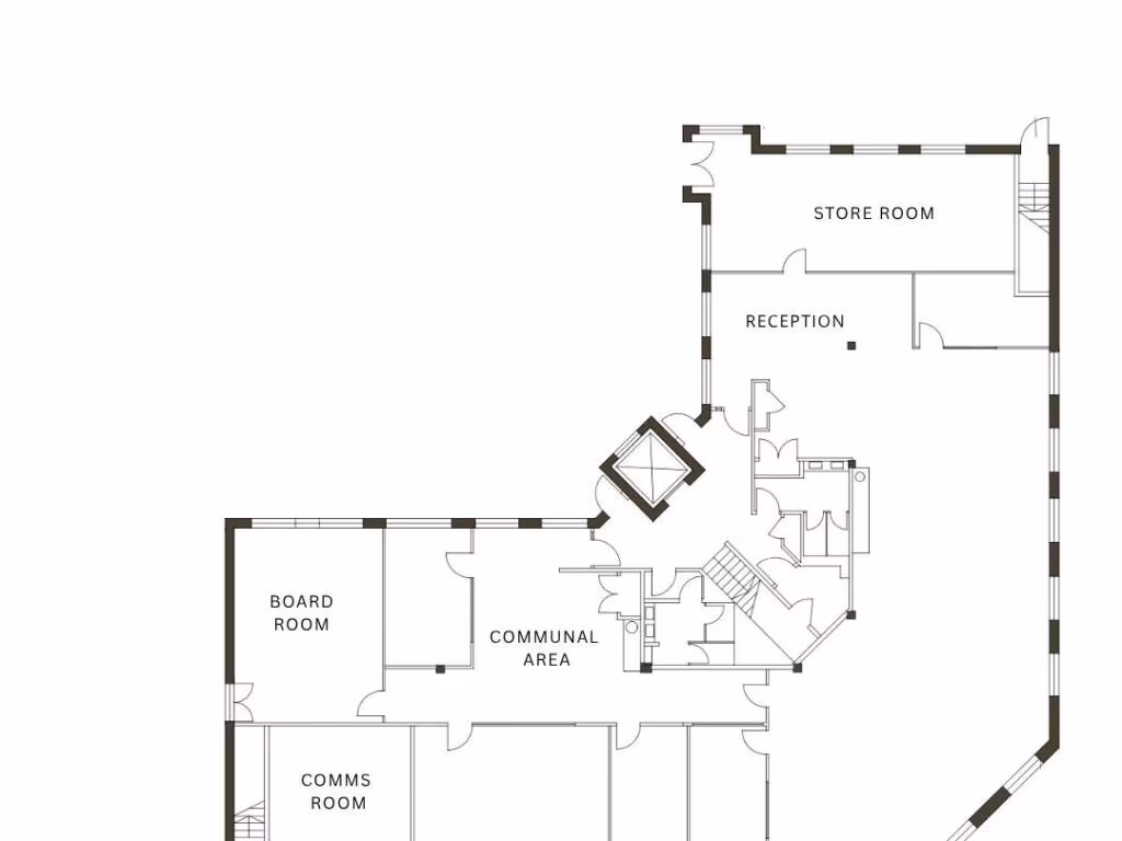
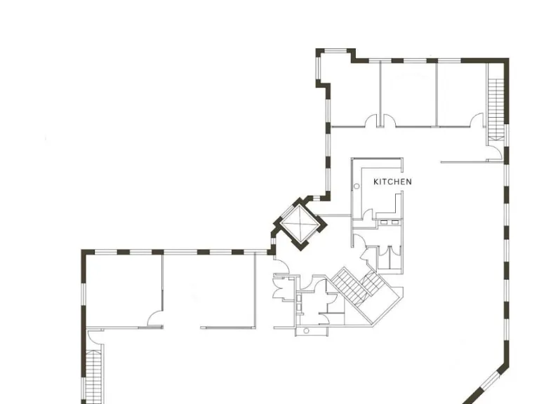
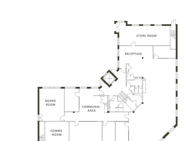
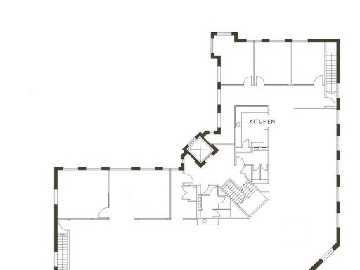
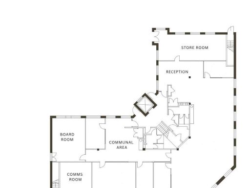
A substantial freehold two‑storey office building in central Stevenage, offered as a single purchase or for subdivision into suites. The property extends to c.10,376 sq ft and sits on a paved forecourt with 36 marked parking spaces, making it a practical base for occupiers or a straightforward income asset for an investor.
The building is modern in appearance with air conditioning, underfloor heating, lift access, an IT/comms room, and basic kitchen and toilet facilities. Accommodation mixes open plan and cellular offices across ground and first floors, giving scope to reconfigure, create serviced offices, or let as individual suites or floors to different tenants.
Key commercial strengths are location and scale: immediate proximity to the town centre and railway station supports commuter demand, while the 36-space car park and on-site security alarm add practical appeal. The property presents clear refurbishment and re-letting potential for a buyer seeking rental income or an owner-occupier wanting long-term headquarter space.
Buyers should note material operational considerations: the EPC rating is currently TBC, broadband speeds in the area are reported as very slow and may require investment in connectivity solutions, and the site has limited landscaped grounds beyond the forecourt. Crime levels are average for the area. These factors should be considered in occupational or leasing assumptions and any repositioning costs.
Office for sale in Bedford House, Rutherford Close, Stevenage, Hertfordshire, SG1 2EF, SG1 — £2,500,000 • 1 bed • 1 bath • 10376 ft²
Office for sale in Unit 5, Gateway 1000 , Whittle Way, Stevenage, Hertfordshire, SG1 2FP, SG1 — £550,000 • 1 bed • 1 bath • 2280 ft²
Office for sale in Unit 1 Arlington Court, Arlington Business Park, Whittle Way, Stevenage, Hertfordshire, SG1 2FS, SG1 — £790,000 • 1 bed • 1 bath • 3057 ft²
Office for sale in Unit E , Mindenhall Court, High Street, Stevenage, SG1 3UN, SG1 — £430,000 • 1 bed • 1 bath • 1651 ft²
Warehouse for sale in Bluebird Stevenage, Rutherford Close, Stevenage, SG1 2EF, SG1 — POA • 1 bed • 1 bath
Office for sale in 7 Amberside House, Wood Lane, Paradise Industrial Estate, Hemel Hempstead, Hertfordshire, HP2 — £400,000 • 1 bed • 1 bath • 1813 ft²






























