Bright, contemporary one-bedroom close to Whitstable town centre and the seafront.
- Moments from the beach and Tankerton slopes
- Whitstable station about 0.6 miles away
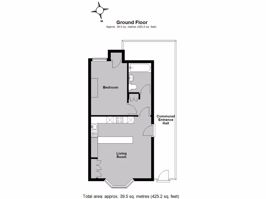
- Bright open-plan living with bay window
- Compact size ~426 sq ft, efficient one-bedroom layout
- Leasehold with c.118–119 years remaining
- Service charge circa £1,112 p.a.; ground rent £100 p.a.
- Solid brick walls; likely limited insulation to upgrade
- Chain free, ground-floor access and a small garden
A smartly presented ground-floor flat a few moments from Tankerton’s slopes and Whitstable’s seafront. The conversion retains period character outside with a bright, contemporary open-plan living space inside, complete with a bay window, modern kitchen and a double bedroom — arranged efficiently across about 426 sq ft. Chain-free sale and a communal entrance make this an easy move-in option.
Practical details help planning: the home is leasehold with about 118–119 years remaining, an annual service charge around £1,112 and a small £100 ground rent. Heating is mains gas via boiler and radiators, glazing is double glazed (install date unknown) and the building’s solid-brick walls likely have limited cavity insulation — consider potential insulation or efficiency upgrades.
This flat suits a first-time buyer or couple seeking a low-maintenance seaside base within walking distance of shops, restaurants and Whitstable station (0.6 miles). The garden and excellent mobile and fast broadband add convenience; the compact footprint and communal setting mean space is economical, not generous. Overall, a tasteful, well-located starter home with straightforward running costs and clear scope for making it your own.
1 bedroom flat for sale in Tankerton Road, Whitstable, CT5 — £275,000 • 1 bed • 1 bath • 488 ft²
1 bedroom apartment for sale in Tower Hill, Tankerton, Whitstable, CT5 — £250,000 • 1 bed • 1 bath • 431 ft²
1 bedroom flat for sale in Queens Road, Tankerton, Whitstable, CT5 — £200,000 • 1 bed • 1 bath • 479 ft²
2 bedroom flat for sale in Wynn Road, Whitstable, Kent, CT5 — £270,000 • 2 bed • 1 bath • 736 ft²
1 bedroom apartment for sale in Pier Avenue, Tankerton, Whitstable, CT5 — £259,950 • 1 bed • 1 bath • 542 ft²
2 bedroom apartment for sale in Graystone Road, Tankerton, Whitstable, CT5 — £315,000 • 2 bed • 1 bath • 840 ft²










































