Ideal starter home close to seafront, station and local shops.
- Ground-floor garden flat with private entrance and bright living room
- Generous 59 ft (18 m) private rear garden
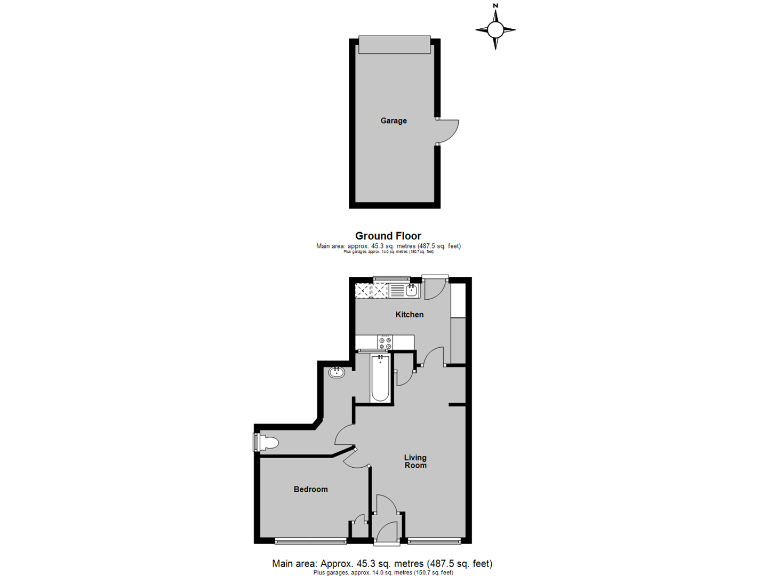
- Detached single garage providing off-street parking and storage
- Compact footprint (~488 sq ft) best for single/couple occupancy
- Long lease (remainder of 999 years) and share of freehold
- Heating via electric storage heaters (potentially higher running costs)
- Service charge approx £600/year (c. £50/month); ground rent reported nil
- Very low local crime, fast broadband and excellent mobile signal
This bright ground-floor garden flat sits in central Tankerton, a short walk to the seafront, slopes and Whitstable station. The accommodation is smartly presented with a private entrance, spacious living room, good-sized double bedroom, separate kitchen and a well-equipped bathroom — ready to move into for a single occupant or couple.
Outside, the 59 ft (18 m) private rear garden and detached garage (accessed from Graystone Road) are stand-out benefits for the area, providing parking, storage and outdoor space uncommon for one-bed flats. The property benefits from double glazing, a remainder of a 999-year lease and a share of the freehold, and is offered chain free.
Practical considerations: the flat is compact at about 488 sq ft, so internal space is best suited to a single person or couple rather than a family. Heating is by electric storage heaters, which can be more costly than gas systems. Annual service charge is around £600 (c. £50/month) and ground rent is nil, but buyers should confirm these figures with their solicitor.
Well-positioned for local amenities, transport links and coastal lifestyle, this apartment will suit first-time buyers looking for a low-maintenance coastal base or buy-to-let investors seeking a lettable one-bedroom in a very affluent, low-crime neighbourhood.
2 bedroom apartment for sale in Tankerton Road, Whitstable, CT5 — £305,000 • 2 bed • 2 bath • 767 ft²
1 bedroom flat for sale in Tankerton Road, Tankerton, Whitstable, CT5 — £209,950 • 1 bed • 1 bath • 426 ft²
2 bedroom apartment for sale in Graystone Road, Tankerton, Whitstable, CT5 — £315,000 • 2 bed • 1 bath • 840 ft²
2 bedroom flat for sale in Wynn Road, Whitstable, Kent, CT5 — £270,000 • 2 bed • 1 bath • 736 ft²
1 bedroom flat for sale in Queens Road, Tankerton, Whitstable, CT5 — £200,000 • 1 bed • 1 bath • 479 ft²
2 bedroom apartment for sale in Leander Court, Graystone Road, Tankerton, Whitstable, CT5 — £425,000 • 2 bed • 2 bath • 1136 ft²






















































