Spacious Edwardian family home near Mortlake Station and Thomson House catchment.
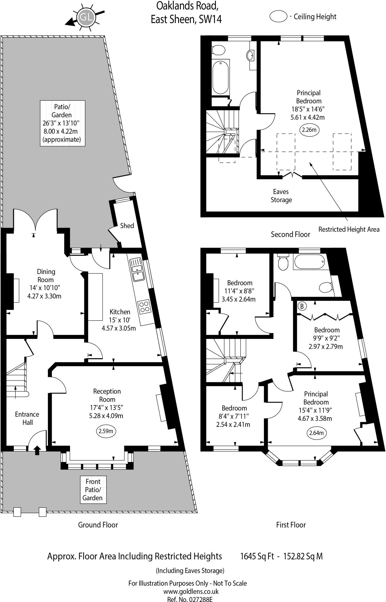
Wider-than-average five-bedroom end-of-terrace home, approx. 1,645 sq ft
Wider-than-average and end-of-terrace, this five-bedroom house sits on a quiet residential side road in East Sheen, moments from Mortlake station and within the Thomson House School catchment. Period features such as original fireplaces and stained glass windows give the house character, while a loft conversion by a respected local company adds useful living space. The layout across three storeys gives flexible family accommodation and totals approximately 1,645 sq ft.
There is scope to add value: a ground-floor kitchen extension is feasible, subject to planning, and would create a larger open-plan family space. The property is offered chain-free on freehold tenure, making for a straightforward purchase. The garden is small-to-average and benefits from a quiet outlook across neighbouring gardens thanks to the end position.
Buyers should note practical considerations: the solid brick walls are assumed to have no insulation, double glazing install dates are unknown, and council tax is above average. Overall this house will suit families seeking space, strong local schools, and good transport links, or buyers wanting a period home with potential to modernise and extend.
5 bedroom terraced house for sale in South Worple Way, London, SW14 — £1,250,000 • 5 bed • 2 bath • 2000 ft²
5 bedroom detached house for sale in Penrhyn Crescent, East Sheen, SW14 — £2,000,000 • 5 bed • 3 bath • 3190 ft²
5 bedroom terraced house for sale in Portman Avenue,
East Sheen, SW14 — £1,675,000 • 5 bed • 3 bath • 1920 ft²
5 bedroom semi-detached house for sale in East Sheen Avenue,
East Sheen, SW14 — £2,350,000 • 5 bed • 3 bath • 3048 ft²
5 bedroom semi-detached house for sale in Gordon Avenue,
East Sheen, SW14 — £2,000,000 • 5 bed • 5 bath • 3000 ft²
4 bedroom end of terrace house for sale in St Leonards Road, East Sheen, SW14 — £1,500,000 • 4 bed • 2 bath • 1733 ft²






























































































