Remodelled 5-bedroom detached house with large garden and garage for growing families.
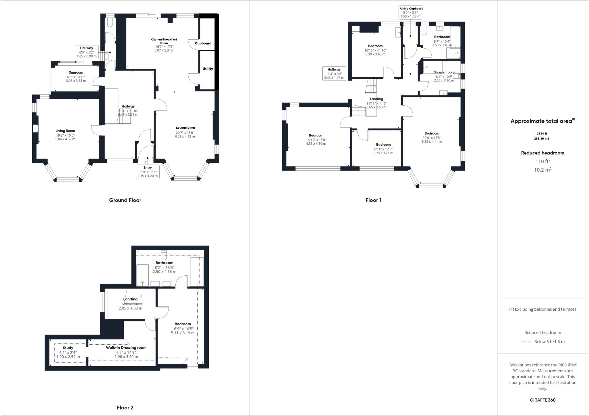
- Nearly 2,800 sq ft of accommodation across multiple floors
- Five bedrooms; whole top floor is principal suite with en-suite
- 37ft open-plan kitchen/diner/living room with utility and larder
- Beautifully landscaped rear garden; majority laid to lawn
- Detached garage, gated frontage and extensive off-road parking
- Meticulously refurbished and remodelled; period features retained
- Double glazing installed before 2002 may need upgrading
- Council tax band not specified; budget for typical older-house maintenance
Set on a large plot in Boscombe Manor, this beautifully remodelled 1930s detached house offers nearly 2,800 sq ft of family living across multiple floors. The remodel delivers a 37ft open-plan kitchen/diner/living room with breakfast bar, utility and walk-in larder that opens onto a landscaped rear garden — a practical layout for everyday family life and entertaining.
Five bedrooms and three bath/shower rooms include a whole top-floor principal suite with en-suite, fitted walk-in dressing room and study area, giving excellent separation for parents and children. An additional living room with bay window and log burner, sun room and ground-floor WC add flexible living space. Detached garage, extensive off-road parking and gated frontage provide secure parking and storage.
The house has been meticulously refurbished and blends period character (bay windows, stained glass, parquet flooring) with contemporary fittings and finishes. It is freehold, not in a flood-risk area, and sits in an affluent neighbourhood with strong schooling options nearby.
A few practical points: double glazing was installed before 2002 and may not match modern thermal standards; council tax band is not specified; the property dates from the early 20th century, so buyers should budget for typical maintenance associated with older homes. Crime levels are average for the area.
8 bedroom detached house for sale in Wollstonecraft Road, Boscombe Manor, Bournemouth, BH5 — £1,600,000 • 8 bed • 9 bath • 6690 ft²
5 bedroom detached house for sale in Wentworth Avenue, Bournemouth, Dorset, BH5 — £975,000 • 5 bed • 3 bath • 3002 ft²
6 bedroom detached house for sale in Wentworth Avenue, Bournemouth, Dorset, BH5 — £975,000 • 6 bed • 4 bath • 2890 ft²
5 bedroom detached house for sale in Durrington Road, Boscombe East, BH7 — £675,000 • 5 bed • 2 bath • 1539 ft²
5 bedroom detached house for sale in Wentworth Avenue, Bournemouth, Dorset, BH5 — £975,000 • 5 bed • 3 bath • 3002 ft²
4 bedroom detached house for sale in Methuen Road, Bournemouth, BH8 — £775,000 • 4 bed • 4 bath • 2330 ft²






























































































































































