Spacious riverside family home with large south‑east garden and garage.
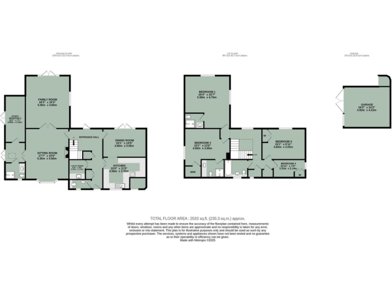
Approximately 2,533 sq ft of flexible family accommodation
Originally a granary and thoughtfully converted, this detached house offers generous, adaptable living across roughly 2,533 sq ft. The layout suits family life: three reception rooms, a kitchen opening to a dining area with terrace, a useful study/ground-floor bedroom option, and two ensuite principal bedrooms upstairs. The house combines period character with practical modern comforts such as double glazing and mains gas central heating.
Outside is a standout asset: a walled, south‑east facing garden of about two‑thirds of an acre with an immaculate lawn, established borders and a large terrace for entertaining. A gated gravel driveway provides parking for several vehicles and leads to a detached brick garage, giving strong practical appeal for families and gardeners.
The property sits in a favoured Thameside village, with good road and rail links to Oxford, Reading and London and easy access to riverside walks and local schools. Internally the layout offers scope for flexible use — the ground-floor study/bedroom could become a home office, guest room or part of a self-contained annexe, subject to permissions.
Buyers should note a few material points: the home sits in a medium flood‑risk area, broadband speeds are slow in this location, and council tax is described as expensive. The house was converted historically and, while well maintained, may require ongoing upkeep consistent with an older, characterful property.
4 bedroom detached house for sale in South Stoke, Reading, Oxfordshire, RG8 — £1,000,000 • 4 bed • 3 bath • 2482 ft²
4 bedroom detached house for sale in Tullis Close, Sutton Courtenay, OX14 — £870,000 • 4 bed • 3 bath • 2000 ft²
3 bedroom semi-detached house for sale in 1 Wallingford Road , South Stoke, RG8 — £575,000 • 3 bed • 1 bath • 776 ft²
4 bedroom detached house for sale in Mill Lane, Pirbright, GU24 — £850,000 • 4 bed • 3 bath • 1399 ft²
2 bedroom house for sale in 1 Goode House, South Stoke, RG8 — £349,950 • 2 bed • 1 bath • 775 ft²
6 bedroom detached house for sale in The Corner House, South Stoke, RG8 — £1,850,000 • 6 bed • 4 bath • 3078 ft²






































































































