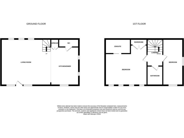
**Standout Features:**
- Beautifully converted two-bedroom barn with high-quality finishes
- Spacious open-plan living dining kitchen with bespoke handmade kitchen
- Luxurious en suite master bedroom and additional family bathroom
- Idyllic countryside views and close proximity to village church
- Underfloor heating and Accoya double glazed windows
- Enclosed garden with extensive patio and substantial garden store
- Two parking spaces (one undercover)
**Summary:**
Embrace the charm of country living in this exquisitely renovated barn conversion, showcasing stunning views over open countryside and the historic village church of St Peter's. This exceptional property boasts a large open-plan living dining kitchen, bathed in natural light and featuring bespoke cabinetry, a high-end media centre, and a state-of-the-art handmade kitchen, perfect for entertaining or cozy family gatherings.
Upstairs, discover two generously sized double bedrooms, including a luxurious master suite with built-in wardrobes and an elegant en suite, complemented by a stylish family bathroom. Thoughtfully designed with modern comforts, including underfloor heating and bespoke timber double glazed windows, this home balances traditional character with contemporary elegance. Enjoy the peace and serenity of the spacious enclosed garden, complete with a large patio area—ideal for outdoor living. Additionally, take advantage of two dedicated parking spaces for convenience.
This property is part of an exclusive development of only three units, combining historical charm with modern luxury. With properties of this caliber rarely available, you won’t want to miss this opportunity for exceptional rural living. Schedule your viewing today and envision your future in this remarkable home.
3 bedroom barn conversion for sale in Mill Lane, South Somercotes , LN11 — £650,000 • 3 bed • 3 bath • 4267 ft²
4 bedroom detached bungalow for sale in Manor Farm Barns, Wells Road, Healing, DN41 — £410,000 • 4 bed • 2 bath • 1990 ft²
3 bedroom semi-detached house for sale in Louth Road, New Waltham, Grimsby, DN36 — £279,000 • 3 bed • 2 bath • 1088 ft²
6 bedroom detached house for sale in Oakfield Lane, Waltham, DN37 — £530,000 • 6 bed • 3 bath • 2788 ft²
6 bedroom detached house for sale in Woods Way, Tetney, DN36 — £585,000 • 6 bed • 4 bath • 2260 ft²
3 bedroom detached house for sale in Haiths Lane, North Thoresby, DN36 — £440,000 • 3 bed • 3 bath • 2163 ft²






























































































