DN36 5FU - 6 bedroom detached house for sale in Woods Way, Tetney, DN36

View on Property Piper

6 bedroom detached house for sale in Woods Way, Tetney, DN36

Summary - 8, Woods Way, Tetney, GRIMSBY DN36 5FU

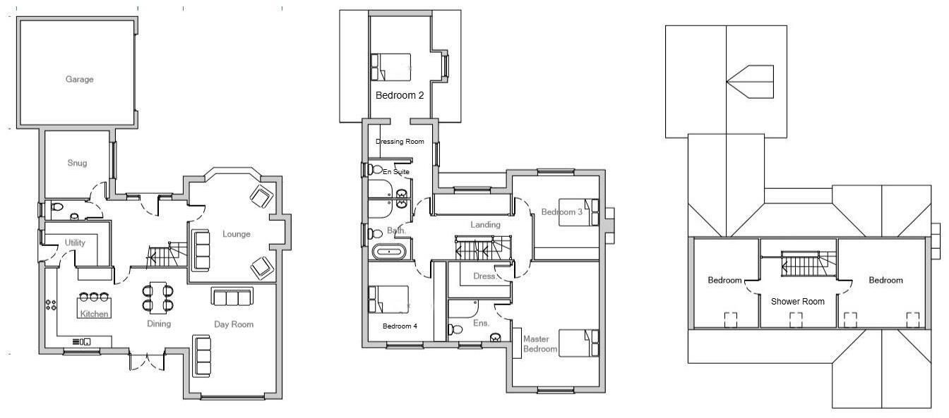
6 bed 4 bath Detached

**Key Features:**
- Six spacious bedrooms, two with en-suite facilities
- Open-plan L-shaped living dining kitchen ideal for family gatherings
- Contemporary home office/playroom with laminate flooring
- Double garage and ample off-road parking
- Energy-efficient with solar panels and gas central heating
- South-facing rear garden and west-facing outdoor entertaining area

Discover this stunning six-bedroom detached family home, thoughtfully designed for comfort and modern living. Enjoy the expansive open-plan L-shaped living dining kitchen that seamlessly integrates dining and lounging space, perfect for entertaining. Two luxurious master bedroom suites with en-suite facilities ensure privacy and comfort, complemented by four additional double bedrooms and a family bathroom on the upper floors.

Outside, the south-facing rear garden invites outdoor enjoyment along with a fabulous west-facing entertaining area equipped for gatherings. With ample parking provided by a double garage and a stylish front garden, this home ensures convenience in a tranquil, small-town setting. Environmentally conscious buyers will appreciate the solar panels, enhancing energy efficiency.

This beautiful property is in an affluent, low-crime area, with excellent access to local amenities and schools, making it a perfect family haven. Don't miss out on this exceptional opportunity—homes of this caliber are rare and won’t last long!

Property Details

Brochure Descriptions

Image Descriptions

Floorplan Description

Rooms

Textual Property Features

Detected Visual Features

EPC Details

Nearby Schools

Nearest Bars And Restaurants

,,,,}

Nearest General Shops

,,}

Nearest Grocery shops

,,}

Nearest Supermarkets

,,}

Nearest Religious buildings

,,}

Nearest Medical buildings

,,,}

Nearest Leisure Facilities

,,,,}

Nearest Tourist attractions

,,}

Nearest Train stations

,,,,}

Nearest Bus stations and stops

,,,,}

Nearest Hotels

,,}

Tags

Local Market Stats

AirBnB Data

Similar Properties

Meta

High Res Images

Compatible Images

Low res Images

Thumbnails

Raw Images

High Res Floorplan Images

Compatible Floorplan Images

Low res Floorplan Images

FloorplanImages Thumbnail

Raw Floorplan Images